Form DBPR LA4 Application for Licensure: Certificate of Temporary Authorization or Registration - Florida

Notification Icon This version of the form is not currently in use and is provided for reference only. Download this version of Form DBPR LA4 for the current year.

Form DBPR LA4 Application for Licensure: Certificate of Temporary Authorization or Registration - Florida

What Is Form DBPR LA4?

This is a legal form that was released by the Florida Department of Business & Professional Regulation - a government authority operating within Florida. As of today, no separate filing guidelines for the form are provided by the issuing department.

FAQ

Q: What is a DBPR LA4 Application?
A: A DBPR LA4 Application is a form used to apply for a Certificate of Temporary Authorization or Registration in the state of Florida.

Q: What is a Certificate of Temporary Authorization or Registration?
A: A Certificate of Temporary Authorization or Registration is a document that allows an individual or business to temporarily operate or provide services in Florida.

Q: Who needs to fill out a DBPR LA4 Application?
A: Individuals or businesses that want to temporarily operate or provide services in Florida need to fill out a DBPR LA4 Application.

Q: What documents are required to complete the DBPR LA4 Application?
A: The specific documents required may vary, but generally you will need to provide proof of qualifications, proof of insurance, and any other supporting documents requested by the licensing authority.

Q: Is there a fee for submitting the DBPR LA4 Application?
A: Yes, there is a fee associated with submitting the DBPR LA4 Application. The fee amount may vary depending on the type of temporary authorization or registration being sought.

Q: How long does it take to process a DBPR LA4 Application?
A: The processing time for a DBPR LA4 Application can vary. It is recommended to submit the application well in advance to allow for processing and approval before the intended start date of operations or services.

Q: Can I apply for a permanent license while holding a Certificate of Temporary Authorization or Registration?
A: Yes, it is possible to apply for a permanent license while holding a Certificate of Temporary Authorization or Registration. However, the requirements and application process for a permanent license may be different.

Q: What happens if my DBPR LA4 Application is denied?
A: If your DBPR LA4 Application is denied, you may have the option to appeal the decision or reapply with additional documentation or clarification. It is advisable to seek legal advice if your application is denied.

Q: Is the Certificate of Temporary Authorization or Registration valid in other states?
A: No, the Certificate of Temporary Authorization or Registration is specific to the state of Florida and does not grant authorization or registration in other states.

ADVERTISEMENT

Form Details:

  • Released on July 10, 2012;
  • The latest edition provided by the Florida Department of Business & Professional Regulation;
  • Easy to use and ready to print;
  • Quick to customize;
  • Compatible with most PDF-viewing applications;
  • Fill out the form in our online filing application.

Download a printable version of Form DBPR LA4 by clicking the link below or browse more documents and templates provided by the Florida Department of Business & Professional Regulation.

Download Form DBPR LA4 Application for Licensure: Certificate of Temporary Authorization or Registration - Florida

4.8 of 5 (81 votes)
  • Form DBPR LA4 Application for Licensure: Certificate of Temporary Authorization or Registration - Florida

    1

  • Form DBPR LA4 Application for Licensure: Certificate of Temporary Authorization or Registration - Florida, Page 2

    2

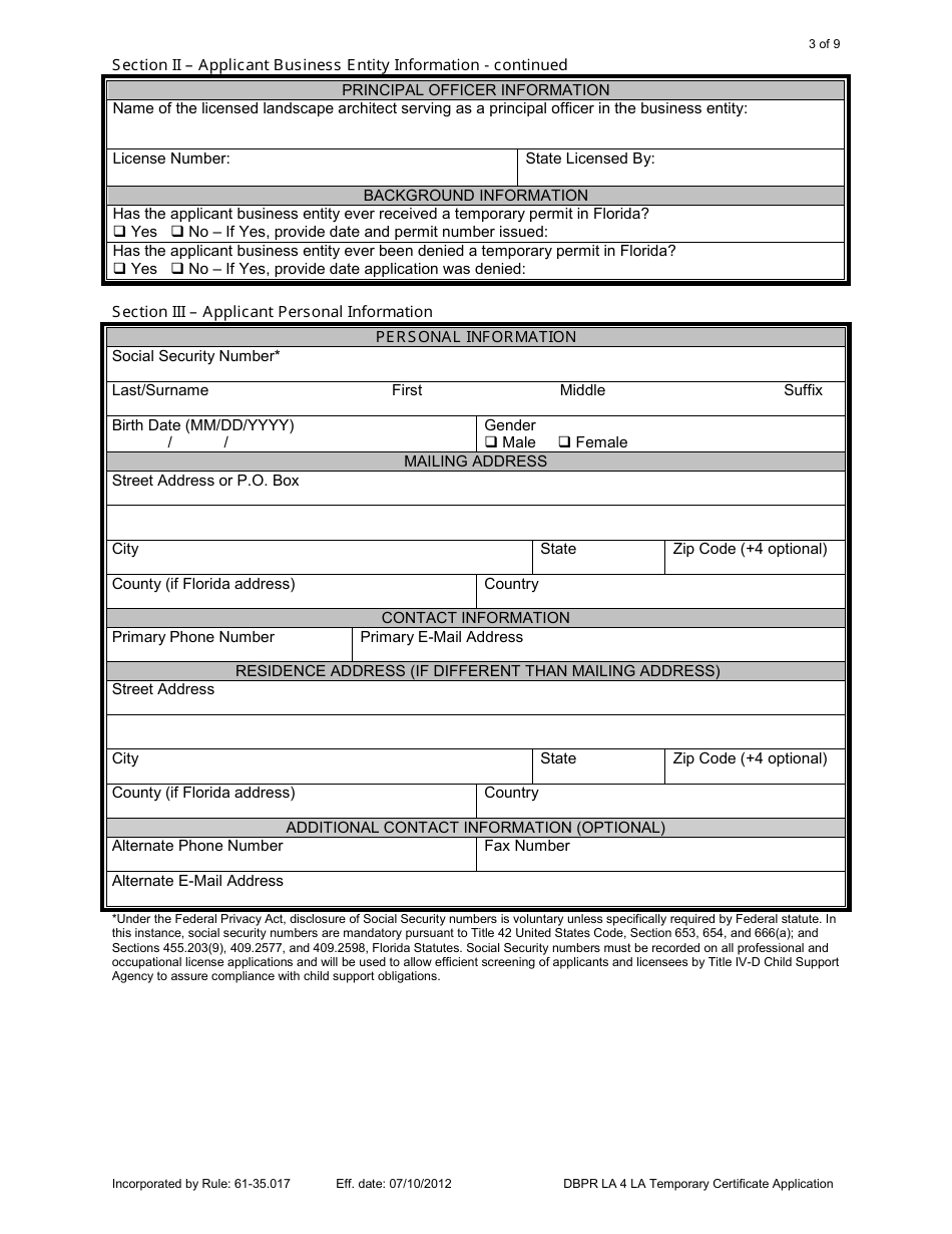
  • Form DBPR LA4 Application for Licensure: Certificate of Temporary Authorization or Registration - Florida, Page 3

    3

  • Form DBPR LA4 Application for Licensure: Certificate of Temporary Authorization or Registration - Florida, Page 4

    4

  • Form DBPR LA4 Application for Licensure: Certificate of Temporary Authorization or Registration - Florida, Page 5

    5

  • Form DBPR LA4 Application for Licensure: Certificate of Temporary Authorization or Registration - Florida, Page 6

    6

  • Form DBPR LA4 Application for Licensure: Certificate of Temporary Authorization or Registration - Florida, Page 7

    7

  • Form DBPR LA4 Application for Licensure: Certificate of Temporary Authorization or Registration - Florida, Page 8

    8

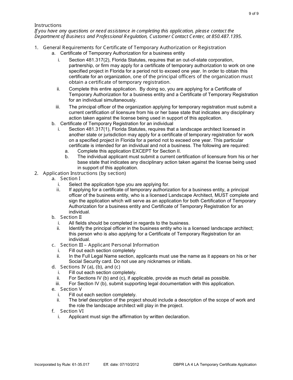
  • Form DBPR LA4 Application for Licensure: Certificate of Temporary Authorization or Registration - Florida, Page 9

    9

  • Form DBPR LA4 Application for Licensure: Certificate of Temporary Authorization or Registration - Florida, Page 1
  • Form DBPR LA4 Application for Licensure: Certificate of Temporary Authorization or Registration - Florida, Page 2
  • Form DBPR LA4 Application for Licensure: Certificate of Temporary Authorization or Registration - Florida, Page 3
  • Form DBPR LA4 Application for Licensure: Certificate of Temporary Authorization or Registration - Florida, Page 4
  • Form DBPR LA4 Application for Licensure: Certificate of Temporary Authorization or Registration - Florida, Page 5
  • Form DBPR LA4 Application for Licensure: Certificate of Temporary Authorization or Registration - Florida, Page 6
  • Form DBPR LA4 Application for Licensure: Certificate of Temporary Authorization or Registration - Florida, Page 7
  • Form DBPR LA4 Application for Licensure: Certificate of Temporary Authorization or Registration - Florida, Page 8
  • Form DBPR LA4 Application for Licensure: Certificate of Temporary Authorization or Registration - Florida, Page 9
Prev 1 2 3 4 5 ... 9 Next
ADVERTISEMENT

Related Documents