Form CEM-3513 Caltrans Hot Mix Asphalt Verification - California

Notification Icon This version of the form is not currently in use and is provided for reference only. Download this version of Form CEM-3513 for the current year.

Form CEM-3513 Caltrans Hot Mix Asphalt Verification - California

What Is Form CEM-3513?

This is a legal form that was released by the California Department of Transportation - a government authority operating within California. As of today, no separate filing guidelines for the form are provided by the issuing department.

FAQ

Q: What is Form CEM-3513?
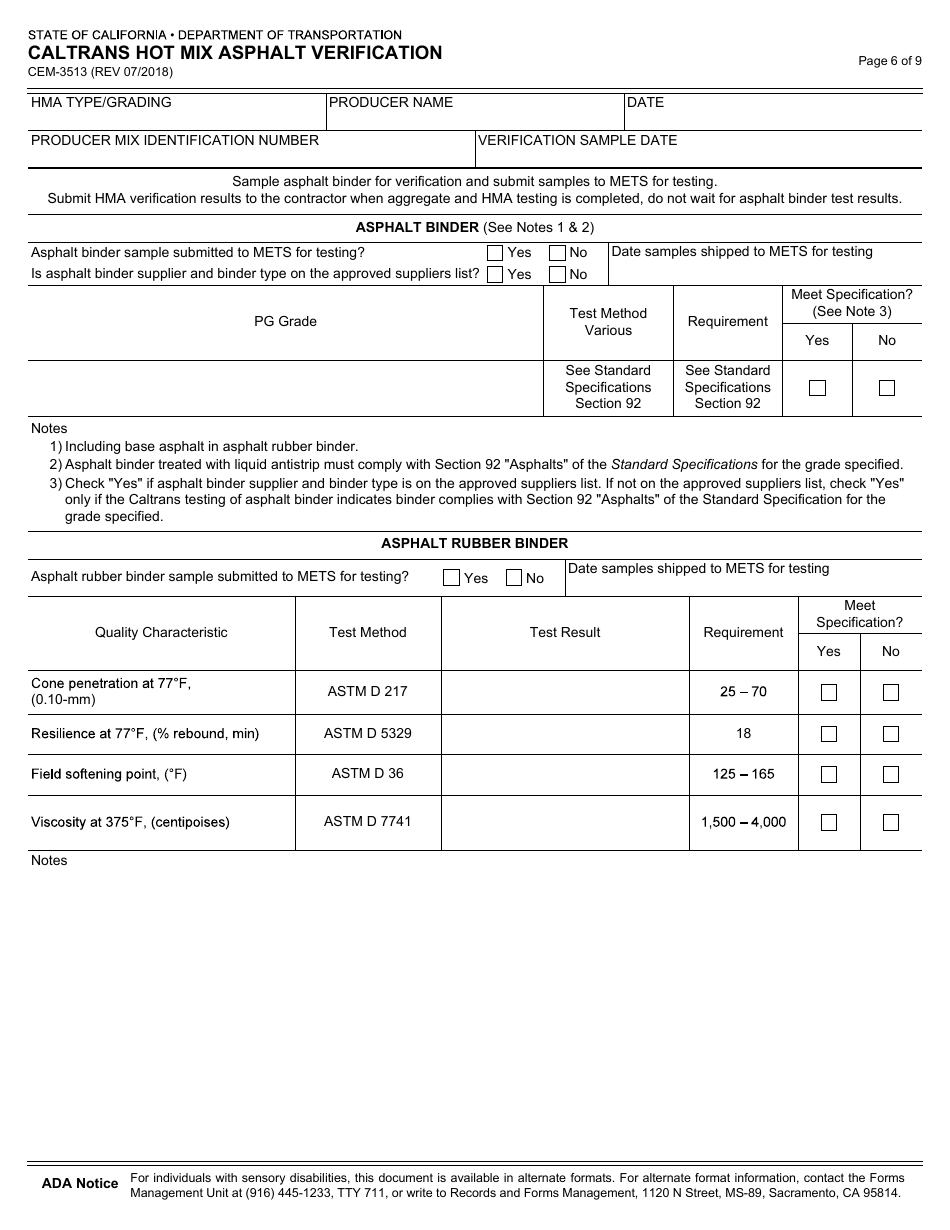
A: Form CEM-3513 is a document used by Caltrans for verifying the quality of hot mix asphalt.

Q: What is Caltrans?
A: Caltrans is the California Department of Transportation, responsible for the maintenance and improvement of the state's transportation infrastructure.

Q: What is hot mix asphalt?
A: Hot mix asphalt is a mixture of asphalt and aggregates, heated and mixed at high temperatures to form a durable pavement material.

Q: What is the purpose of Form CEM-3513?
A: The purpose of Form CEM-3513 is to ensure that hot mix asphalt used in Caltrans projects meets the specified quality requirements.

Q: Who uses Form CEM-3513?
A: Form CEM-3513 is used by Caltrans staff and contractors involved in hot mix asphalt production and placement.

Q: What information is included in Form CEM-3513?
A: Form CEM-3513 includes information about the hot mix asphalt plant, mix design, production process, and test results.

Q: How is Form CEM-3513 used?
A: Form CEM-3513 is filled out by the hot mix asphalt producer and submitted to Caltrans for verification. It is also used for record-keeping purposes.

Q: What happens if the hot mix asphalt does not meet the specified quality requirements?
A: If the hot mix asphalt does not meet the specified quality requirements, corrective actions may be required, such as adjusting the mix design or production process.

ADVERTISEMENT

Form Details:

  • Released on July 1, 2018;
  • The latest edition provided by the California Department of Transportation;
  • Easy to use and ready to print;
  • Quick to customize;
  • Compatible with most PDF-viewing applications;
  • Fill out the form in our online filing application.

Download a fillable version of Form CEM-3513 by clicking the link below or browse more documents and templates provided by the California Department of Transportation.

Download Form CEM-3513 Caltrans Hot Mix Asphalt Verification - California

4.6 of 5 (31 votes)
  • Form CEM-3513 Caltrans Hot Mix Asphalt Verification - California

    1

  • Form CEM-3513 Caltrans Hot Mix Asphalt Verification - California, Page 2

    2

  • Form CEM-3513 Caltrans Hot Mix Asphalt Verification - California, Page 3

    3

  • Form CEM-3513 Caltrans Hot Mix Asphalt Verification - California, Page 4

    4

  • Form CEM-3513 Caltrans Hot Mix Asphalt Verification - California, Page 5

    5

  • Form CEM-3513 Caltrans Hot Mix Asphalt Verification - California, Page 6

    6

  • Form CEM-3513 Caltrans Hot Mix Asphalt Verification - California, Page 7

    7

  • Form CEM-3513 Caltrans Hot Mix Asphalt Verification - California, Page 8

    8

  • Form CEM-3513 Caltrans Hot Mix Asphalt Verification - California, Page 9

    9

  • Form CEM-3513 Caltrans Hot Mix Asphalt Verification - California, Page 1
  • Form CEM-3513 Caltrans Hot Mix Asphalt Verification - California, Page 2
  • Form CEM-3513 Caltrans Hot Mix Asphalt Verification - California, Page 3
  • Form CEM-3513 Caltrans Hot Mix Asphalt Verification - California, Page 4
  • Form CEM-3513 Caltrans Hot Mix Asphalt Verification - California, Page 5
  • Form CEM-3513 Caltrans Hot Mix Asphalt Verification - California, Page 6
  • Form CEM-3513 Caltrans Hot Mix Asphalt Verification - California, Page 7
  • Form CEM-3513 Caltrans Hot Mix Asphalt Verification - California, Page 8
  • Form CEM-3513 Caltrans Hot Mix Asphalt Verification - California, Page 9
Prev 1 2 3 4 5 ... 9 Next
ADVERTISEMENT