Form CEM-5773B Curb Ramp (Case B) Americans With Disabilities Act (Ada) Compliance Inspection Report - California

Notification Icon This version of the form is not currently in use and is provided for reference only. Download this version of Form CEM-5773B for the current year.

Form CEM-5773B Curb Ramp (Case B) Americans With Disabilities Act (Ada) Compliance Inspection Report - California

What Is Form CEM-5773B?

This is a legal form that was released by the California Department of Transportation - a government authority operating within California. As of today, no separate filing guidelines for the form are provided by the issuing department.

FAQ

Q: What is Form CEM-5773B?
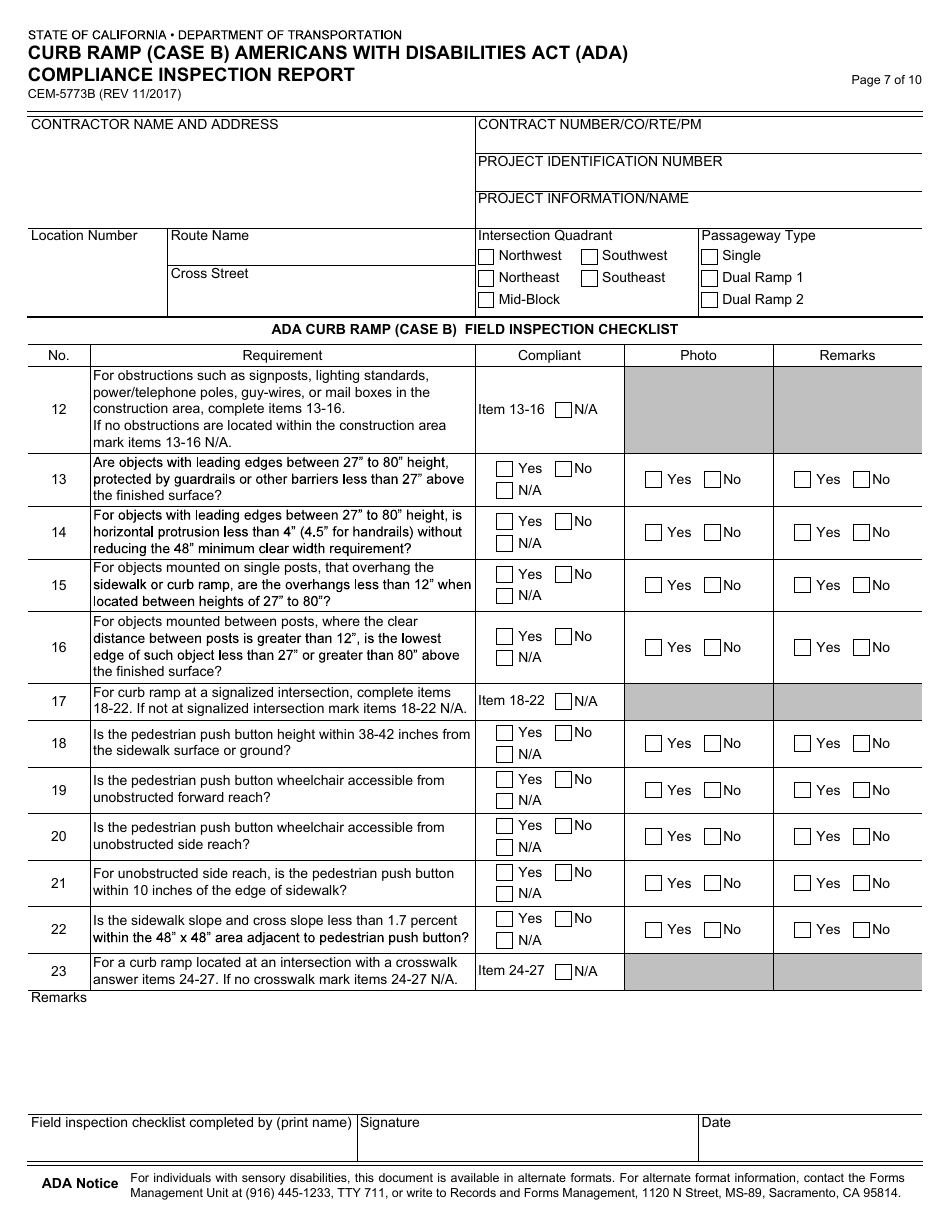
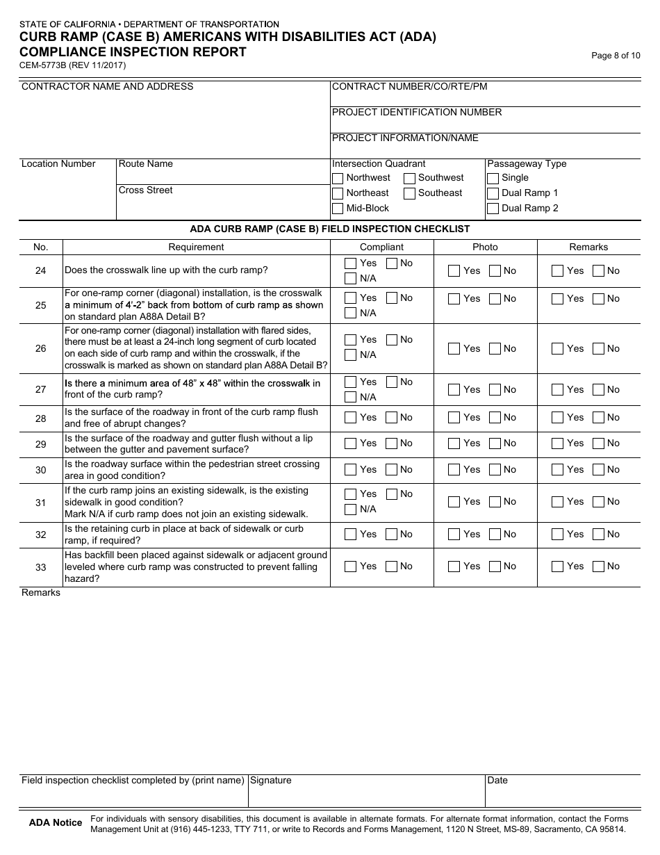
A: Form CEM-5773B is the Curb Ramp (Case B) Americans With Disabilities Act (ADA) Compliance Inspection Report used in California.

Q: What does the Curb Ramp (Case B) ADA Compliance Inspection Report entail?
A: The Curb Ramp (Case B) ADA Compliance Inspection Report is used to assess the compliance of curb ramps with the Americans With Disabilities Act (ADA) in California.

Q: Who uses the Curb Ramp (Case B) ADA Compliance Inspection Report?
A: The Curb Ramp (Case B) ADA Compliance Inspection Report is used by inspectors in California to assess the compliance of curb ramps with the ADA.

Q: What is the purpose of the Americans With Disabilities Act (ADA)?
A: The Americans With Disabilities Act (ADA) is a federal law that prohibits discrimination against individuals with disabilities and mandates accessibility for them in various areas of public life.

Q: What is the purpose of inspecting curb ramps for ADA compliance?
A: Inspecting curb ramps for ADA compliance ensures that they meet the accessibility requirements outlined in the Americans With Disabilities Act (ADA) to accommodate individuals with disabilities.

ADVERTISEMENT

Form Details:

  • Released on November 1, 2017;
  • The latest edition provided by the California Department of Transportation;
  • Easy to use and ready to print;
  • Quick to customize;
  • Compatible with most PDF-viewing applications;
  • Fill out the form in our online filing application.

Download a fillable version of Form CEM-5773B by clicking the link below or browse more documents and templates provided by the California Department of Transportation.

Download Form CEM-5773B Curb Ramp (Case B) Americans With Disabilities Act (Ada) Compliance Inspection Report - California

4.3 of 5 (104 votes)
  • Form CEM-5773B Curb Ramp (Case B) Americans With Disabilities Act (Ada) Compliance Inspection Report - California

    1

  • Form CEM-5773B Curb Ramp (Case B) Americans With Disabilities Act (Ada) Compliance Inspection Report - California, Page 2

    2

  • Form CEM-5773B Curb Ramp (Case B) Americans With Disabilities Act (Ada) Compliance Inspection Report - California, Page 3

    3

  • Form CEM-5773B Curb Ramp (Case B) Americans With Disabilities Act (Ada) Compliance Inspection Report - California, Page 4

    4

  • Form CEM-5773B Curb Ramp (Case B) Americans With Disabilities Act (Ada) Compliance Inspection Report - California, Page 5

    5

  • Form CEM-5773B Curb Ramp (Case B) Americans With Disabilities Act (Ada) Compliance Inspection Report - California, Page 6

    6

  • Form CEM-5773B Curb Ramp (Case B) Americans With Disabilities Act (Ada) Compliance Inspection Report - California, Page 7

    7

  • Form CEM-5773B Curb Ramp (Case B) Americans With Disabilities Act (Ada) Compliance Inspection Report - California, Page 8

    8

  • Form CEM-5773B Curb Ramp (Case B) Americans With Disabilities Act (Ada) Compliance Inspection Report - California, Page 9

    9

  • Form CEM-5773B Curb Ramp (Case B) Americans With Disabilities Act (Ada) Compliance Inspection Report - California, Page 10

    10

  • Form CEM-5773B Curb Ramp (Case B) Americans With Disabilities Act (Ada) Compliance Inspection Report - California, Page 1
  • Form CEM-5773B Curb Ramp (Case B) Americans With Disabilities Act (Ada) Compliance Inspection Report - California, Page 2
  • Form CEM-5773B Curb Ramp (Case B) Americans With Disabilities Act (Ada) Compliance Inspection Report - California, Page 3
  • Form CEM-5773B Curb Ramp (Case B) Americans With Disabilities Act (Ada) Compliance Inspection Report - California, Page 4
  • Form CEM-5773B Curb Ramp (Case B) Americans With Disabilities Act (Ada) Compliance Inspection Report - California, Page 5
  • Form CEM-5773B Curb Ramp (Case B) Americans With Disabilities Act (Ada) Compliance Inspection Report - California, Page 6
  • Form CEM-5773B Curb Ramp (Case B) Americans With Disabilities Act (Ada) Compliance Inspection Report - California, Page 7
  • Form CEM-5773B Curb Ramp (Case B) Americans With Disabilities Act (Ada) Compliance Inspection Report - California, Page 8
  • Form CEM-5773B Curb Ramp (Case B) Americans With Disabilities Act (Ada) Compliance Inspection Report - California, Page 9
  • Form CEM-5773B Curb Ramp (Case B) Americans With Disabilities Act (Ada) Compliance Inspection Report - California, Page 10
Prev 1 2 3 4 5 ... 10 Next
ADVERTISEMENT