Form DBPR BCAIB6 Request for Duplicate License, Name Change, Address Change, or Status Change - Florida

Notification Icon This version of the form is not currently in use and is provided for reference only. Download this version of Form DBPR BCAIB6 for the current year.

Form DBPR BCAIB6 Request for Duplicate License, Name Change, Address Change, or Status Change - Florida

What Is Form DBPR BCAIB6?

This is a legal form that was released by the Florida Department of Business & Professional Regulation - a government authority operating within Florida. As of today, no separate filing guidelines for the form are provided by the issuing department.

FAQ

Q: What is a DBPR BCAIB6 form?
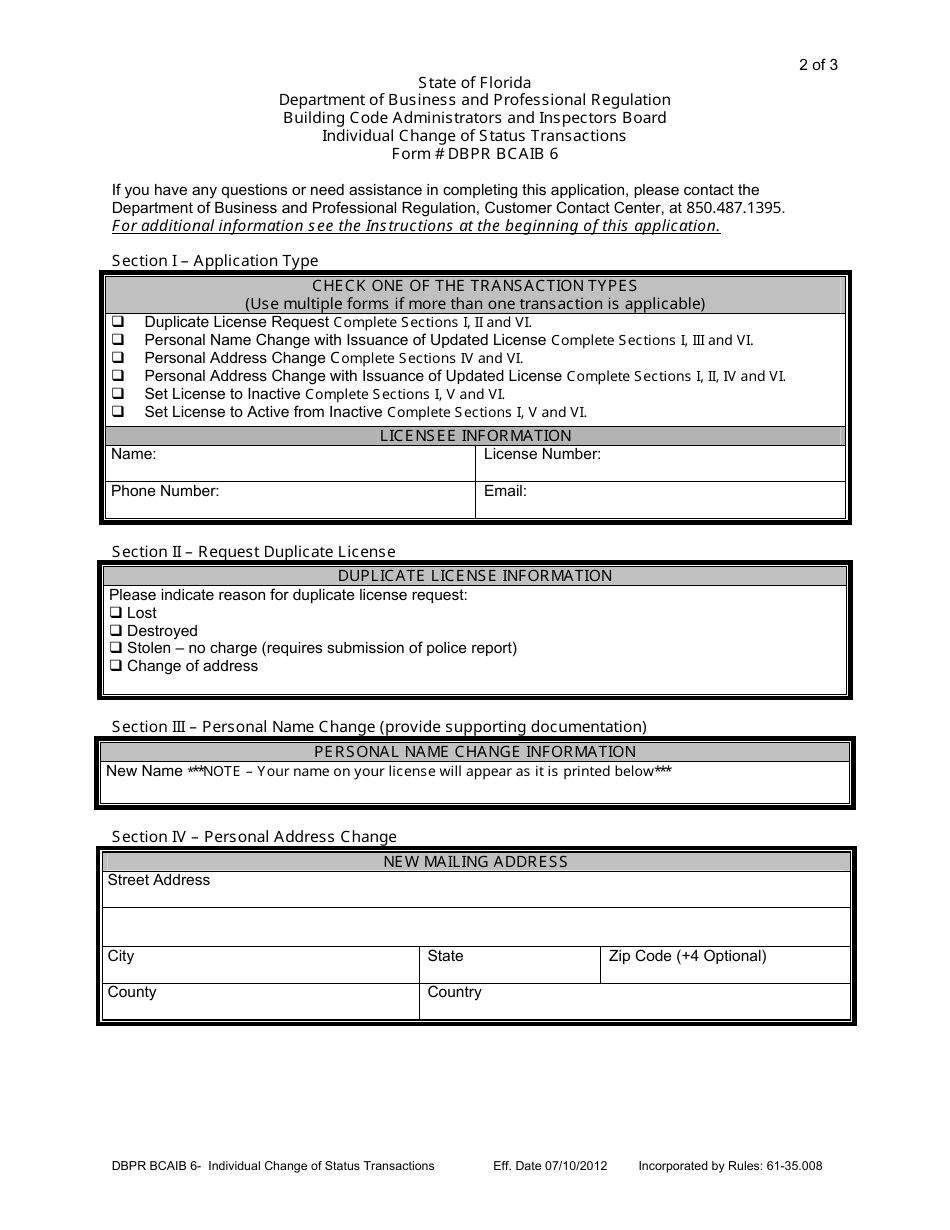
A: The DBPR BCAIB6 form is a request form used in the state of Florida for duplicate license, name change, address change, or status change for certain professions.

Q: Who can use the DBPR BCAIB6 form?
A: The DBPR BCAIB6 form can be used by individuals who are licensed in certain professions in Florida and need to request a duplicate license, name change, address change, or status change.

Q: What professions require the use of the DBPR BCAIB6 form?
A: The DBPR BCAIB6 form is used for professions regulated by the Florida Department of Business and Professional Regulation (DBPR), such as architects and interior designers.

Q: Why would someone need to use the DBPR BCAIB6 form?
A: Someone may need to use the DBPR BCAIB6 form if they have lost their license and need a duplicate, have changed their name or address, or need to update their status with the DBPR.

Q: What information is required on the DBPR BCAIB6 form?
A: The DBPR BCAIB6 form typically requires information such as the individual's name, license number, current address, requested changes, and any supporting documentation.

ADVERTISEMENT

Form Details:

  • Released on July 10, 2012;
  • The latest edition provided by the Florida Department of Business & Professional Regulation;
  • Easy to use and ready to print;
  • Quick to customize;
  • Compatible with most PDF-viewing applications;
  • Fill out the form in our online filing application.

Download a fillable version of Form DBPR BCAIB6 by clicking the link below or browse more documents and templates provided by the Florida Department of Business & Professional Regulation.

Download Form DBPR BCAIB6 Request for Duplicate License, Name Change, Address Change, or Status Change - Florida

4.8 of 5 (83 votes)
  • Form DBPR BCAIB6 Request for Duplicate License, Name Change, Address Change, or Status Change - Florida

    1

  • Form DBPR BCAIB6 Request for Duplicate License, Name Change, Address Change, or Status Change - Florida, Page 2

    2

  • Form DBPR BCAIB6 Request for Duplicate License, Name Change, Address Change, or Status Change - Florida, Page 3

    3

  • Form DBPR BCAIB6 Request for Duplicate License, Name Change, Address Change, or Status Change - Florida, Page 1
  • Form DBPR BCAIB6 Request for Duplicate License, Name Change, Address Change, or Status Change - Florida, Page 2
  • Form DBPR BCAIB6 Request for Duplicate License, Name Change, Address Change, or Status Change - Florida, Page 3
Prev 1 2 3 Next
ADVERTISEMENT