Asbestos or Lead Business License Application Packet - Maine

Asbestos or Lead Business License Application Packet - Maine

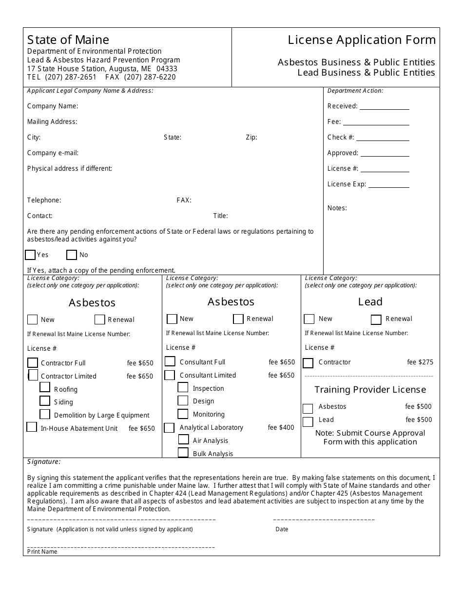
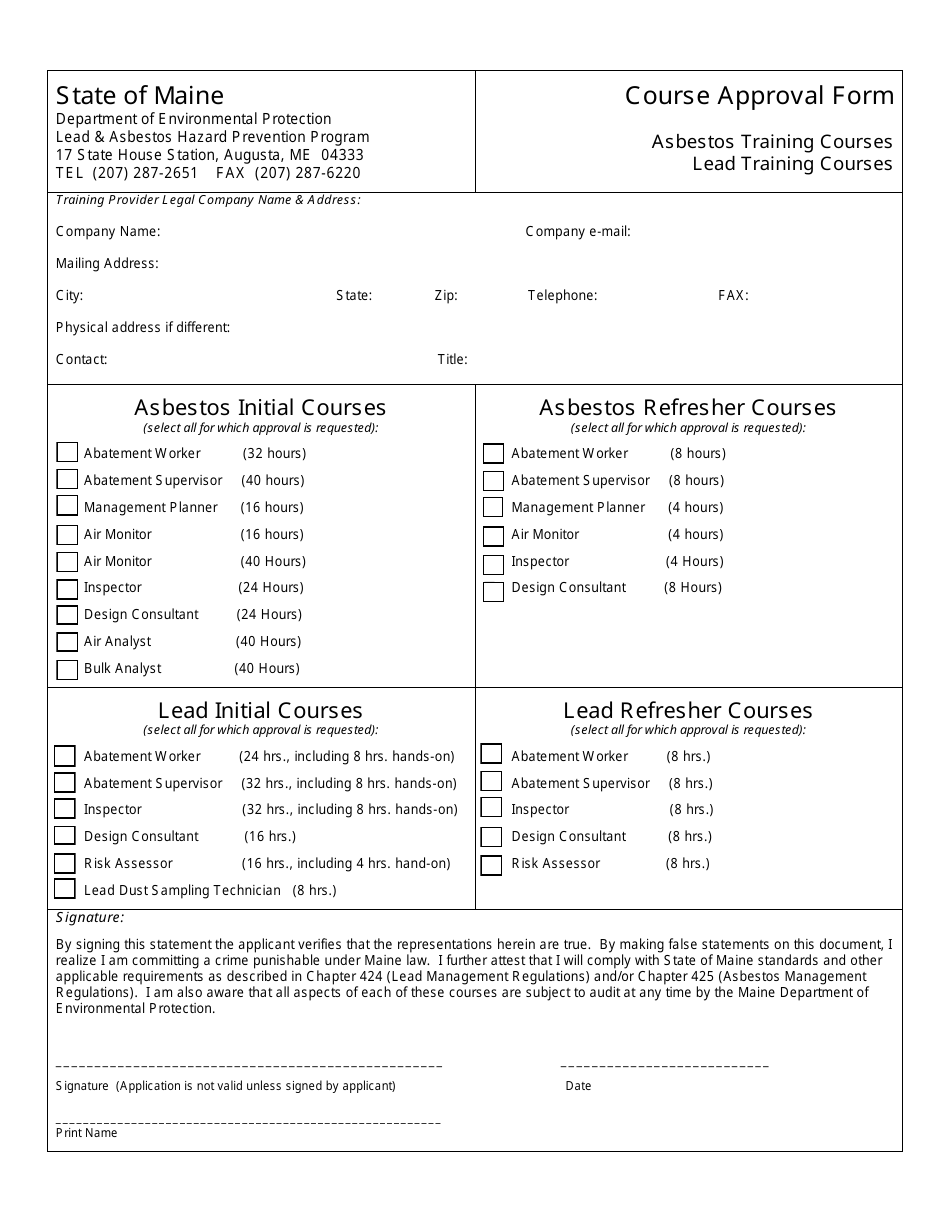
Asbestos or Lead Business License Application Packet is a legal document that was released by the Maine Department of Environmental Protection - a government authority operating within Maine.

FAQ

Q: What is the Asbestos or Lead Business License Application Packet?
A: The Asbestos or Lead Business License Application Packet is a set of documents required for businesses in Maine that deal with asbestos or lead-related services.

Q: How can I obtain the Asbestos or Lead Business License Application Packet?
A: You can obtain the Asbestos or Lead Business License Application Packet by contacting the Maine Department of Environmental Protection.

Q: What is the purpose of the Asbestos or Lead Business License Application Packet?
A: The purpose of the Asbestos or Lead Business License Application Packet is to ensure that businesses involved in asbestos or lead-related services comply with the necessary regulations and standards to protect public health and the environment.

Q: What kind of businesses need the Asbestos or Lead Business License?
A: Businesses that deal with asbestos or lead-related services, such as asbestos removal or lead paint abatement, need to obtain the Asbestos or Lead Business License.

Q: Is the Asbestos or Lead Business License required in all parts of Maine?
A: Yes, the Asbestos or Lead Business License is required for businesses operating anywhere within the state of Maine.

Q: Are there any fees associated with the Asbestos or Lead Business License Application?
A: Yes, there are fees associated with the Asbestos or Lead Business License Application. The fees depend on the type of license and the services provided by the business.

ADVERTISEMENT

Form Details:

  • The latest edition currently provided by the Maine Department of Environmental Protection;
  • Ready to use and print;
  • Easy to customize;
  • Compatible with most PDF-viewing applications;
  • Fill out the form in our online filing application.

Download a fillable version of the form by clicking the link below or browse more documents and templates provided by the Maine Department of Environmental Protection.

Download Asbestos or Lead Business License Application Packet - Maine

4.4 of 5 (41 votes)
  • Asbestos or Lead Business License Application Packet - Maine

    1

  • Asbestos or Lead Business License Application Packet - Maine, Page 2

    2

  • Asbestos or Lead Business License Application Packet - Maine, Page 3

    3

  • Asbestos or Lead Business License Application Packet - Maine, Page 4

    4

  • Asbestos or Lead Business License Application Packet - Maine, Page 5

    5

  • Asbestos or Lead Business License Application Packet - Maine, Page 6

    6

  • Asbestos or Lead Business License Application Packet - Maine, Page 7

    7

  • Asbestos or Lead Business License Application Packet - Maine, Page 8

    8

  • Asbestos or Lead Business License Application Packet - Maine, Page 9

    9

  • Asbestos or Lead Business License Application Packet - Maine, Page 10

    10

  • Asbestos or Lead Business License Application Packet - Maine, Page 11

    11

  • Asbestos or Lead Business License Application Packet - Maine, Page 1
  • Asbestos or Lead Business License Application Packet - Maine, Page 2
  • Asbestos or Lead Business License Application Packet - Maine, Page 3
  • Asbestos or Lead Business License Application Packet - Maine, Page 4
  • Asbestos or Lead Business License Application Packet - Maine, Page 5
  • Asbestos or Lead Business License Application Packet - Maine, Page 6
  • Asbestos or Lead Business License Application Packet - Maine, Page 7
  • Asbestos or Lead Business License Application Packet - Maine, Page 8
  • Asbestos or Lead Business License Application Packet - Maine, Page 9
  • Asbestos or Lead Business License Application Packet - Maine, Page 10
  • Asbestos or Lead Business License Application Packet - Maine, Page 11
Prev 1 2 3 4 5 ... 11 Next
ADVERTISEMENT