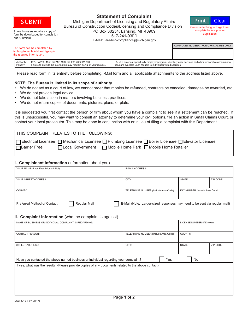
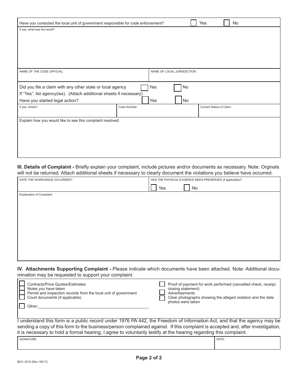
Form BCC-3015 Statement of Complaint - Michigan

Notification Icon This version of the form is not currently in use and is provided for reference only. Download this version of Form BCC-3015 for the current year.

Form BCC-3015 Statement of Complaint - Michigan

What Is Form BCC-3015?

This is a legal form that was released by the Michigan Department of Licensing and Regulatory Affairs - a government authority operating within Michigan. As of today, no separate filing guidelines for the form are provided by the issuing department.

FAQ

Q: What is the BCC-3015 Statement of Complaint?
A: The BCC-3015 Statement of Complaint is a specific form used in the state of Michigan to file a complaint.

Q: Who needs to fill out the BCC-3015 Statement of Complaint?
A: Any individual or organization wishing to file a complaint in Michigan can fill out the BCC-3015 form.

Q: What information should I provide on the BCC-3015 Statement of Complaint form?
A: The form requires details such as the complainant's name, contact information, the nature of the complaint, and any supporting documents or evidence.

Q: What should I do after filling out the BCC-3015 Statement of Complaint form?
A: After filling out the form, you should submit it to the appropriate local government office or the Michigan Bureau of Construction Codes.

ADVERTISEMENT

Form Details:

  • Released on September 1, 2017;
  • The latest edition provided by the Michigan Department of Licensing and Regulatory Affairs;
  • Easy to use and ready to print;
  • Quick to customize;
  • Compatible with most PDF-viewing applications;
  • Fill out the form in our online filing application.

Download a fillable version of Form BCC-3015 by clicking the link below or browse more documents and templates provided by the Michigan Department of Licensing and Regulatory Affairs.

Download Form BCC-3015 Statement of Complaint - Michigan

4.7 of 5 (39 votes)
  • Form BCC-3015 Statement of Complaint - Michigan

    1

  • Form BCC-3015 Statement of Complaint - Michigan, Page 2

    2

  • Form BCC-3015 Statement of Complaint - Michigan, Page 3

    3

  • Form BCC-3015 Statement of Complaint - Michigan, Page 1
  • Form BCC-3015 Statement of Complaint - Michigan, Page 2
  • Form BCC-3015 Statement of Complaint - Michigan, Page 3
Prev 1 2 3 Next
ADVERTISEMENT