Form YG5603 Application for Subdivision Approval of Agricultural Land - Yukon, Canada

Form YG5603 Application for Subdivision Approval of Agricultural Land - Yukon, Canada

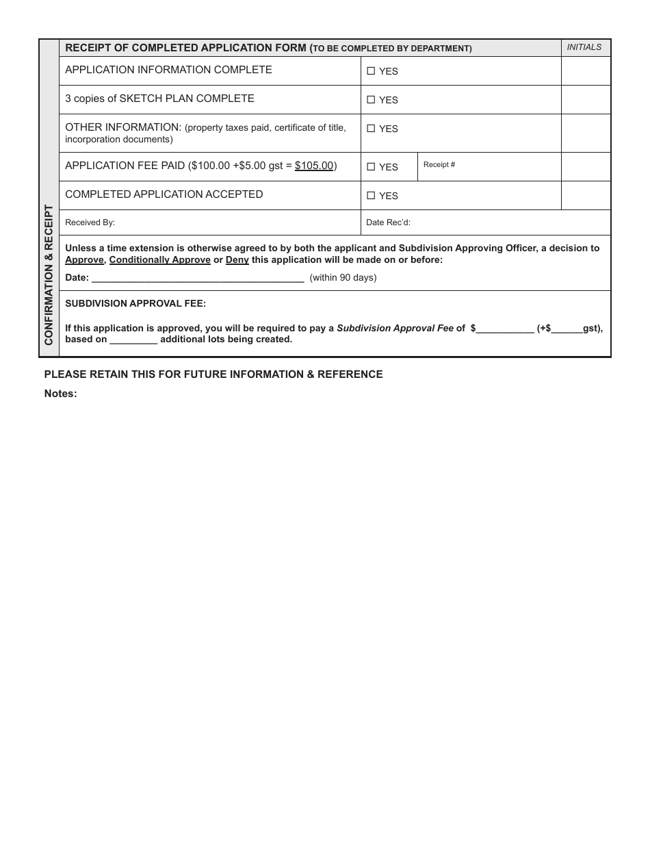
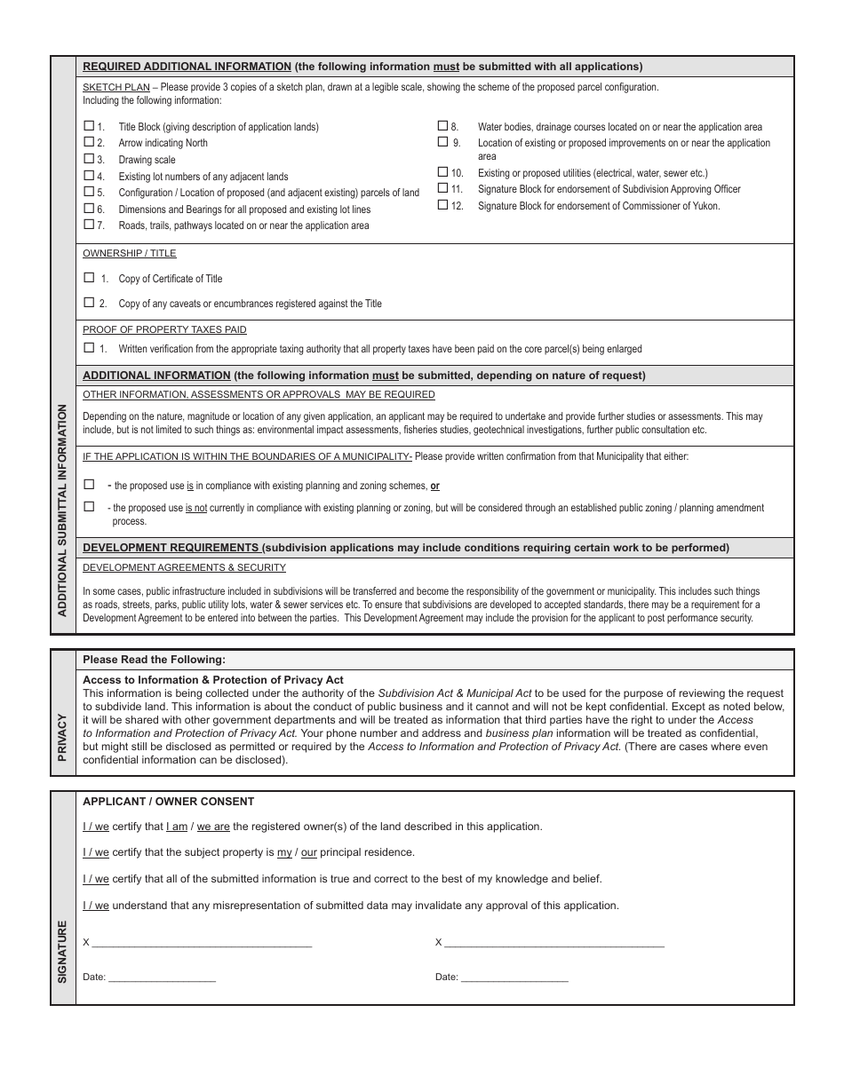
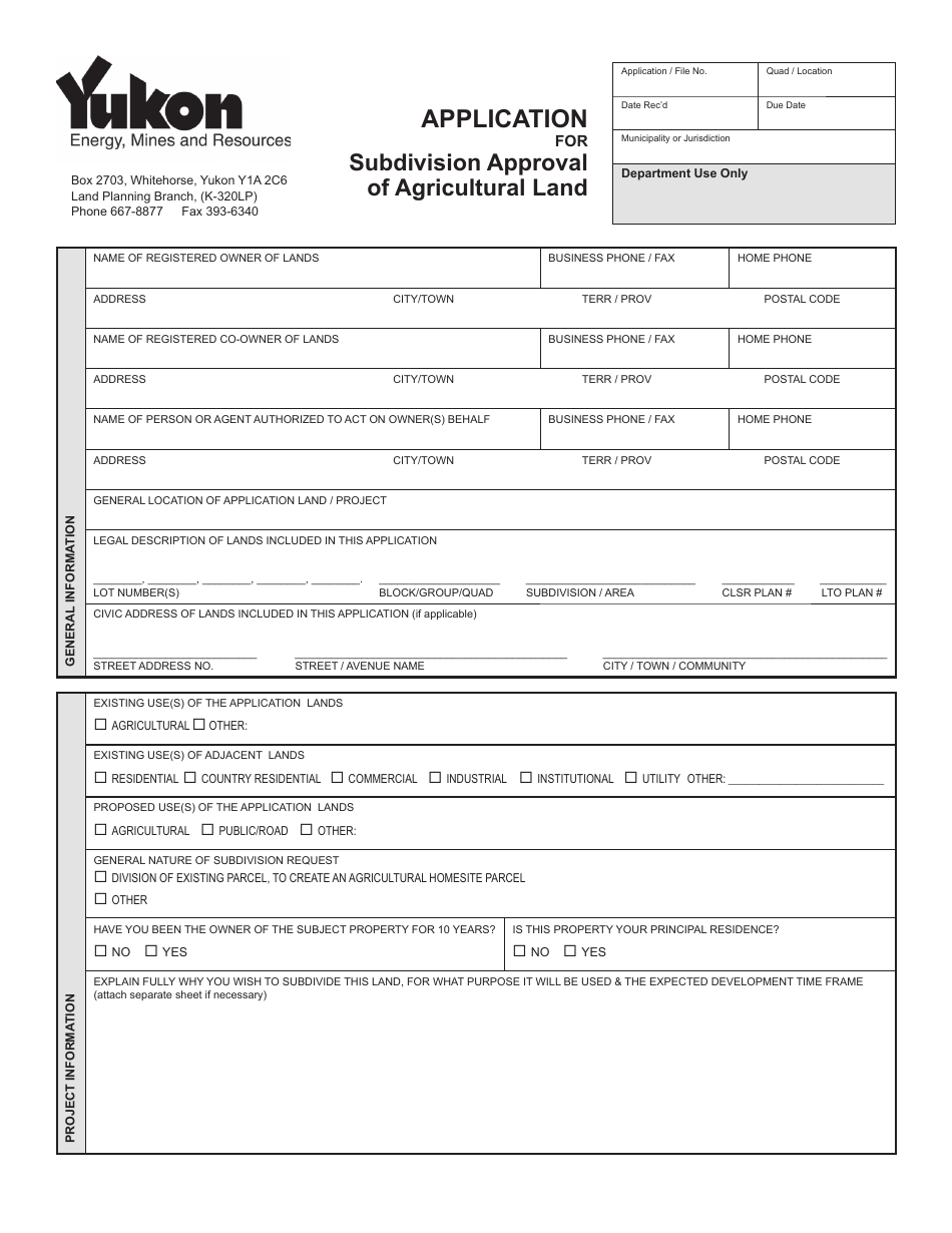
Form YG5603 Application for Subdivision Approval of Agricultural Land in the Yukon, Canada is used to apply for approval to subdivide agricultural land in the Yukon territory.

The applicant who wishes to subdivide agricultural land in Yukon, Canada files the Form YG5603 for subdivision approval.

FAQ

Q: What is YG5603 Application for Subdivision Approval of Agricultural Land?
A: YG5603 is an application form used in Yukon, Canada to request subdivision approval for agricultural land.

Q: Who needs to fill out the YG5603 Application for Subdivision Approval of Agricultural Land?
A: Anyone wishing to subdivide agricultural land in Yukon, Canada needs to fill out this form.

Q: What information do I need to provide in the YG5603 Application for Subdivision Approval of Agricultural Land?
A: The application requires details about the land, including legal description, proposed subdivision plan, land use details, and the applicant's contact information.

Q: How long does it take to get a decision on the YG5603 Application for Subdivision Approval of Agricultural Land?
A: The processing time for the application varies. It is best to contact the Yukon Land Planning Office for an estimate.

Q: What happens after the YG5603 Application for Subdivision Approval of Agricultural Land is approved?
A: Once the application is approved, the applicant can proceed with the subdivision of the agricultural land according to the approved plan and any conditions specified.

Q: What if my YG5603 Application for Subdivision Approval of Agricultural Land is denied?
A: If the application is denied, the applicant has the option to appeal the decision or make necessary revisions to the application and reapply.

Q: Can I subdivide agricultural land without approval in Yukon, Canada?
A: No, subdivision of agricultural land in Yukon, Canada requires approval as specified in the Yukon Land Use Regulation.

ADVERTISEMENT

Download Form YG5603 Application for Subdivision Approval of Agricultural Land - Yukon, Canada

4.6 of 5 (15 votes)
  • Form YG5603 Application for Subdivision Approval of Agricultural Land - Yukon, Canada

    1

  • Form YG5603 Application for Subdivision Approval of Agricultural Land - Yukon, Canada, Page 2

    2

  • Form YG5603 Application for Subdivision Approval of Agricultural Land - Yukon, Canada, Page 3

    3

  • Form YG5603 Application for Subdivision Approval of Agricultural Land - Yukon, Canada, Page 4

    4

  • Form YG5603 Application for Subdivision Approval of Agricultural Land - Yukon, Canada, Page 5

    5

  • Form YG5603 Application for Subdivision Approval of Agricultural Land - Yukon, Canada, Page 6

    6

  • Form YG5603 Application for Subdivision Approval of Agricultural Land - Yukon, Canada, Page 1
  • Form YG5603 Application for Subdivision Approval of Agricultural Land - Yukon, Canada, Page 2
  • Form YG5603 Application for Subdivision Approval of Agricultural Land - Yukon, Canada, Page 3
  • Form YG5603 Application for Subdivision Approval of Agricultural Land - Yukon, Canada, Page 4
  • Form YG5603 Application for Subdivision Approval of Agricultural Land - Yukon, Canada, Page 5
  • Form YG5603 Application for Subdivision Approval of Agricultural Land - Yukon, Canada, Page 6
Prev 1 2 3 4 5 6 Next
ADVERTISEMENT