Form YG5371 Application for Land Use Change Local Area Plan or Development Area Regulation - Yukon, Canada

Form YG5371 Application for Land Use Change Local Area Plan or Development Area Regulation - Yukon, Canada

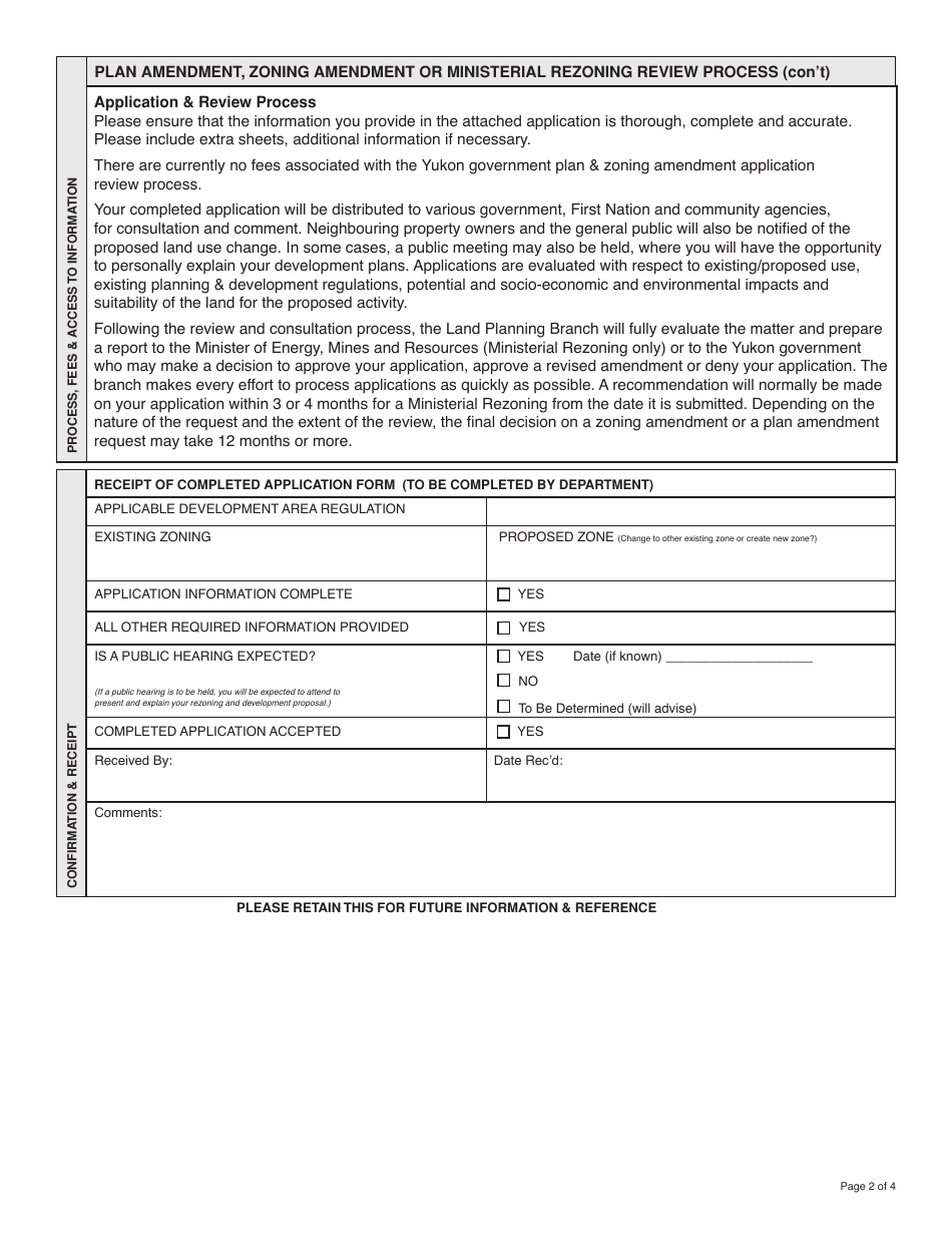
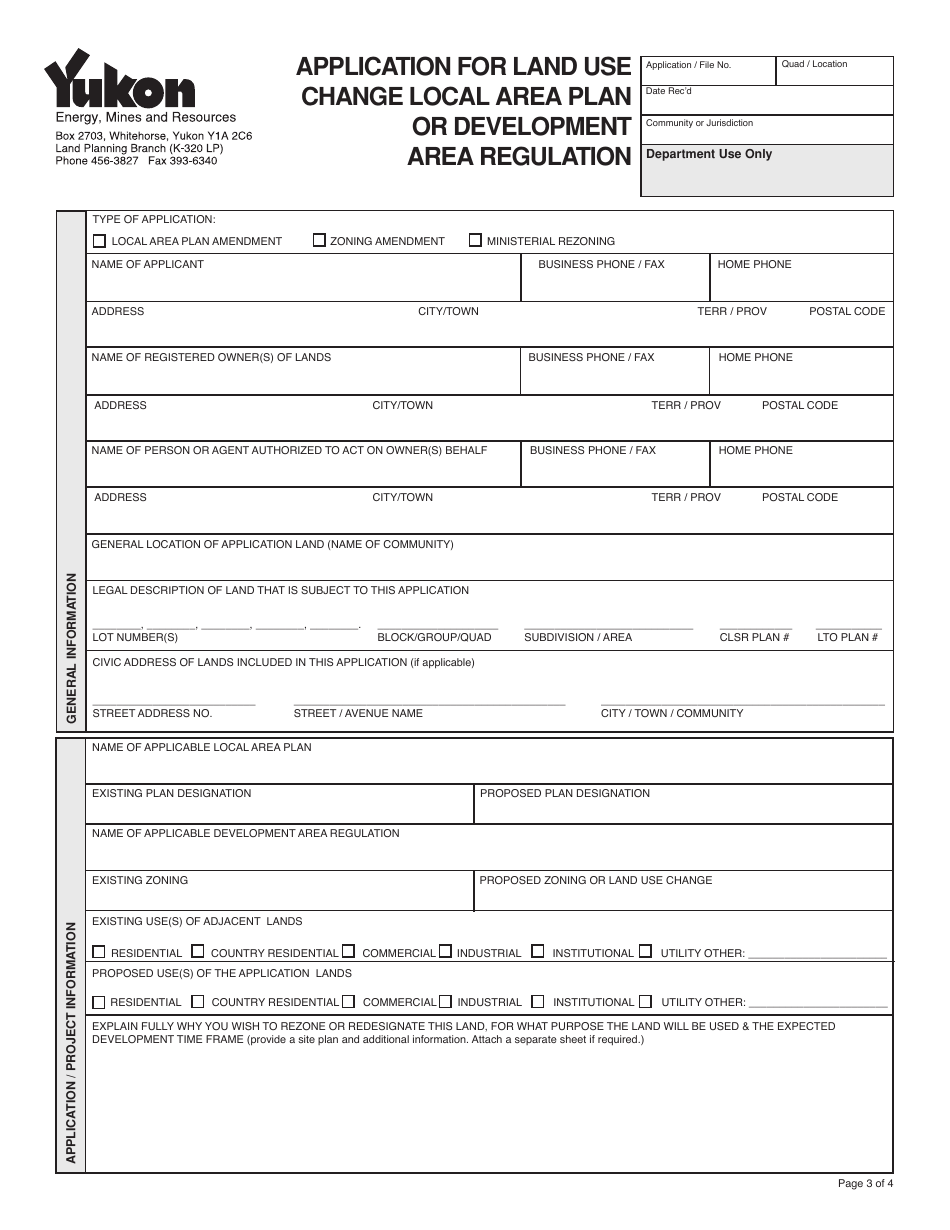
Form YG5371 Application for Land Use Change Local Area Plan or Development Area Regulation is used in Yukon, Canada for applying for a change in land use within a specific local area or development area. It is a formal application to request changes in zoning or land use regulations for a particular piece of land.

The application for a land use change, local area plan, or development area regulation in Yukon, Canada is typically filed by the individual or organization seeking the change or regulation.

FAQ

Q: What is Form YG5371?
A: Form YG5371 is an application form for requesting a land use change within a Local Area Plan or Development Area Regulation in Yukon, Canada.

Q: What is a land use change?
A: A land use change refers to the alteration of how a particular piece of land is used, such as changing it from residential to commercial or rezoning it for a specific purpose.

Q: What is a Local Area Plan?
A: A Local Area Plan is a land use plan that is developed at the local level and provides guidance on future development and land use within a specific area.

Q: What is a Development Area Regulation?
A: A Development Area Regulation is a legal instrument that sets out specific land use regulations and requirements for development within a designated area.

Q: Who can submit Form YG5371?
A: Any individual or entity that wishes to request a land use change within a Local Area Plan or Development Area Regulation in Yukon, Canada can submit Form YG5371.

ADVERTISEMENT

Download Form YG5371 Application for Land Use Change Local Area Plan or Development Area Regulation - Yukon, Canada

4.7 of 5 (13 votes)
  • Form YG5371 Application for Land Use Change Local Area Plan or Development Area Regulation - Yukon, Canada

    1

  • Form YG5371 Application for Land Use Change Local Area Plan or Development Area Regulation - Yukon, Canada, Page 2

    2

  • Form YG5371 Application for Land Use Change Local Area Plan or Development Area Regulation - Yukon, Canada, Page 3

    3

  • Form YG5371 Application for Land Use Change Local Area Plan or Development Area Regulation - Yukon, Canada, Page 4

    4

  • Form YG5371 Application for Land Use Change Local Area Plan or Development Area Regulation - Yukon, Canada, Page 1
  • Form YG5371 Application for Land Use Change Local Area Plan or Development Area Regulation - Yukon, Canada, Page 2
  • Form YG5371 Application for Land Use Change Local Area Plan or Development Area Regulation - Yukon, Canada, Page 3
  • Form YG5371 Application for Land Use Change Local Area Plan or Development Area Regulation - Yukon, Canada, Page 4
Prev 1 2 3 4 Next
ADVERTISEMENT