Form YG6438 Application for Discretionary Use Permit - Yukon, Canada

Form YG6438 Application for Discretionary Use Permit - Yukon, Canada

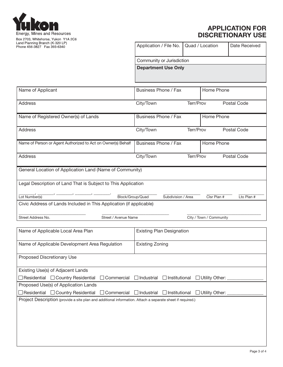
Form YG6438 Application for Discretionary Use Permit in Yukon, Canada is used to apply for permission to undertake a specific land use activity that is not permitted under existing zoning regulations. It allows individuals or organizations to request approval for a use of land that may have unique circumstances or require special consideration.

The applicant or the person seeking to use the property files the Form YG6438 Application for Discretionary Use Permit in Yukon, Canada.

FAQ

Q: What is a discretionary use permit?
A: A discretionary use permit is a permit issued by the government that allows for specific uses of land that may not be permitted by the zoning regulations.

Q: Why do I need to fill out Form YG6438?
A: You need to fill out Form YG6438 to apply for a discretionary use permit in Yukon, Canada.

Q: What information is required on Form YG6438?
A: Form YG6438 requires information about the property, the proposed use, and any relevant supporting documents.

Q: How much does it cost to submit Form YG6438?
A: The cost of submitting Form YG6438 may vary depending on the specific circumstances. It is best to check with the government office for the current fees.

Q: How long does it take to process a discretionary use permit application?
A: The processing time for a discretionary use permit application can vary, but it typically takes several weeks to several months.

Q: Can I appeal if my application for a discretionary use permit is denied?
A: Yes, you can appeal if your application for a discretionary use permit is denied. The appeals process may vary depending on the jurisdiction, so it is best to consult with the appropriate government office for more information.

Q: Who can I contact for assistance with Form YG6438?
A: You can contact the appropriate government office or planning department for assistance with Form YG6438 or any questions related to the discretionary use permit application process.

ADVERTISEMENT

Download Form YG6438 Application for Discretionary Use Permit - Yukon, Canada

4.6 of 5 (35 votes)
  • Form YG6438 Application for Discretionary Use Permit - Yukon, Canada

    1

  • Form YG6438 Application for Discretionary Use Permit - Yukon, Canada, Page 2

    2

  • Form YG6438 Application for Discretionary Use Permit - Yukon, Canada, Page 3

    3

  • Form YG6438 Application for Discretionary Use Permit - Yukon, Canada, Page 4

    4

  • Form YG6438 Application for Discretionary Use Permit - Yukon, Canada, Page 1
  • Form YG6438 Application for Discretionary Use Permit - Yukon, Canada, Page 2
  • Form YG6438 Application for Discretionary Use Permit - Yukon, Canada, Page 3
  • Form YG6438 Application for Discretionary Use Permit - Yukon, Canada, Page 4
Prev 1 2 3 4 Next
ADVERTISEMENT

Related Documents