Forme YG5028 Demande De Permis D'utilisation DES Terres - Yukon, Canada (French)

Forme YG5028 Demande De Permis D'utilisation DES Terres - Yukon, Canada (French)

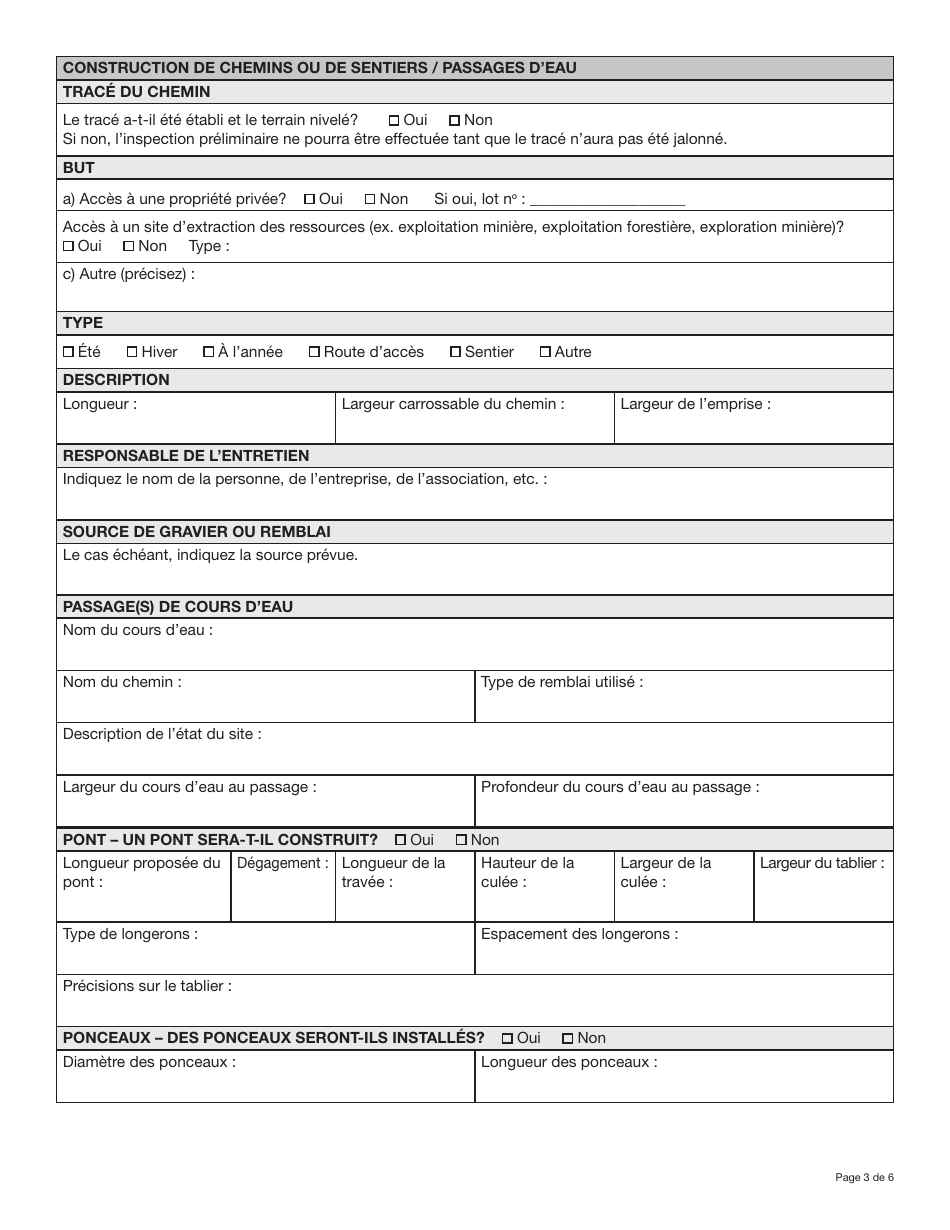
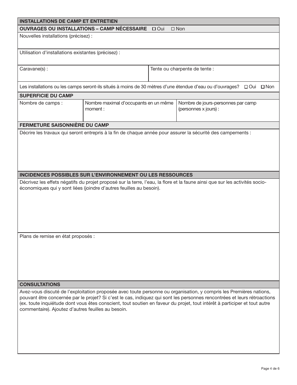
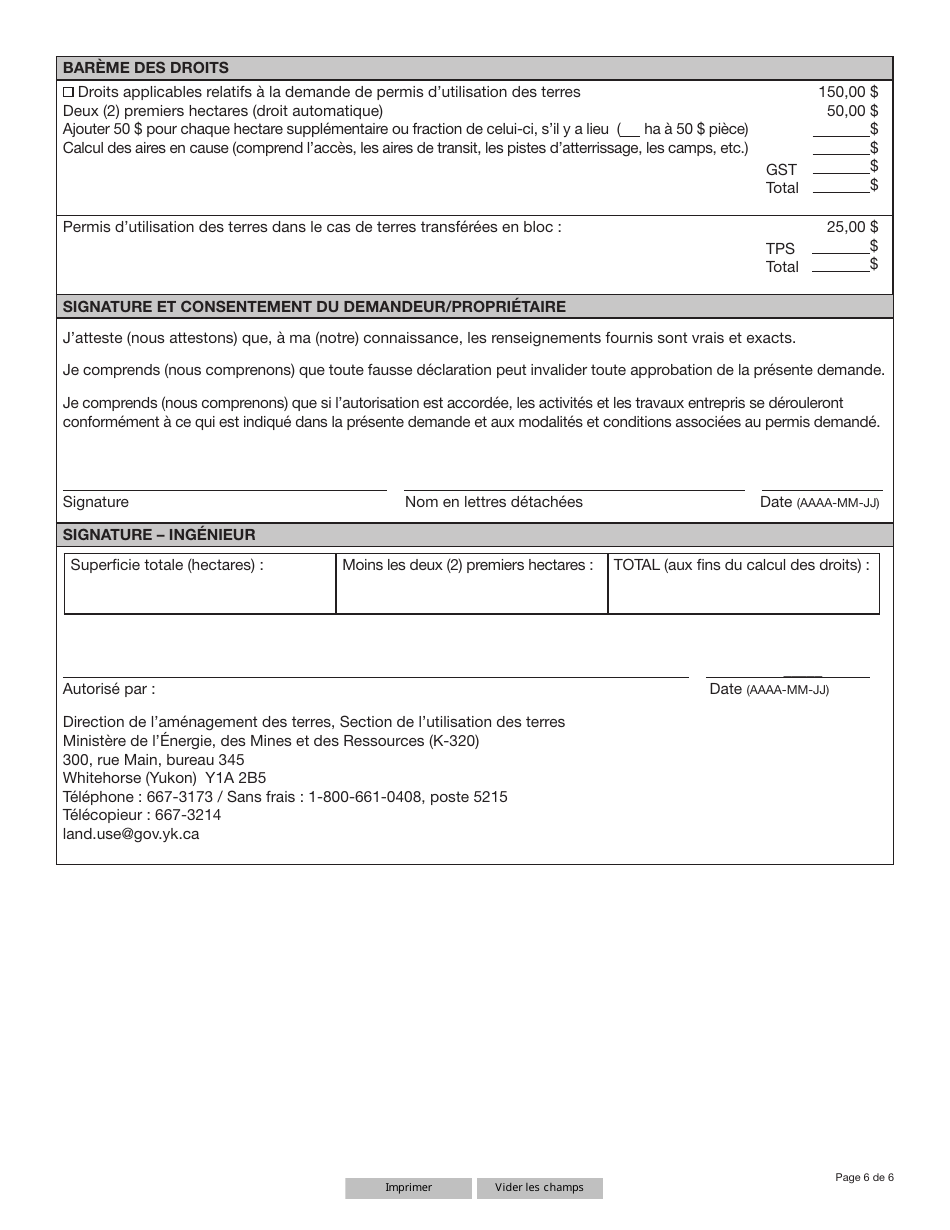
The Forme YG5028 Demande De Permis D'utilisation DES Terres - Yukon, Canada is an application form for requesting the use of land in the Yukon territory of Canada.

The Form YG5028 Demande De Permis D'utilisation DES Terres in Yukon, Canada (French) is typically filed by the person or organization seeking permission to use land in Yukon for a specific purpose.

FAQ

Q: Qu'est-ce que le formulaire YG5028?
A: Le formulaire YG5028 est une demande de permis d'utilisation des terres au Yukon, Canada.

Q: Qui doit remplir le formulaire YG5028?
A: Toute personne souhaitant utiliser des terres au Yukon, Canada doit remplir le formulaire YG5028.

Q: Où peut-on obtenir le formulaire YG5028?
A: Le formulaire YG5028 peut être obtenu en ligne sur le site web du gouvernement du Yukon.

Q: Quels types d'utilisation des terres nécessitent le formulaire YG5028?
A: Le formulaire YG5028 est nécessaire pour toute utilisation des terres au Yukon, y compris l'agriculture, l'exploitation minière, l'aménagement du territoire, etc.

Q: Quelles informations doivent être fournies dans le formulaire YG5028?
A: Le formulaire YG5028 demande des informations telles que le type d'utilisation des terres, la localisation, la durée de l'utilisation, etc.

Q: Existe-t-il des frais pour soumettre le formulaire YG5028?
A: Oui, des frais sont applicables pour soumettre le formulaire YG5028. Les frais varient en fonction du type d'utilisation des terres.

Q: Quelle est la procédure de traitement du formulaire YG5028?
A: Une fois soumis, le formulaire YG5028 sera examiné par les autorités du gouvernement du Yukon pour déterminer si le permis d'utilisation des terres peut être accordé.

Q: Y a-t-il une date limite pour soumettre le formulaire YG5028?
A: Il n'y a pas de date limite spécifique pour soumettre le formulaire YG5028, mais il est recommandé de le faire dès que possible avant le début prévu de l'utilisation des terres.

Q: Quelles sont les conséquences de ne pas remplir le formulaire YG5028?
A: Ne pas remplir le formulaire YG5028 peut entraîner des sanctions et des amendes par les autorités du gouvernement du Yukon.

Q: Où peut-on obtenir de l'aide pour remplir le formulaire YG5028?
A: Pour obtenir de l'aide pour remplir le formulaire YG5028, vous pouvez contacter les autorités du gouvernement du Yukon ou consulter un professionnel du droit spécialisé dans les questions foncières.

ADVERTISEMENT

Download Forme YG5028 Demande De Permis D'utilisation DES Terres - Yukon, Canada (French)

4.4 of 5 (15 votes)
  • Forme YG5028 Demande De Permis D'utilisation DES Terres - Yukon, Canada (French)

    1

  • Forme YG5028 Demande De Permis D'utilisation DES Terres - Yukon, Canada (French), Page 2

    2

  • Forme YG5028 Demande De Permis D'utilisation DES Terres - Yukon, Canada (French), Page 3

    3

  • Forme YG5028 Demande De Permis D'utilisation DES Terres - Yukon, Canada (French), Page 4

    4

  • Forme YG5028 Demande De Permis D'utilisation DES Terres - Yukon, Canada (French), Page 5

    5

  • Forme YG5028 Demande De Permis D'utilisation DES Terres - Yukon, Canada (French), Page 6

    6

  • Forme YG5028 Demande De Permis Dutilisation DES Terres - Yukon, Canada (French), Page 1
  • Forme YG5028 Demande De Permis Dutilisation DES Terres - Yukon, Canada (French), Page 2
  • Forme YG5028 Demande De Permis Dutilisation DES Terres - Yukon, Canada (French), Page 3
  • Forme YG5028 Demande De Permis Dutilisation DES Terres - Yukon, Canada (French), Page 4
  • Forme YG5028 Demande De Permis Dutilisation DES Terres - Yukon, Canada (French), Page 5
  • Forme YG5028 Demande De Permis Dutilisation DES Terres - Yukon, Canada (French), Page 6
Prev 1 2 3 4 5 6 Next
ADVERTISEMENT

Related Documents