Form UST-7A Evaluation for Galvanic (Sacrificial Anode) Systems - North Carolina

Notification Icon This version of the form is not currently in use and is provided for reference only. Download this version of Form UST-7A for the current year.

Form UST-7A Evaluation for Galvanic (Sacrificial Anode) Systems - North Carolina

What Is Form UST-7A?

This is a legal form that was released by the North Carolina Department of Environmental Quality - a government authority operating within North Carolina. As of today, no separate filing guidelines for the form are provided by the issuing department.

FAQ

Q: What is the UST-7A Evaluation form for?
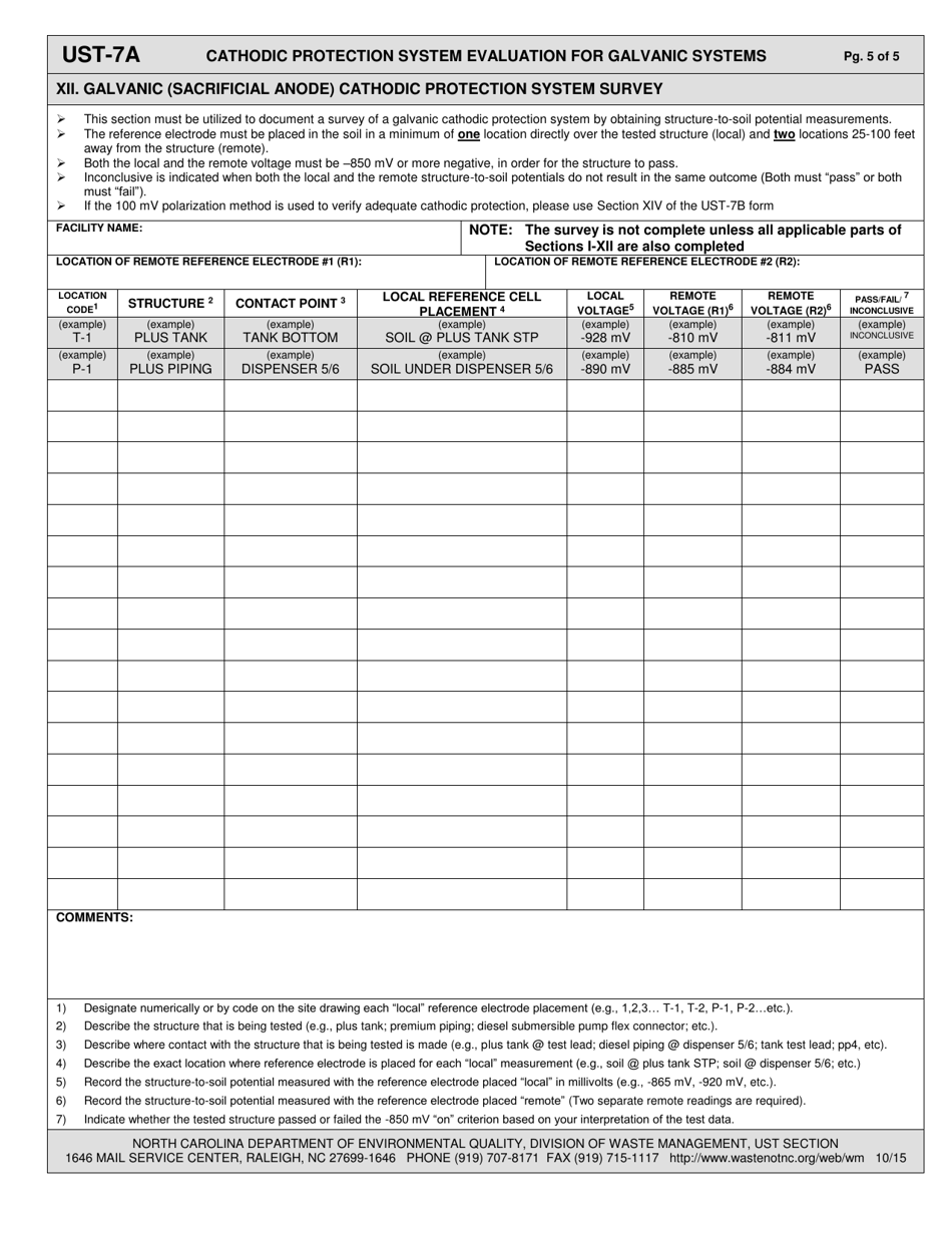
A: The UST-7A Evaluation form is for evaluating Galvanic (Sacrificial Anode) Systems.

Q: What type of systems does the UST-7A Evaluation form deal with?
A: The UST-7A Evaluation form deals with Galvanic (Sacrificial Anode) Systems.

Q: What is the purpose of Galvanic (Sacrificial Anode) Systems?
A: Galvanic (Sacrificial Anode) Systems are used to protect underground storage tanks from corrosion.

Q: Who needs to fill out the UST-7A Evaluation form?
A: Those responsible for maintaining and inspecting Galvanic (Sacrificial Anode) Systems need to fill out the UST-7A Evaluation form.

ADVERTISEMENT

Form Details:

  • Released on October 1, 2015;
  • The latest edition provided by the North Carolina Department of Environmental Quality;
  • Easy to use and ready to print;
  • Quick to customize;
  • Compatible with most PDF-viewing applications;
  • Fill out the form in our online filing application.

Download a fillable version of Form UST-7A by clicking the link below or browse more documents and templates provided by the North Carolina Department of Environmental Quality.

Download Form UST-7A Evaluation for Galvanic (Sacrificial Anode) Systems - North Carolina

4.7 of 5 (56 votes)
  • Form UST-7A Evaluation for Galvanic (Sacrificial Anode) Systems - North Carolina

    1

  • Form UST-7A Evaluation for Galvanic (Sacrificial Anode) Systems - North Carolina, Page 2

    2

  • Form UST-7A Evaluation for Galvanic (Sacrificial Anode) Systems - North Carolina, Page 3

    3

  • Form UST-7A Evaluation for Galvanic (Sacrificial Anode) Systems - North Carolina, Page 4

    4

  • Form UST-7A Evaluation for Galvanic (Sacrificial Anode) Systems - North Carolina, Page 5

    5

  • Form UST-7A Evaluation for Galvanic (Sacrificial Anode) Systems - North Carolina, Page 1
  • Form UST-7A Evaluation for Galvanic (Sacrificial Anode) Systems - North Carolina, Page 2
  • Form UST-7A Evaluation for Galvanic (Sacrificial Anode) Systems - North Carolina, Page 3
  • Form UST-7A Evaluation for Galvanic (Sacrificial Anode) Systems - North Carolina, Page 4
  • Form UST-7A Evaluation for Galvanic (Sacrificial Anode) Systems - North Carolina, Page 5
Prev 1 2 3 4 5 Next
ADVERTISEMENT