Form UST-6 Application to Install or Replace Underground Storage Tank Systems (Pre / Post-installation) - North Carolina

Notification Icon This version of the form is not currently in use and is provided for reference only. Download this version of Form UST-6 for the current year.

Form UST-6 Application to Install or Replace Underground Storage Tank Systems (Pre / Post-installation) - North Carolina

What Is Form UST-6?

This is a legal form that was released by the North Carolina Department of Environmental Quality - a government authority operating within North Carolina. Check the official instructions before completing and submitting the form.

FAQ

Q: What is Form UST-6?
A: Form UST-6 is the application used in North Carolina to install or replace underground storage tank systems (pre/post-installation).

Q: Who needs to fill out Form UST-6?
A: Anyone planning to install or replace underground storagetank systems in North Carolina needs to fill out Form UST-6.

Q: What information is required on Form UST-6?
A: Form UST-6 requires information about the tank owner, tank details, installation plans, and compliance with regulations.

Q: Is there a fee for submitting Form UST-6?
A: Yes, there is a fee associated with submitting Form UST-6, which varies depending on the size and type of tank being installed or replaced.

Q: When should Form UST-6 be submitted?
A: Form UST-6 should be submitted at least 30 days before the planned installation or replacement of the underground storage tank system.

Q: Who should I contact for assistance with Form UST-6?
A: For assistance with Form UST-6, you can contact the NCDEQ's Underground Storage Tank Section at their listed phone number or email address.

Q: Are there any regulations or guidelines to follow when filling out Form UST-6?
A: Yes, it is important to review the instructions and regulations provided with Form UST-6 to ensure compliance with all requirements.

Q: What is the purpose of Form UST-6?
A: The purpose of Form UST-6 is to provide the necessary information to the NCDEQ for the installation or replacement of underground storage tank systems in North Carolina.

ADVERTISEMENT

Form Details:

  • Released on January 1, 2019;
  • The latest edition provided by the North Carolina Department of Environmental Quality;
  • Easy to use and ready to print;
  • Quick to customize;
  • Compatible with most PDF-viewing applications;
  • Fill out the form in our online filing application.

Download a fillable version of Form UST-6 by clicking the link below or browse more documents and templates provided by the North Carolina Department of Environmental Quality.

Download Form UST-6 Application to Install or Replace Underground Storage Tank Systems (Pre / Post-installation) - North Carolina

4.7 of 5 (65 votes)
  • Form UST-6 Application to Install or Replace Underground Storage Tank Systems (Pre/Post-installation) - North Carolina

    1

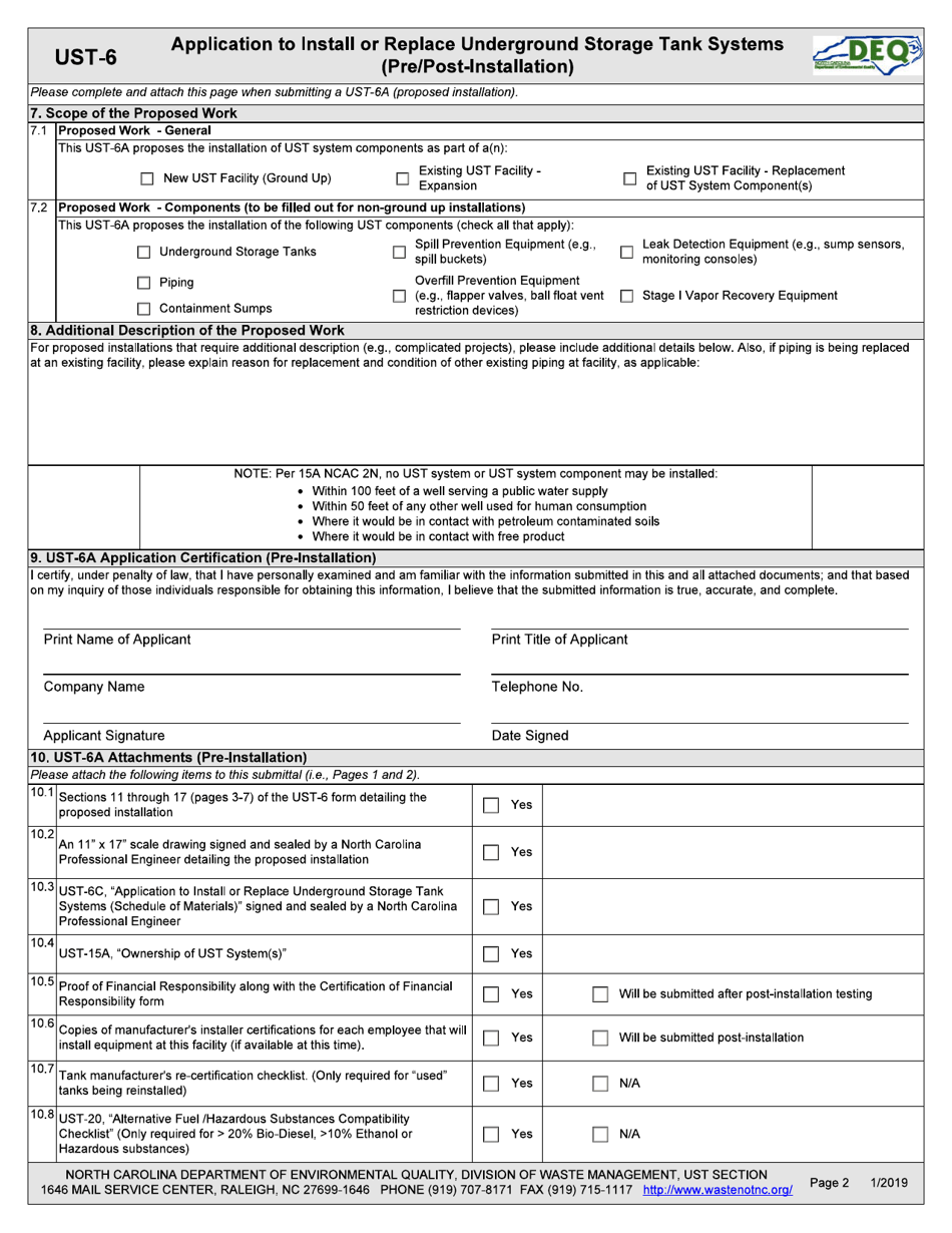
  • Form UST-6 Application to Install or Replace Underground Storage Tank Systems (Pre/Post-installation) - North Carolina, Page 2

    2

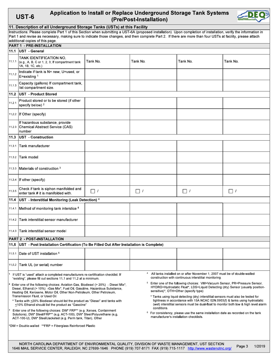
  • Form UST-6 Application to Install or Replace Underground Storage Tank Systems (Pre/Post-installation) - North Carolina, Page 3

    3

  • Form UST-6 Application to Install or Replace Underground Storage Tank Systems (Pre/Post-installation) - North Carolina, Page 4

    4

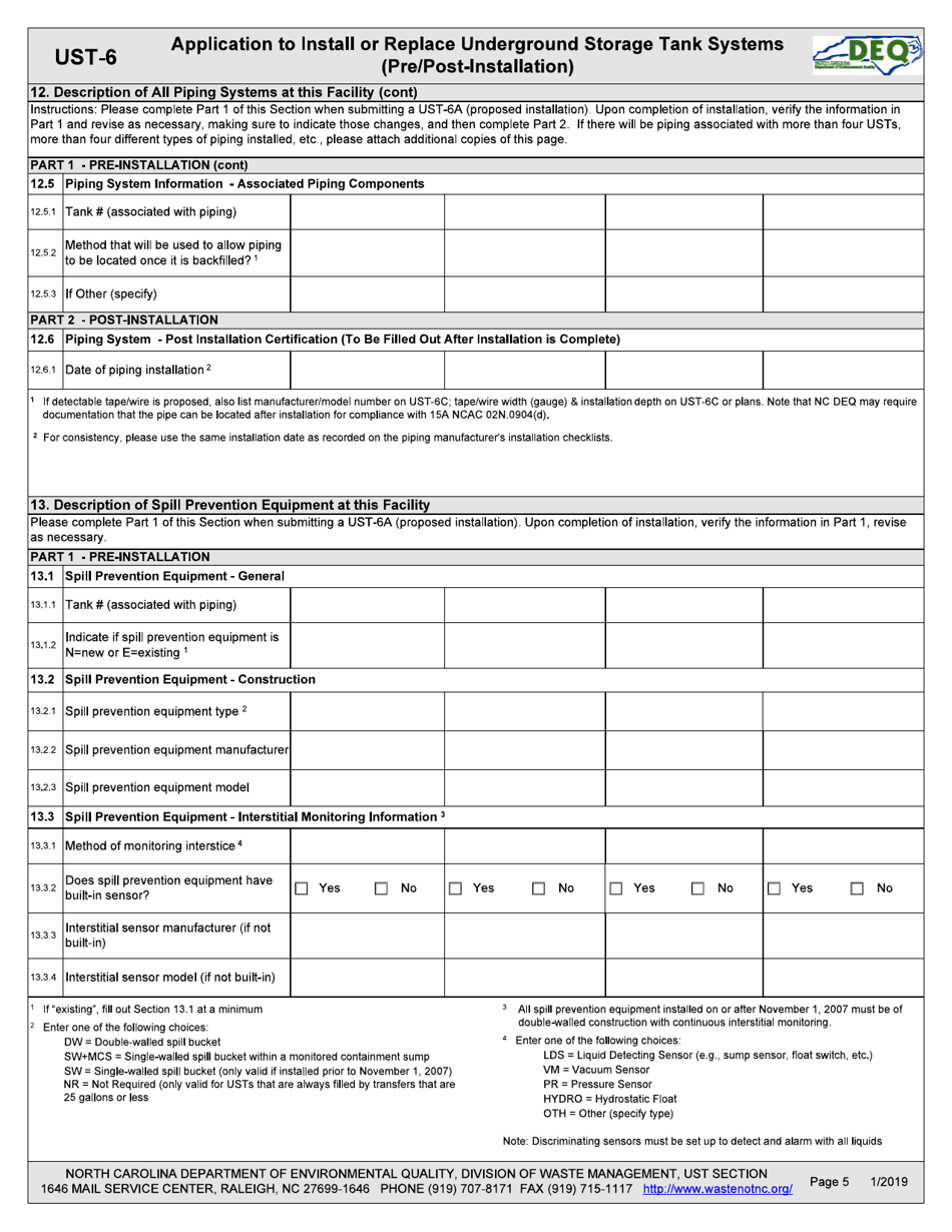
  • Form UST-6 Application to Install or Replace Underground Storage Tank Systems (Pre/Post-installation) - North Carolina, Page 5

    5

  • Form UST-6 Application to Install or Replace Underground Storage Tank Systems (Pre/Post-installation) - North Carolina, Page 6

    6

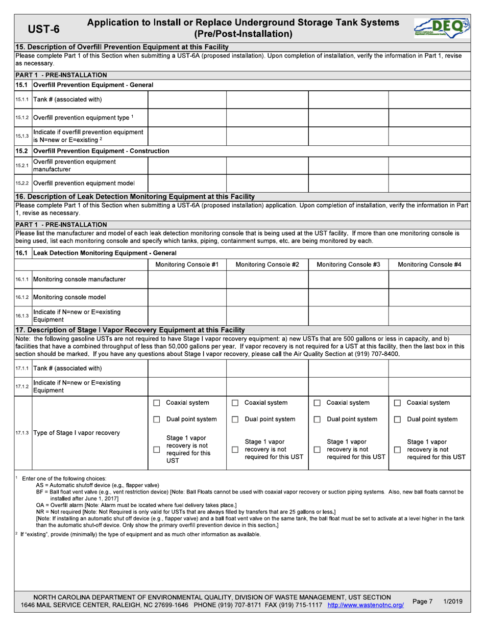
  • Form UST-6 Application to Install or Replace Underground Storage Tank Systems (Pre/Post-installation) - North Carolina, Page 7

    7

  • Form UST-6 Application to Install or Replace Underground Storage Tank Systems (Pre/Post-installation) - North Carolina, Page 8

    8

  • Form UST-6 Application to Install or Replace Underground Storage Tank Systems (Pre/Post-installation) - North Carolina, Page 9

    9

  • Form UST-6 Application to Install or Replace Underground Storage Tank Systems (Pre / Post-installation) - North Carolina, Page 1
  • Form UST-6 Application to Install or Replace Underground Storage Tank Systems (Pre / Post-installation) - North Carolina, Page 2
  • Form UST-6 Application to Install or Replace Underground Storage Tank Systems (Pre / Post-installation) - North Carolina, Page 3
  • Form UST-6 Application to Install or Replace Underground Storage Tank Systems (Pre / Post-installation) - North Carolina, Page 4
  • Form UST-6 Application to Install or Replace Underground Storage Tank Systems (Pre / Post-installation) - North Carolina, Page 5
  • Form UST-6 Application to Install or Replace Underground Storage Tank Systems (Pre / Post-installation) - North Carolina, Page 6
  • Form UST-6 Application to Install or Replace Underground Storage Tank Systems (Pre / Post-installation) - North Carolina, Page 7
  • Form UST-6 Application to Install or Replace Underground Storage Tank Systems (Pre / Post-installation) - North Carolina, Page 8
  • Form UST-6 Application to Install or Replace Underground Storage Tank Systems (Pre / Post-installation) - North Carolina, Page 9
Prev 1 2 3 4 5 ... 9 Next
ADVERTISEMENT

Related Documents