Form REPL-18-0003 Appraisal Management Company Application - Ohio

Form REPL-18-0003 Appraisal Management Company Application - Ohio

What Is Form REPL-18-0003?

This is a legal form that was released by the Ohio Department of Commerce - a government authority operating within Ohio. As of today, no separate filing guidelines for the form are provided by the issuing department.

FAQ

Q: What is the REPL-18-0003 Appraisal Management Company Application?
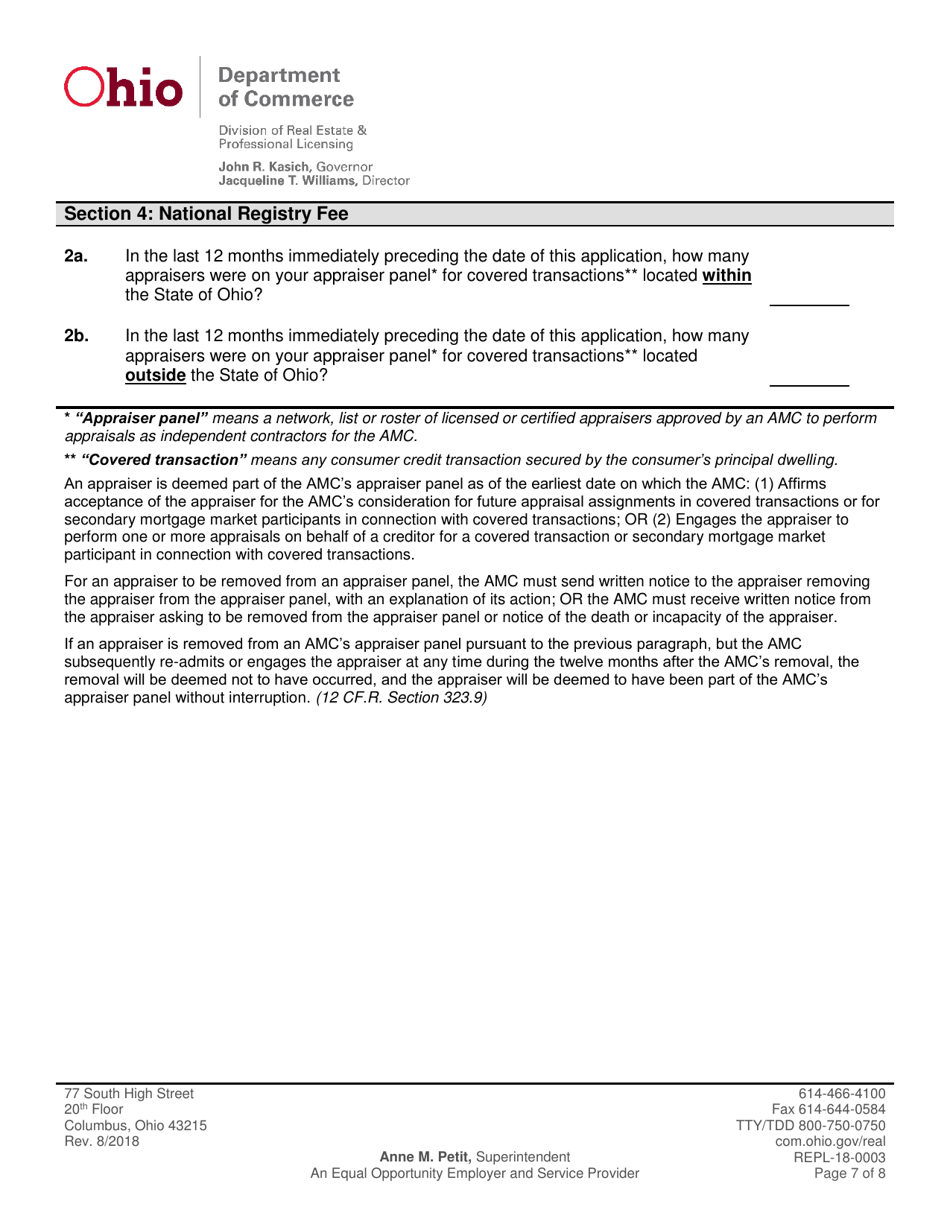
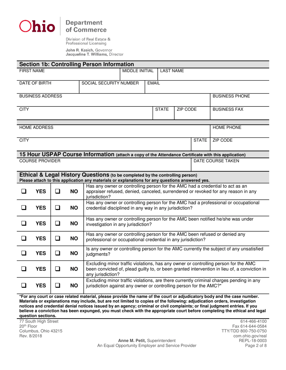
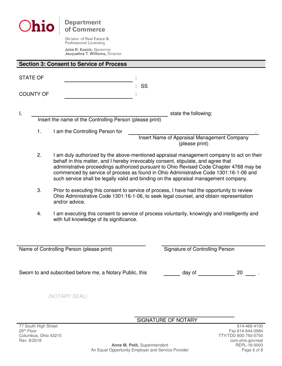
A: The REPL-18-0003 Appraisal Management Company Application is a document used for applying to become an appraisal management company in Ohio.

Q: What is an appraisal management company?
A: An appraisal management company is a business entity that coordinates the appraisal process for mortgage lenders and other clients.

Q: Who needs to complete the REPL-18-0003 Appraisal Management Company Application?
A: Anyone who wants to start an appraisal management company in Ohio needs to complete this application.

Q: What information is required in the application?
A: The application requires information about the company's ownership, financials, experience, and compliance with applicable laws and regulations.

Q: Are there any fees associated with the application?
A: Yes, there are fees associated with the REPL-18-0003 Appraisal Management Company Application. The exact amount can be found on the application form.

Q: How long does it take to process the application?
A: The processing time for the REPL-18-0003 Appraisal Management Company Application can vary, but it typically takes several weeks.

Q: Are there any additional requirements for appraisal management companies in Ohio?
A: Yes, in addition to the application, appraisal management companies in Ohio must meet certain bonding and registration requirements.

ADVERTISEMENT

Form Details:

  • Released on August 1, 2018;
  • The latest edition provided by the Ohio Department of Commerce;
  • Easy to use and ready to print;
  • Quick to customize;
  • Compatible with most PDF-viewing applications;
  • Fill out the form in our online filing application.

Download a fillable version of Form REPL-18-0003 by clicking the link below or browse more documents and templates provided by the Ohio Department of Commerce.

Download Form REPL-18-0003 Appraisal Management Company Application - Ohio

4.5 of 5 (51 votes)
  • Form REPL-18-0003 Appraisal Management Company Application - Ohio

    1

  • Form REPL-18-0003 Appraisal Management Company Application - Ohio, Page 2

    2

  • Form REPL-18-0003 Appraisal Management Company Application - Ohio, Page 3

    3

  • Form REPL-18-0003 Appraisal Management Company Application - Ohio, Page 4

    4

  • Form REPL-18-0003 Appraisal Management Company Application - Ohio, Page 5

    5

  • Form REPL-18-0003 Appraisal Management Company Application - Ohio, Page 6

    6

  • Form REPL-18-0003 Appraisal Management Company Application - Ohio, Page 7

    7

  • Form REPL-18-0003 Appraisal Management Company Application - Ohio, Page 8

    8

  • Form REPL-18-0003 Appraisal Management Company Application - Ohio, Page 9

    9

  • Form REPL-18-0003 Appraisal Management Company Application - Ohio, Page 10

    10

  • Form REPL-18-0003 Appraisal Management Company Application - Ohio, Page 1
  • Form REPL-18-0003 Appraisal Management Company Application - Ohio, Page 2
  • Form REPL-18-0003 Appraisal Management Company Application - Ohio, Page 3
  • Form REPL-18-0003 Appraisal Management Company Application - Ohio, Page 4
  • Form REPL-18-0003 Appraisal Management Company Application - Ohio, Page 5
  • Form REPL-18-0003 Appraisal Management Company Application - Ohio, Page 6
  • Form REPL-18-0003 Appraisal Management Company Application - Ohio, Page 7
  • Form REPL-18-0003 Appraisal Management Company Application - Ohio, Page 8
  • Form REPL-18-0003 Appraisal Management Company Application - Ohio, Page 9
  • Form REPL-18-0003 Appraisal Management Company Application - Ohio, Page 10
Prev 1 2 3 4 5 ... 10 Next
ADVERTISEMENT

Related Documents