Form SF041 Contractor's Material and Test Certificate for Aboveground Piping - Texas

Notification Icon This version of the form is not currently in use and is provided for reference only. Download this version of Form SF041 for the current year.

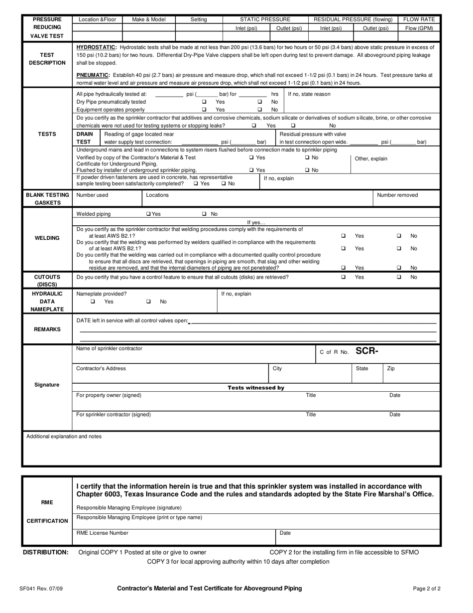
Form SF041 Contractor's Material and Test Certificate for Aboveground Piping - Texas

What Is Form SF041?

This is a legal form that was released by the Texas Department of Insurance - a government authority operating within Texas. As of today, no separate filing guidelines for the form are provided by the issuing department.

FAQ

Q: What is Form SF041?
A: Form SF041 is the Contractor's Material and Test Certificate for Aboveground Piping in Texas.

Q: What is the purpose of Form SF041?
A: The purpose of Form SF041 is to document and verify the materials and tests conducted for aboveground piping in Texas.

Q: Who needs to complete Form SF041?
A: Contractors who are working on aboveground piping projects in Texas need to complete Form SF041.

Q: What information needs to be included in Form SF041?
A: Form SF041 should include details about the materials used, test results, and any relevant certifications for the aboveground piping project.

Q: Is there a deadline for submitting Form SF041?
A: The deadline for submitting Form SF041 may depend on the specific requirements set by the Texas governmental authorities or agencies overseeing the aboveground piping project. Contractors should inquire about the deadline when obtaining the form.

Q: Are there any fees associated with submitting Form SF041?
A: The fees associated with submitting Form SF041 may vary depending on the specific requirements set by the Texas governmental authorities or agencies overseeing the aboveground piping project. Contractors should inquire about the fees when obtaining the form.

ADVERTISEMENT

Form Details:

  • Released on July 1, 2009;
  • The latest edition provided by the Texas Department of Insurance;
  • Easy to use and ready to print;
  • Quick to customize;
  • Compatible with most PDF-viewing applications;
  • Fill out the form in our online filing application.

Download a printable version of Form SF041 by clicking the link below or browse more documents and templates provided by the Texas Department of Insurance.

Download Form SF041 Contractor's Material and Test Certificate for Aboveground Piping - Texas

4.6 of 5 (70 votes)
  • Form SF041 Contractor's Material and Test Certificate for Aboveground Piping - Texas

    1

  • Form SF041 Contractor's Material and Test Certificate for Aboveground Piping - Texas, Page 2

    2

  • Form SF041 Contractors Material and Test Certificate for Aboveground Piping - Texas, Page 1
  • Form SF041 Contractors Material and Test Certificate for Aboveground Piping - Texas, Page 2
Prev 1 2 Next
ADVERTISEMENT