Form SF036 Fire Sprinkler Responsible Managing Employee (Rme) License Application - Texas

Notification Icon This version of the form is not currently in use and is provided for reference only. Download this version of Form SF036 for the current year.

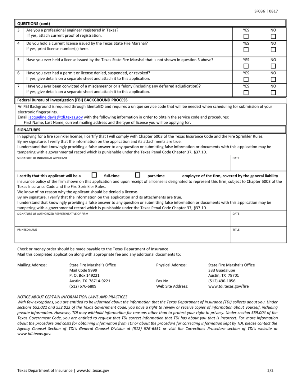
Form SF036 Fire Sprinkler Responsible Managing Employee (Rme) License Application - Texas

What Is Form SF036?

This is a legal form that was released by the Texas Department of Insurance - a government authority operating within Texas. As of today, no separate filing guidelines for the form are provided by the issuing department.

FAQ

Q: What is the Form SF036?
A: Form SF036 is the Fire Sprinkler Responsible Managing Employee (RME) License Application in Texas.

Q: What is the purpose of Form SF036?
A: The purpose of Form SF036 is to apply for a Fire Sprinkler Responsible Managing Employee (RME) license in Texas.

Q: Who is required to fill out Form SF036?
A: Individuals who want to become a Fire Sprinkler Responsible Managing Employee (RME) in Texas are required to fill out this form.

Q: What documents are required to accompany Form SF036?
A: The specific documents required to accompany Form SF036 are listed on the form itself.

Q: How long does it take to process Form SF036?
A: The processing time for Form SF036 can vary. It is recommended to check with the Texas Department of Insurance for the most accurate processing time.

ADVERTISEMENT

Form Details:

  • Released on August 1, 2017;
  • The latest edition provided by the Texas Department of Insurance;
  • Easy to use and ready to print;
  • Quick to customize;
  • Compatible with most PDF-viewing applications;
  • Fill out the form in our online filing application.

Download a printable version of Form SF036 by clicking the link below or browse more documents and templates provided by the Texas Department of Insurance.

Download Form SF036 Fire Sprinkler Responsible Managing Employee (Rme) License Application - Texas

4.8 of 5 (24 votes)
  • Form SF036 Fire Sprinkler Responsible Managing Employee (Rme) License Application - Texas

    1

  • Form SF036 Fire Sprinkler Responsible Managing Employee (Rme) License Application - Texas, Page 2

    2

  • Form SF036 Fire Sprinkler Responsible Managing Employee (Rme) License Application - Texas, Page 1
  • Form SF036 Fire Sprinkler Responsible Managing Employee (Rme) License Application - Texas, Page 2
Prev 1 2 Next
ADVERTISEMENT