Form SF037 Fire Sprinkler Certificate of Registration Application - Texas

Notification Icon This version of the form is not currently in use and is provided for reference only. Download this version of Form SF037 for the current year.

Form SF037 Fire Sprinkler Certificate of Registration Application - Texas

What Is Form SF037?

This is a legal form that was released by the Texas Department of Insurance - a government authority operating within Texas. As of today, no separate filing guidelines for the form are provided by the issuing department.

FAQ

Q: What is the Form SF037 Fire Sprinkler Certificate of Registration Application?
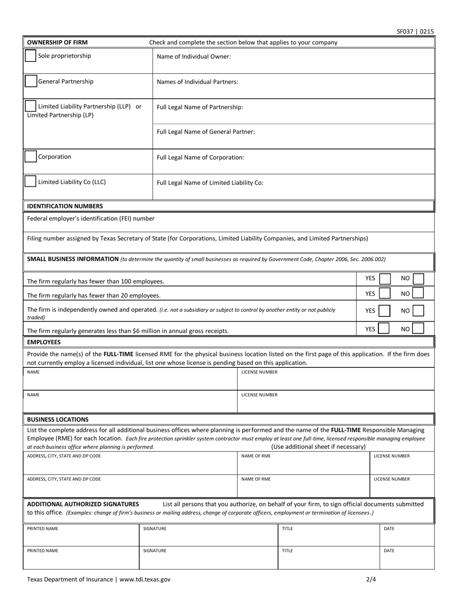
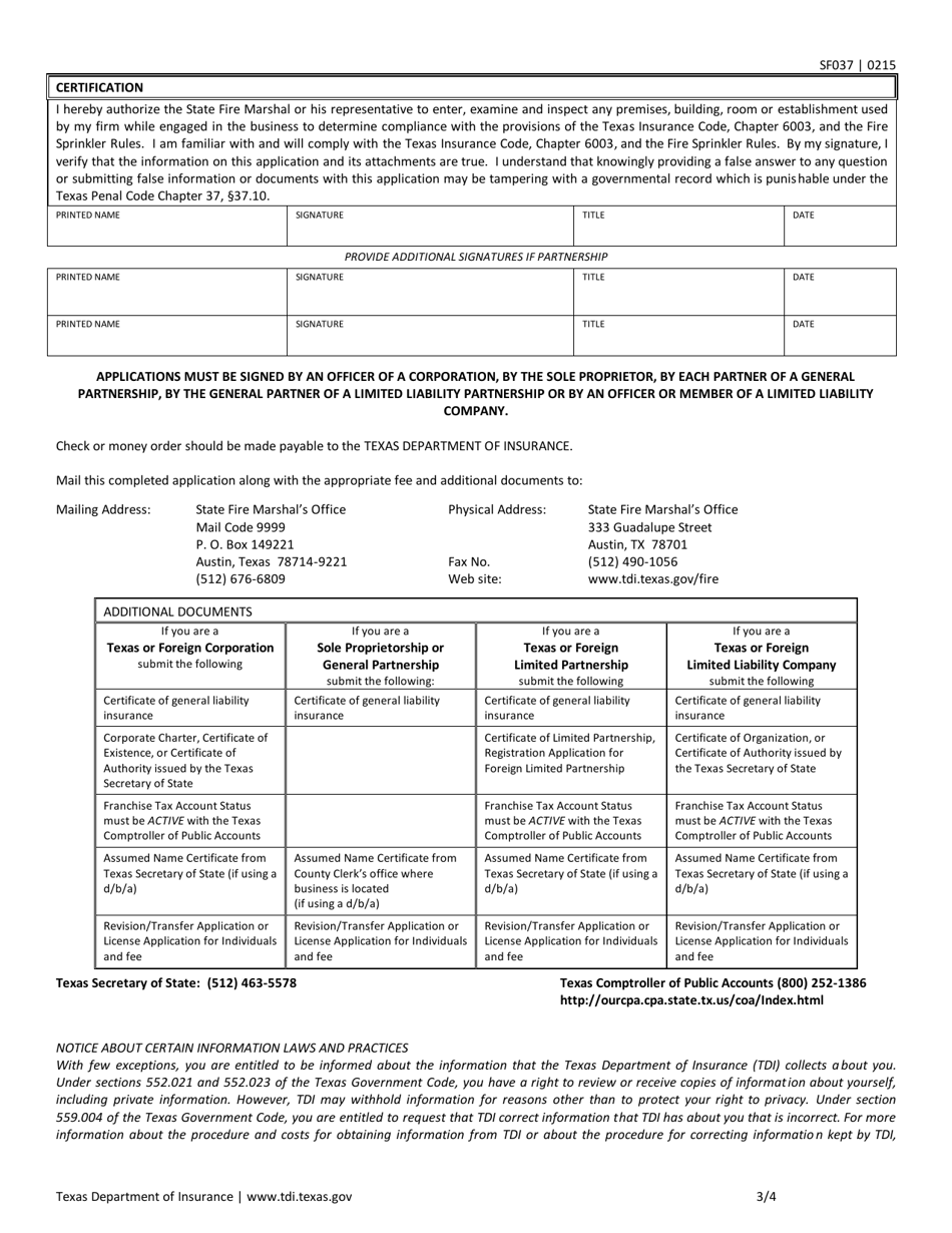
A: The Form SF037 is an application used in Texas to register fire sprinkler systems.

Q: Who needs to submit the Form SF037?
A: Anyone who owns or operates a fire sprinkler system in Texas needs to submit the Form SF037.

Q: What information is required on the Form SF037?
A: The Form SF037 requires information about the owner/operator of the fire sprinkler system, the address where the system is located, and details about the system itself.

Q: Is there a fee for submitting the Form SF037?
A: Yes, there is a fee associated with submitting the Form SF037. The fee amount can be obtained from the Texas State Fire Marshal's Office.

Q: What is the purpose of registering a fire sprinkler system?
A: Registering a fire sprinkler system helps ensure that the system is properly maintained and inspected, and also allows emergency responders to quickly identify and locate fire suppression systems in the event of an emergency.

ADVERTISEMENT

Form Details:

  • Released on February 1, 2015;
  • The latest edition provided by the Texas Department of Insurance;
  • Easy to use and ready to print;
  • Quick to customize;
  • Compatible with most PDF-viewing applications;
  • Fill out the form in our online filing application.

Download a fillable version of Form SF037 by clicking the link below or browse more documents and templates provided by the Texas Department of Insurance.

Download Form SF037 Fire Sprinkler Certificate of Registration Application - Texas

4.4 of 5 (22 votes)
  • Form SF037 Fire Sprinkler Certificate of Registration Application - Texas

    1

  • Form SF037 Fire Sprinkler Certificate of Registration Application - Texas, Page 2

    2

  • Form SF037 Fire Sprinkler Certificate of Registration Application - Texas, Page 3

    3

  • Form SF037 Fire Sprinkler Certificate of Registration Application - Texas, Page 4

    4

  • Form SF037 Fire Sprinkler Certificate of Registration Application - Texas, Page 1
  • Form SF037 Fire Sprinkler Certificate of Registration Application - Texas, Page 2
  • Form SF037 Fire Sprinkler Certificate of Registration Application - Texas, Page 3
  • Form SF037 Fire Sprinkler Certificate of Registration Application - Texas, Page 4
Prev 1 2 3 4 Next
ADVERTISEMENT