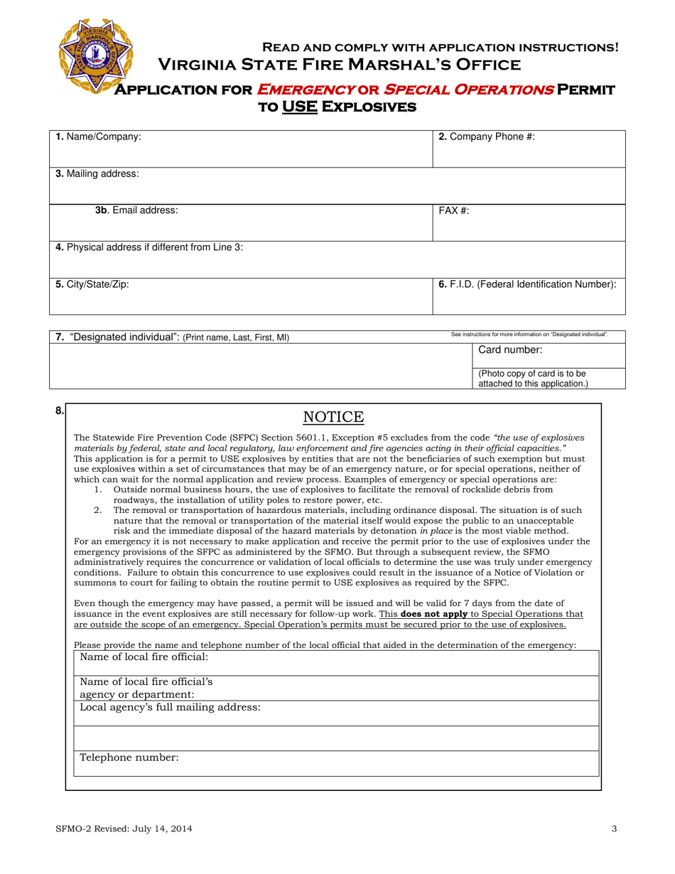
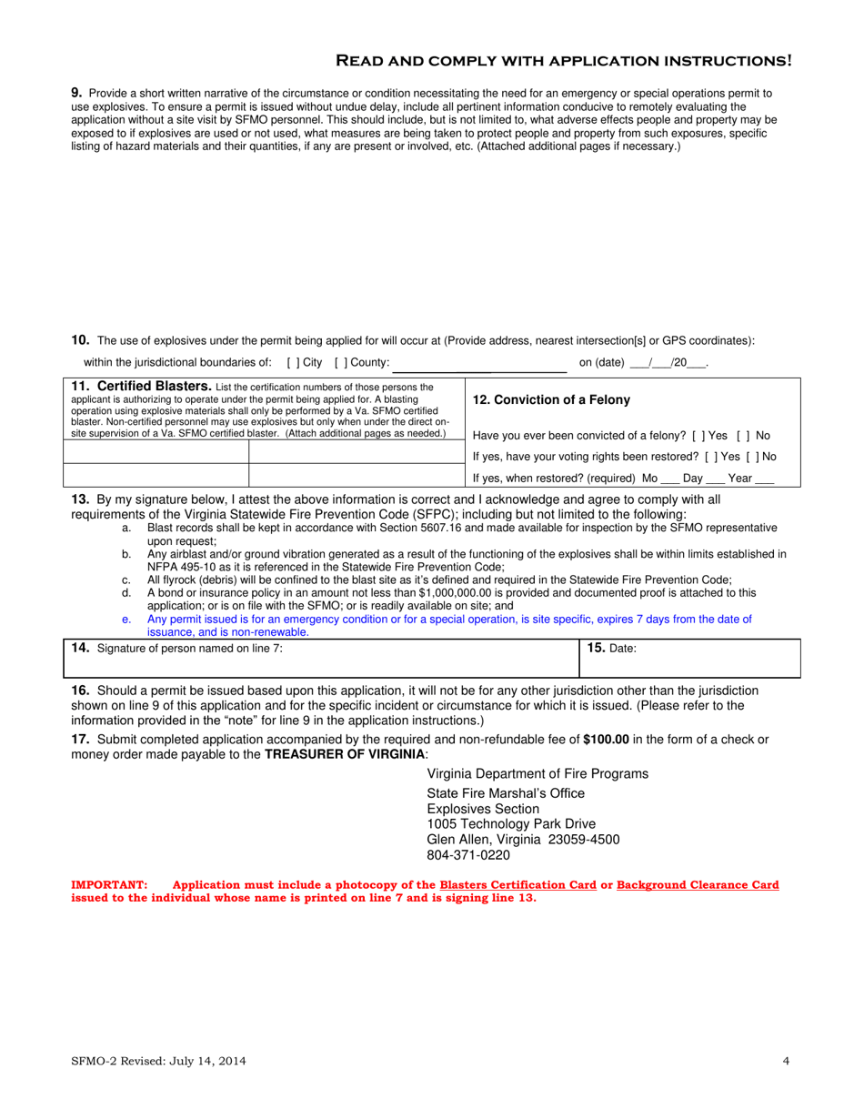
Form SFMO-2 Application for Emergency or Special Operations Permit to Use Explosives - Virginia

Notification Icon This version of the form is not currently in use and is provided for reference only. Download this version of Form SFMO-2 for the current year.

Form SFMO-2 Application for Emergency or Special Operations Permit to Use Explosives - Virginia

What Is Form SFMO-2?

This is a legal form that was released by the Virginia Department of Fire Programs - a government authority operating within Virginia. As of today, no separate filing guidelines for the form are provided by the issuing department.

FAQ

Q: What is the Form SFMO-2?
A: The Form SFMO-2 is an application for an Emergency or Special Operations Permit to Use Explosives in Virginia.

Q: Why would someone need to use explosives?
A: Explosives are used in emergency or special operations, such as demolition or explosive disposal.

Q: Who needs to fill out the Form SFMO-2?
A: Anyone who wants to use explosives in Virginia for emergency or special operations needs to fill out this form.

Q: What information is required on the Form SFMO-2?
A: The form requires information about the applicant, the proposed operation, and safety measures.

Q: Are there any fees associated with the Form SFMO-2?
A: Yes, there are fees associated with the application, which vary depending on the type of operation and the amount of explosives to be used.

Q: How long does it take to process the Form SFMO-2?
A: The processing time may vary, but it generally takes a few weeks to review and approve the application.

Q: Are there any additional permits or licenses required?
A: Yes, depending on the nature of the operation, additional permits or licenses may be required from other agencies, such as local authorities or the Bureau of Alcohol, Tobacco, Firearms and Explosives (ATF).

Q: What happens after the Form SFMO-2 is approved?
A: Once the form is approved, the applicant will receive an Emergency or Special Operations Permit to Use Explosives, which allows them to proceed with the proposed operation.

Q: Can the Form SFMO-2 be renewed?
A: No, the permit is valid only for the specific operation or event stated on the application. A new application must be submitted for each subsequent operation.

ADVERTISEMENT

Form Details:

  • Released on July 14, 2014;
  • The latest edition provided by the Virginia Department of Fire Programs;
  • Easy to use and ready to print;
  • Quick to customize;
  • Compatible with most PDF-viewing applications;
  • Fill out the form in our online filing application.

Download a printable version of Form SFMO-2 by clicking the link below or browse more documents and templates provided by the Virginia Department of Fire Programs.

Download Form SFMO-2 Application for Emergency or Special Operations Permit to Use Explosives - Virginia

4.4 of 5 (88 votes)
  • Form SFMO-2 Application for Emergency or Special Operations Permit to Use Explosives - Virginia

    1

  • Form SFMO-2 Application for Emergency or Special Operations Permit to Use Explosives - Virginia, Page 2

    2

  • Form SFMO-2 Application for Emergency or Special Operations Permit to Use Explosives - Virginia, Page 3

    3

  • Form SFMO-2 Application for Emergency or Special Operations Permit to Use Explosives - Virginia, Page 4

    4

  • Form SFMO-2 Application for Emergency or Special Operations Permit to Use Explosives - Virginia, Page 1
  • Form SFMO-2 Application for Emergency or Special Operations Permit to Use Explosives - Virginia, Page 2
  • Form SFMO-2 Application for Emergency or Special Operations Permit to Use Explosives - Virginia, Page 3
  • Form SFMO-2 Application for Emergency or Special Operations Permit to Use Explosives - Virginia, Page 4
Prev 1 2 3 4 Next
ADVERTISEMENT

Related Documents