Form F500-104-000 Application for Pump Installer Combination General Contractor Registration and Electrical Contractor License - Washington

Notification Icon This version of the form is not currently in use and is provided for reference only. Download this version of Form F500-104-000 for the current year.

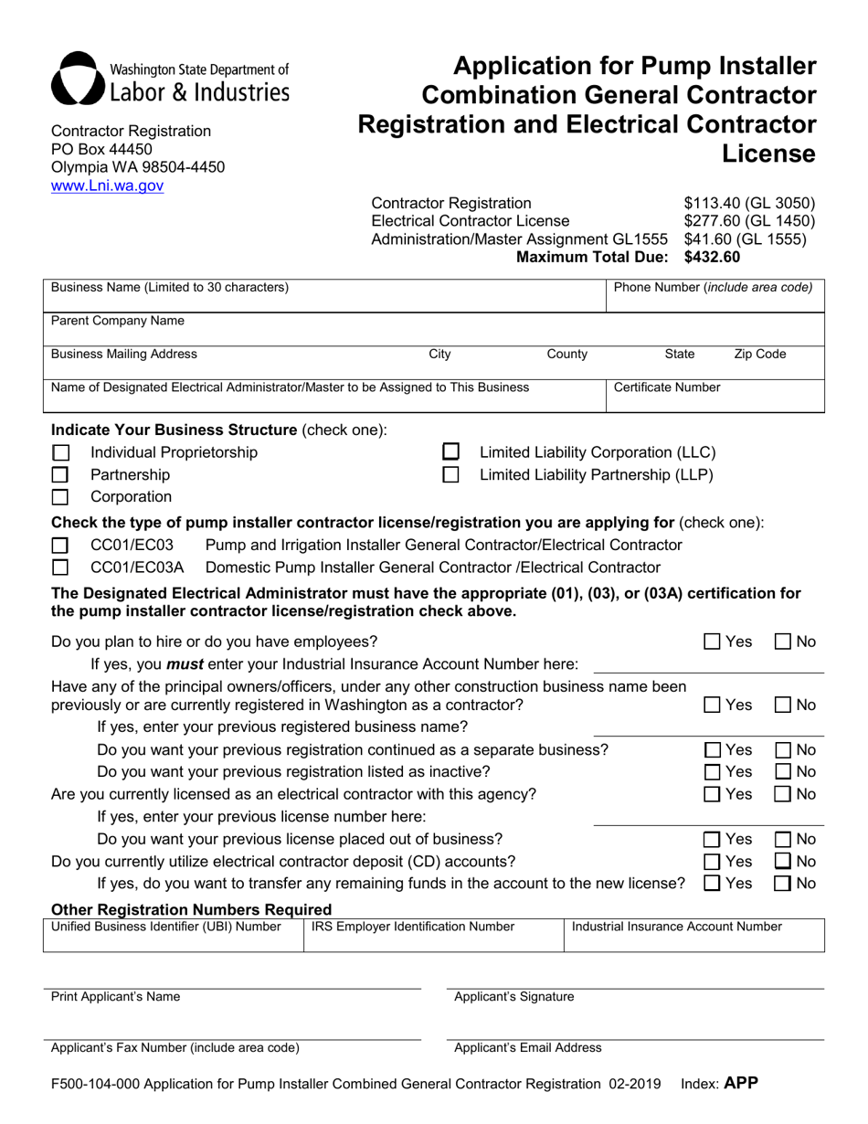
Form F500-104-000 Application for Pump Installer Combination General Contractor Registration and Electrical Contractor License - Washington

What Is Form F500-104-000?

This is a legal form that was released by the Washington State Department of Labor and Industries - a government authority operating within Washington. As of today, no separate filing guidelines for the form are provided by the issuing department.

FAQ

Q: What is the F500-104-000 form?
A: The F500-104-000 form is an application for Pump Installer Combination General Contractor Registration and Electrical Contractor License in Washington.

Q: What does the form entail?
A: The form entails applying for a Pump Installer Combination General Contractor Registration and Electrical Contractor License.

Q: Who is required to fill out this form?
A: Contractors who want to become registered as a Pump Installer Combination General Contractor and obtain an Electrical Contractor License in Washington are required to fill out this form.

Q: What is the purpose of the Pump Installer Combination General Contractor Registration?
A: The purpose of this registration is to ensure that contractors who install pumps meet certain requirements and can perform the work safely.

Q: What is the purpose of the Electrical Contractor License?
A: The purpose of this license is to ensure that contractors who perform electrical work meet certain requirements and can perform the work safely.

ADVERTISEMENT

Form Details:

  • Released on February 1, 2019;
  • The latest edition provided by the Washington State Department of Labor and Industries;
  • Easy to use and ready to print;
  • Quick to customize;
  • Compatible with most PDF-viewing applications;
  • Fill out the form in our online filing application.

Download a fillable version of Form F500-104-000 by clicking the link below or browse more documents and templates provided by the Washington State Department of Labor and Industries.

Download Form F500-104-000 Application for Pump Installer Combination General Contractor Registration and Electrical Contractor License - Washington

4.3 of 5 (53 votes)
  • Form F500-104-000 Application for Pump Installer Combination General Contractor Registration and Electrical Contractor License - Washington

    1

  • Form F500-104-000 Application for Pump Installer Combination General Contractor Registration and Electrical Contractor License - Washington, Page 2

    2

  • Form F500-104-000 Application for Pump Installer Combination General Contractor Registration and Electrical Contractor License - Washington, Page 3

    3

  • Form F500-104-000 Application for Pump Installer Combination General Contractor Registration and Electrical Contractor License - Washington, Page 4

    4

  • Form F500-104-000 Application for Pump Installer Combination General Contractor Registration and Electrical Contractor License - Washington, Page 5

    5

  • Form F500-104-000 Application for Pump Installer Combination General Contractor Registration and Electrical Contractor License - Washington, Page 1
  • Form F500-104-000 Application for Pump Installer Combination General Contractor Registration and Electrical Contractor License - Washington, Page 2
  • Form F500-104-000 Application for Pump Installer Combination General Contractor Registration and Electrical Contractor License - Washington, Page 3
  • Form F500-104-000 Application for Pump Installer Combination General Contractor Registration and Electrical Contractor License - Washington, Page 4
  • Form F500-104-000 Application for Pump Installer Combination General Contractor Registration and Electrical Contractor License - Washington, Page 5
Prev 1 2 3 4 5 Next
ADVERTISEMENT