Form F500-094-000 Property Owner Electrical Work Permit Application - Washington

Notification Icon This version of the form is not currently in use and is provided for reference only. Download this version of Form F500-094-000 for the current year.

Form F500-094-000 Property Owner Electrical Work Permit Application - Washington

What Is Form F500-094-000?

This is a legal form that was released by the Washington State Department of Labor and Industries - a government authority operating within Washington. As of today, no separate filing guidelines for the form are provided by the issuing department.

FAQ

Q: What is the Form F500-094-000?
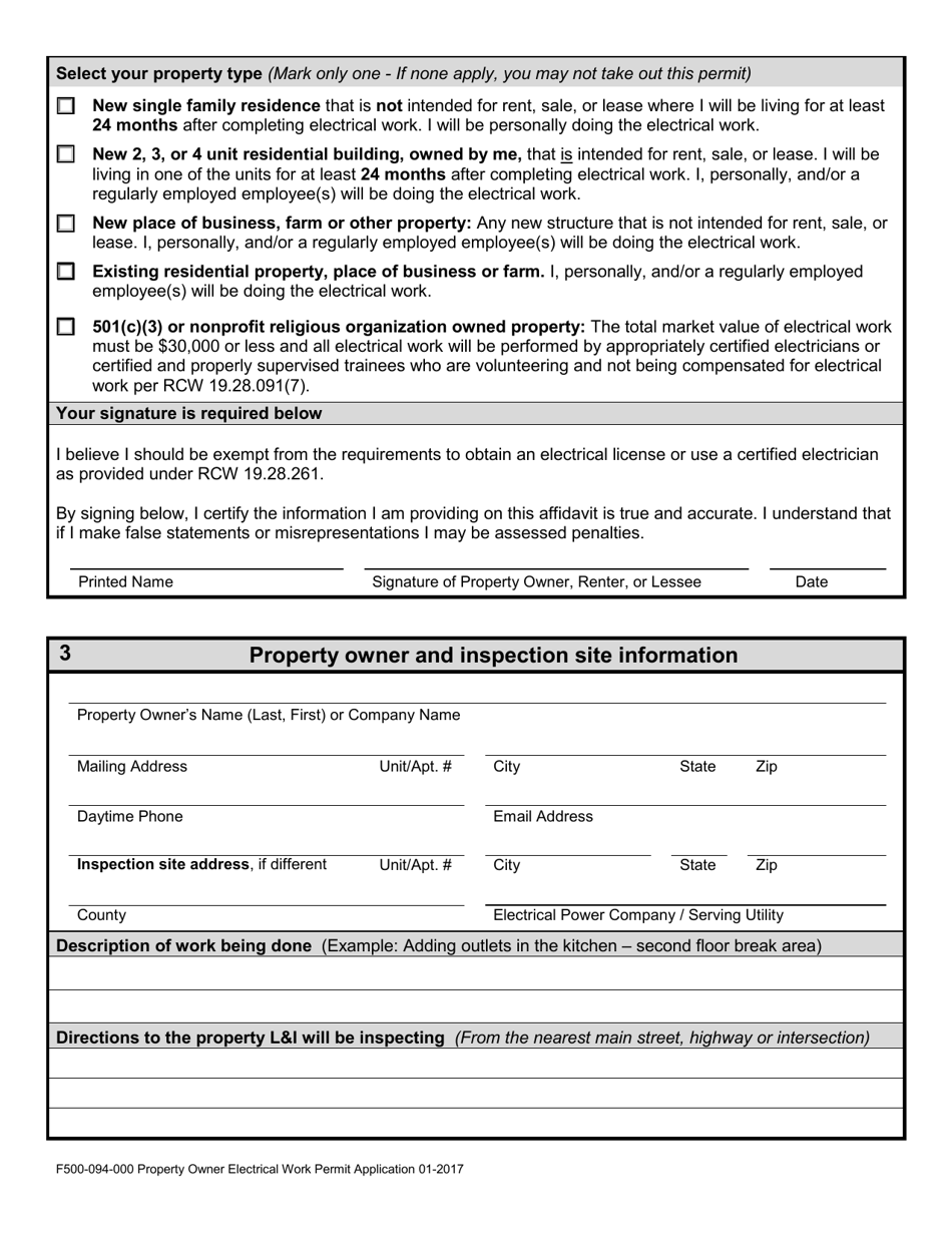
A: Form F500-094-000 is a Property Owner Electrical Work Permit Application specific to Washington state.

Q: Who can use Form F500-094-000?
A: This form is for property owners who want to perform electrical work on their own property in Washington.

Q: What is the purpose of Form F500-094-000?
A: The purpose of this form is to obtain a permit for property owners to legally perform electrical work on their own property in Washington.

Q: Do I need a permit to do electrical work on my own property in Washington?
A: Yes, property owners need to obtain a permit for electrical work on their own property in Washington.

Q: Are there any fees associated with Form F500-094-000?
A: Yes, there are fees associated with this form. The fees depend on the scope of the electrical work being performed.

Q: What information is required on Form F500-094-000?
A: The form requires information such as the property owner's name, address, contact information, description of the electrical work, and proof of property ownership.

Q: How long does it take to process Form F500-094-000?
A: The processing time for this form may vary. It is best to consult with the Washington State Department of Labor & Industries for specific timelines.

Q: Can I hire a licensed electrician to perform the work instead?
A: Yes, property owners have the option to hire a licensed electrician to perform the electrical work instead of doing it themselves.

Q: What are the consequences of performing electrical work without obtaining a permit?
A: Performing electrical work without a permit is illegal and can result in penalties, fines, or other legal consequences.

ADVERTISEMENT

Form Details:

  • Released on January 1, 2017;
  • The latest edition provided by the Washington State Department of Labor and Industries;
  • Easy to use and ready to print;
  • Quick to customize;
  • Compatible with most PDF-viewing applications;
  • Fill out the form in our online filing application.

Download a fillable version of Form F500-094-000 by clicking the link below or browse more documents and templates provided by the Washington State Department of Labor and Industries.

Download Form F500-094-000 Property Owner Electrical Work Permit Application - Washington

4.4 of 5 (33 votes)
  • Form F500-094-000 Property Owner Electrical Work Permit Application - Washington

    1

  • Form F500-094-000 Property Owner Electrical Work Permit Application - Washington, Page 2

    2

  • Form F500-094-000 Property Owner Electrical Work Permit Application - Washington, Page 3

    3

  • Form F500-094-000 Property Owner Electrical Work Permit Application - Washington, Page 4

    4

  • Form F500-094-000 Property Owner Electrical Work Permit Application - Washington, Page 5

    5

  • Form F500-094-000 Property Owner Electrical Work Permit Application - Washington, Page 1
  • Form F500-094-000 Property Owner Electrical Work Permit Application - Washington, Page 2
  • Form F500-094-000 Property Owner Electrical Work Permit Application - Washington, Page 3
  • Form F500-094-000 Property Owner Electrical Work Permit Application - Washington, Page 4
  • Form F500-094-000 Property Owner Electrical Work Permit Application - Washington, Page 5
Prev 1 2 3 4 5 Next
ADVERTISEMENT

Related Documents