Form LA-656-003 Landscape Architect Licensure Application - Washington

Notification Icon This version of the form is not currently in use and is provided for reference only. Download this version of Form LA-656-003 for the current year.

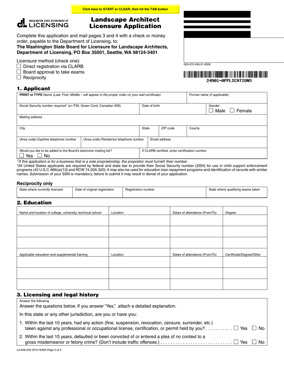
Form LA-656-003 Landscape Architect Licensure Application - Washington

What Is Form LA-656-003?

This is a legal form that was released by the Washington State Department of Licensing - a government authority operating within Washington. As of today, no separate filing guidelines for the form are provided by the issuing department.

FAQ

Q: What is Form LA-656-003?
A: Form LA-656-003 is the Landscape Architect Licensure Application form for the state of Washington.

Q: Who can use Form LA-656-003?
A: Form LA-656-003 can be used by individuals who wish to apply for licensure as a Landscape Architect in the state of Washington.

Q: What is the purpose of Form LA-656-003?
A: The purpose of Form LA-656-003 is to collect the necessary information and documentation from applicants to determine their eligibility for licensure as a Landscape Architect.

Q: What documents should be included with Form LA-656-003?
A: Applicants should include proof of education, transcripts, letters of reference, and any other required documentation as specified in the application instructions.

Q: How long does it take to process Form LA-656-003?
A: The processing time for Form LA-656-003 can vary. It is recommended to submit the application well in advance to allow for processing and review.

ADVERTISEMENT

Form Details:

  • Released on March 1, 2019;
  • The latest edition provided by the Washington State Department of Licensing;
  • Easy to use and ready to print;
  • Quick to customize;
  • Compatible with most PDF-viewing applications;
  • Fill out the form in our online filing application.

Download a fillable version of Form LA-656-003 by clicking the link below or browse more documents and templates provided by the Washington State Department of Licensing.

Download Form LA-656-003 Landscape Architect Licensure Application - Washington

4.4 of 5 (90 votes)
  • Form LA-656-003 Landscape Architect Licensure Application - Washington

    1

  • Form LA-656-003 Landscape Architect Licensure Application - Washington, Page 2

    2

  • Form LA-656-003 Landscape Architect Licensure Application - Washington, Page 3

    3

  • Form LA-656-003 Landscape Architect Licensure Application - Washington, Page 4

    4

  • Form LA-656-003 Landscape Architect Licensure Application - Washington, Page 1
  • Form LA-656-003 Landscape Architect Licensure Application - Washington, Page 2
  • Form LA-656-003 Landscape Architect Licensure Application - Washington, Page 3
  • Form LA-656-003 Landscape Architect Licensure Application - Washington, Page 4
Prev 1 2 3 4 Next
ADVERTISEMENT