Form 5600-PM-BMP0321-1 Module 1: Anthracite Underground Mine Permit Application - Pennsylvania

Notification Icon This version of the form is not currently in use and is provided for reference only. Download this version of Form 5600-PM-BMP0321-1 for the current year.

Form 5600-PM-BMP0321-1 Module 1: Anthracite Underground Mine Permit Application - Pennsylvania

What Is Form 5600-PM-BMP0321-1?

This is a legal form that was released by the Pennsylvania Department of Environmental Protection - a government authority operating within Pennsylvania. As of today, no separate filing guidelines for the form are provided by the issuing department.

FAQ

Q: What is Form 5600-PM-BMP0321-1?
A: Form 5600-PM-BMP0321-1 is the Anthracite Underground Mine Permit Application for Pennsylvania.

Q: What is the purpose of this form?
A: The purpose of this form is to apply for a permit for an anthracite underground mine in Pennsylvania.

Q: Who needs to fill out this form?
A: Anyone who wants to establish an anthracite underground mine in Pennsylvania needs to fill out this form.

Q: What information is required in the application?
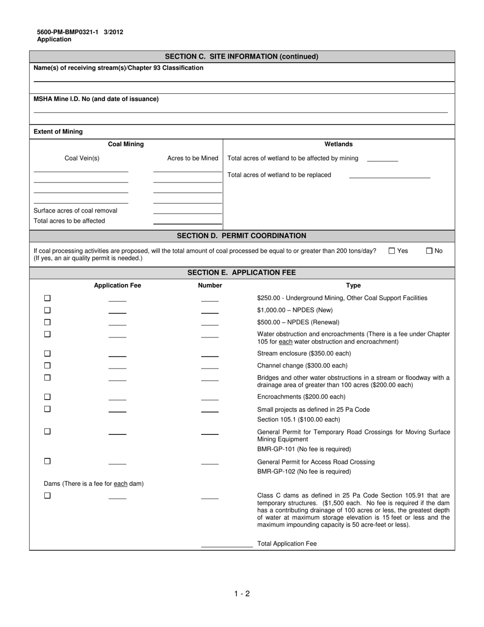
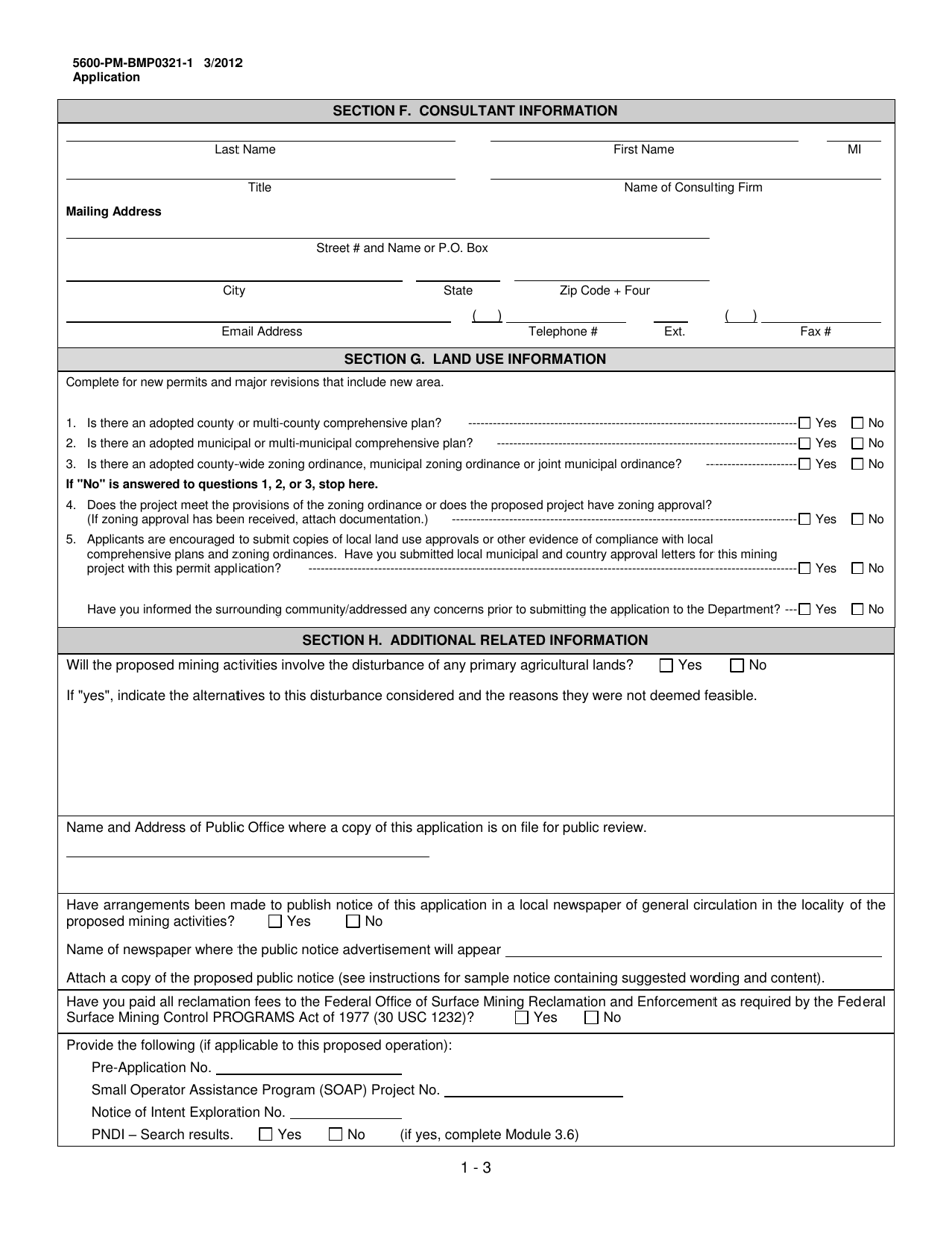
A: The application requires detailed information about the mining project, including location, ownership, geology, equipment, and environmental plans.

ADVERTISEMENT

Form Details:

  • Released on March 1, 2012;
  • The latest edition provided by the Pennsylvania Department of Environmental Protection;
  • Easy to use and ready to print;
  • Quick to customize;
  • Compatible with most PDF-viewing applications;
  • Fill out the form in our online filing application.

Download a printable version of Form 5600-PM-BMP0321-1 by clicking the link below or browse more documents and templates provided by the Pennsylvania Department of Environmental Protection.

Download Form 5600-PM-BMP0321-1 Module 1: Anthracite Underground Mine Permit Application - Pennsylvania

4.7 of 5 (52 votes)
  • Form 5600-PM-BMP0321-1 Module 1: Anthracite Underground Mine Permit Application - Pennsylvania

    1

  • Form 5600-PM-BMP0321-1 Module 1: Anthracite Underground Mine Permit Application - Pennsylvania, Page 2

    2

  • Form 5600-PM-BMP0321-1 Module 1: Anthracite Underground Mine Permit Application - Pennsylvania, Page 3

    3

  • Form 5600-PM-BMP0321-1 Module 1: Anthracite Underground Mine Permit Application - Pennsylvania, Page 4

    4

  • Form 5600-PM-BMP0321-1 Module 1: Anthracite Underground Mine Permit Application - Pennsylvania, Page 5

    5

  • Form 5600-PM-BMP0321-1 Module 1: Anthracite Underground Mine Permit Application - Pennsylvania, Page 6

    6

  • Form 5600-PM-BMP0321-1 Module 1: Anthracite Underground Mine Permit Application - Pennsylvania, Page 7

    7

  • Form 5600-PM-BMP0321-1 Module 1: Anthracite Underground Mine Permit Application - Pennsylvania, Page 1
  • Form 5600-PM-BMP0321-1 Module 1: Anthracite Underground Mine Permit Application - Pennsylvania, Page 2
  • Form 5600-PM-BMP0321-1 Module 1: Anthracite Underground Mine Permit Application - Pennsylvania, Page 3
  • Form 5600-PM-BMP0321-1 Module 1: Anthracite Underground Mine Permit Application - Pennsylvania, Page 4
  • Form 5600-PM-BMP0321-1 Module 1: Anthracite Underground Mine Permit Application - Pennsylvania, Page 5
  • Form 5600-PM-BMP0321-1 Module 1: Anthracite Underground Mine Permit Application - Pennsylvania, Page 6
  • Form 5600-PM-BMP0321-1 Module 1: Anthracite Underground Mine Permit Application - Pennsylvania, Page 7
Prev 1 2 3 4 5 ... 7 Next
ADVERTISEMENT

Related Documents