Standardized Annual Testing Form for Ust Systems - Rhode Island

Notification Icon This version of the form is not currently in use and is provided for reference only. Download this version of the document for the current year.

Standardized Annual Testing Form for Ust Systems - Rhode Island

Standardized Annual Testing Form for Ust Systems is a legal document that was released by the Rhode Island Department of Environmental Management - a government authority operating within Rhode Island.

FAQ

Q: What is the Standardized Annual Testing Form for UST Systems in Rhode Island?
A: The Standardized Annual Testing Form is a document used to report the results of annual testing conducted on Underground Storage Tank (UST) systems in Rhode Island.

Q: Who is required to use the Standardized Annual Testing Form?
A: Owners and operators of UST systems in Rhode Island are required to use the Standardized Annual Testing Form.

Q: What are UST systems?
A: UST systems are underground storage tank systems used to store petroleum or hazardous substances.

Q: What is the purpose of annual testing for UST systems?
A: Annual testing is conducted to ensure that UST systems are operating safely and in compliance with regulations.

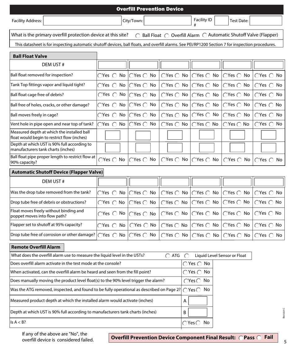
Q: What information is included in the Standardized Annual Testing Form?
A: The Standardized Annual Testing Form includes information such as the name and address of the facility, test dates, test results, and certification information.

Q: Is there a deadline for submitting the Standardized Annual Testing Form?
A: Yes, the Standardized Annual Testing Form must be submitted to RIDEM within 60 days of the testing date.

Q: What happens if I fail to submit the Standardized Annual Testing Form?
A: Failure to submit the Standardized Annual Testing Form may result in penalties and enforcement actions by RIDEM.

Q: Can I submit the Standardized Annual Testing Form electronically?
A: Yes, the Standardized Annual Testing Form can be submitted electronically through RIDEM's UST Licensing and E-Permitting System (ULEP).

ADVERTISEMENT

Form Details:

  • Released on April 15, 2019;
  • The latest edition currently provided by the Rhode Island Department of Environmental Management;
  • Ready to use and print;
  • Easy to customize;
  • Compatible with most PDF-viewing applications;
  • Fill out the form in our online filing application.

Download a fillable version of the form by clicking the link below or browse more documents and templates provided by the Rhode Island Department of Environmental Management.

Download Standardized Annual Testing Form for Ust Systems - Rhode Island

4.6 of 5 (34 votes)
  • Standardized Annual Testing Form for Ust Systems - Rhode Island

    1

  • Standardized Annual Testing Form for Ust Systems - Rhode Island, Page 2

    2

  • Standardized Annual Testing Form for Ust Systems - Rhode Island, Page 3

    3

  • Standardized Annual Testing Form for Ust Systems - Rhode Island, Page 4

    4

  • Standardized Annual Testing Form for Ust Systems - Rhode Island, Page 5

    5

  • Standardized Annual Testing Form for Ust Systems - Rhode Island, Page 6

    6

  • Standardized Annual Testing Form for Ust Systems - Rhode Island, Page 1
  • Standardized Annual Testing Form for Ust Systems - Rhode Island, Page 2
  • Standardized Annual Testing Form for Ust Systems - Rhode Island, Page 3
  • Standardized Annual Testing Form for Ust Systems - Rhode Island, Page 4
  • Standardized Annual Testing Form for Ust Systems - Rhode Island, Page 5
  • Standardized Annual Testing Form for Ust Systems - Rhode Island, Page 6
Prev 1 2 3 4 5 6 Next
ADVERTISEMENT