Application for Asbestos Training Courses - Rhode Island

Application for Asbestos Training Courses - Rhode Island

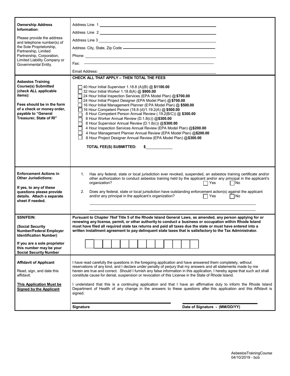
Application for Asbestos Training Courses is a legal document that was released by the Rhode Island Department of Health - a government authority operating within Rhode Island.

FAQ

Q: What is the process for applying for asbestos training courses in Rhode Island?
A: To apply for asbestos training courses in Rhode Island, you need to follow the specific instructions provided by the approved training provider.

Q: Are asbestos training courses mandatory in Rhode Island?
A: Yes, asbestos training courses are mandatory in Rhode Island for certain occupations and activities involving asbestos.

Q: What is the cost of asbestos training courses in Rhode Island?
A: The cost of asbestos training courses in Rhode Island may vary depending on the provider. It is best to contact the approved training providers directly for specific pricing information.

Q: How long do asbestos training courses in Rhode Island typically take?
A: The duration of asbestos training courses in Rhode Island can vary depending on the specific course. It is best to check with the approved training provider for information on course duration.

ADVERTISEMENT

Form Details:

  • Released on April 10, 2019;
  • The latest edition currently provided by the Rhode Island Department of Health;
  • Ready to use and print;
  • Easy to customize;
  • Compatible with most PDF-viewing applications;
  • Fill out the form in our online filing application.

Download a printable version of the form by clicking the link below or browse more documents and templates provided by the Rhode Island Department of Health.

Download Application for Asbestos Training Courses - Rhode Island

4.6 of 5 (27 votes)
  • Application for Asbestos Training Courses - Rhode Island

    1

  • Application for Asbestos Training Courses - Rhode Island, Page 2

    2

  • Application for Asbestos Training Courses - Rhode Island, Page 3

    3

  • Application for Asbestos Training Courses - Rhode Island, Page 4

    4

  • Application for Asbestos Training Courses - Rhode Island, Page 1
  • Application for Asbestos Training Courses - Rhode Island, Page 2
  • Application for Asbestos Training Courses - Rhode Island, Page 3
  • Application for Asbestos Training Courses - Rhode Island, Page 4
Prev 1 2 3 4 Next
ADVERTISEMENT