DHEC Form 3580 Standard Application Form for New or Expanding Agricultural Animal Facilities (Other Than Swine) - South Carolina

Notification Icon This version of the form is not currently in use and is provided for reference only. Download this version of DHEC Form 3580 for the current year.

DHEC Form 3580 Standard Application Form for New or Expanding Agricultural Animal Facilities (Other Than Swine) - South Carolina

What Is DHEC Form 3580?

This is a legal form that was released by the South Carolina Department of Health and Environmental Control - a government authority operating within South Carolina. As of today, no separate filing guidelines for the form are provided by the issuing department.

FAQ

Q: What is DHEC Form 3580?
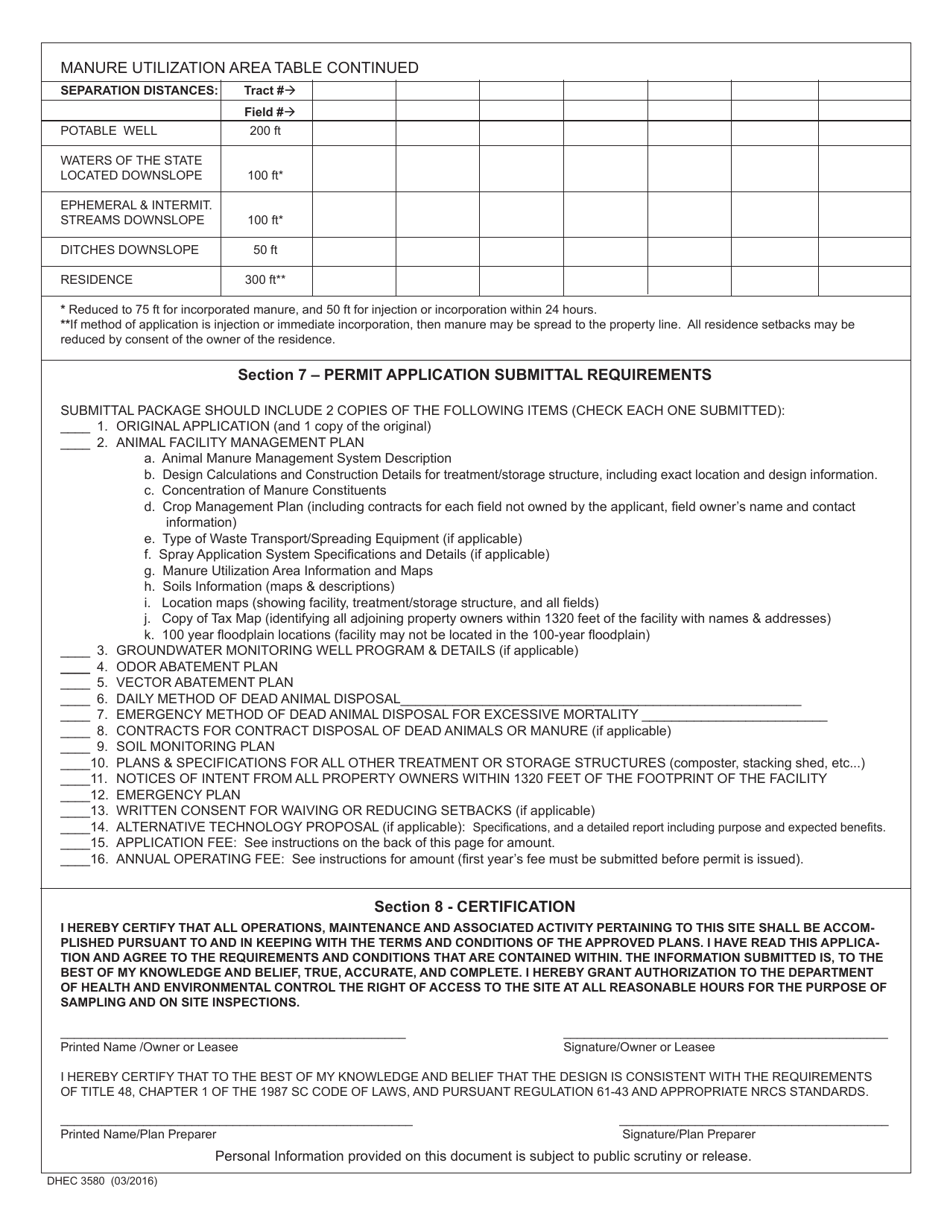
A: DHEC Form 3580 is the Standard Application Form for New or Expanding Agricultural Animal Facilities (Other Than Swine) in South Carolina.

Q: What is the purpose of DHEC Form 3580?
A: The purpose of DHEC Form 3580 is to collect information about new or expanding agricultural animal facilities (excluding swine) in South Carolina.

Q: Who needs to fill out DHEC Form 3580?
A: Anyone who is planning to establish a new or expand an existing agricultural animal facility (excluding swine) in South Carolina needs to fill out DHEC Form 3580.

Q: What information is required on DHEC Form 3580?
A: DHEC Form 3580 requires information about the location of the facility, the type and number of animals to be housed, waste management plans, and other related details.

Q: Are there any fees associated with submitting DHEC Form 3580?
A: Yes, there are fees associated with submitting DHEC Form 3580. The fee amount depends on the size and type of the proposed agricultural animal facility.

Q: What happens after I submit DHEC Form 3580?
A: After you submit DHEC Form 3580, it will be reviewed by the South Carolina Department of Health and Environmental Control. They will notify you if any additional information or permits are required.

Q: How long does it take to get approval for an agricultural animal facility in South Carolina?
A: The approval process for an agricultural animal facility in South Carolina can vary, but it typically takes several weeks to several months to receive a decision.

Q: Are there any regulations or guidelines that I need to follow when establishing an agricultural animal facility in South Carolina?
A: Yes, there are regulations and guidelines that you need to follow when establishing an agricultural animal facility in South Carolina. These include compliance with environmental regulations, waste management practices, and other relevant rules.

Q: Is DHEC Form 3580 only applicable to agricultural animal facilities in South Carolina?
A: Yes, DHEC Form 3580 is specific to agricultural animal facilities in South Carolina and may not be used for facilities in other states.

ADVERTISEMENT

Form Details:

  • Released on June 1, 2017;
  • The latest edition provided by the South Carolina Department of Health and Environmental Control;
  • Easy to use and ready to print;
  • Quick to customize;
  • Compatible with most PDF-viewing applications;
  • Fill out the form in our online filing application.

Download a fillable version of DHEC Form 3580 by clicking the link below or browse more documents and templates provided by the South Carolina Department of Health and Environmental Control.

Download DHEC Form 3580 Standard Application Form for New or Expanding Agricultural Animal Facilities (Other Than Swine) - South Carolina

4.4 of 5 (76 votes)
  • DHEC Form 3580 Standard Application Form for New or Expanding Agricultural Animal Facilities (Other Than Swine) - South Carolina

    1

  • DHEC Form 3580 Standard Application Form for New or Expanding Agricultural Animal Facilities (Other Than Swine) - South Carolina, Page 2

    2

  • DHEC Form 3580 Standard Application Form for New or Expanding Agricultural Animal Facilities (Other Than Swine) - South Carolina, Page 3

    3

  • DHEC Form 3580 Standard Application Form for New or Expanding Agricultural Animal Facilities (Other Than Swine) - South Carolina, Page 4

    4

  • DHEC Form 3580 Standard Application Form for New or Expanding Agricultural Animal Facilities (Other Than Swine) - South Carolina, Page 1
  • DHEC Form 3580 Standard Application Form for New or Expanding Agricultural Animal Facilities (Other Than Swine) - South Carolina, Page 2
  • DHEC Form 3580 Standard Application Form for New or Expanding Agricultural Animal Facilities (Other Than Swine) - South Carolina, Page 3
  • DHEC Form 3580 Standard Application Form for New or Expanding Agricultural Animal Facilities (Other Than Swine) - South Carolina, Page 4
Prev 1 2 3 4 Next
ADVERTISEMENT

Related Documents