Form 20109 Tceq Dry Cleaner Remediation Program Application for Ranking - Texas

Form 20109 Tceq Dry Cleaner Remediation Program Application for Ranking - Texas

What Is Form 20109?

This is a legal form that was released by the Texas Commission on Environmental Quality - a government authority operating within Texas. As of today, no separate filing guidelines for the form are provided by the issuing department.

FAQ

Q: What is Form 20109 TCEQ?
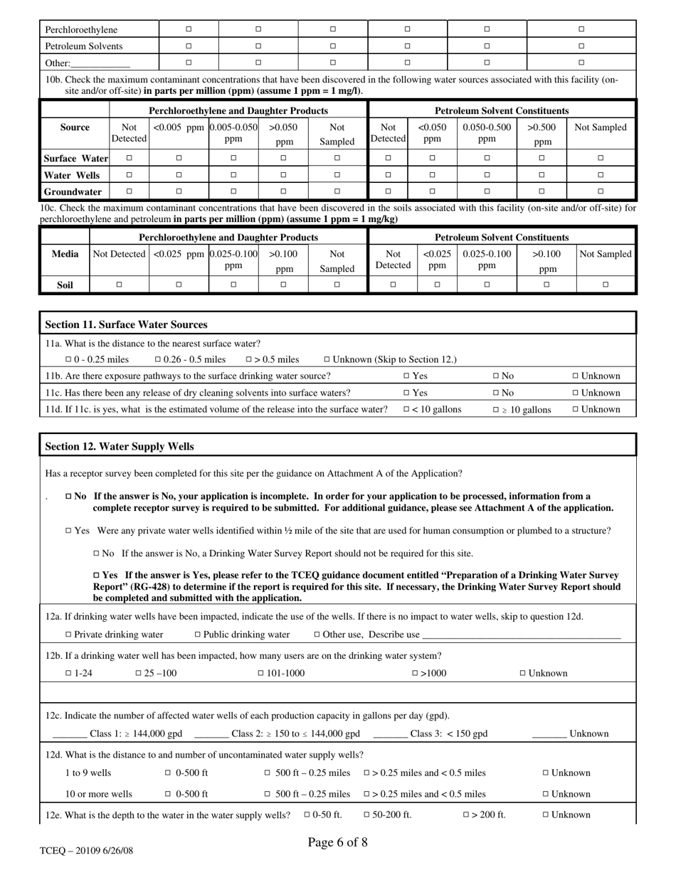
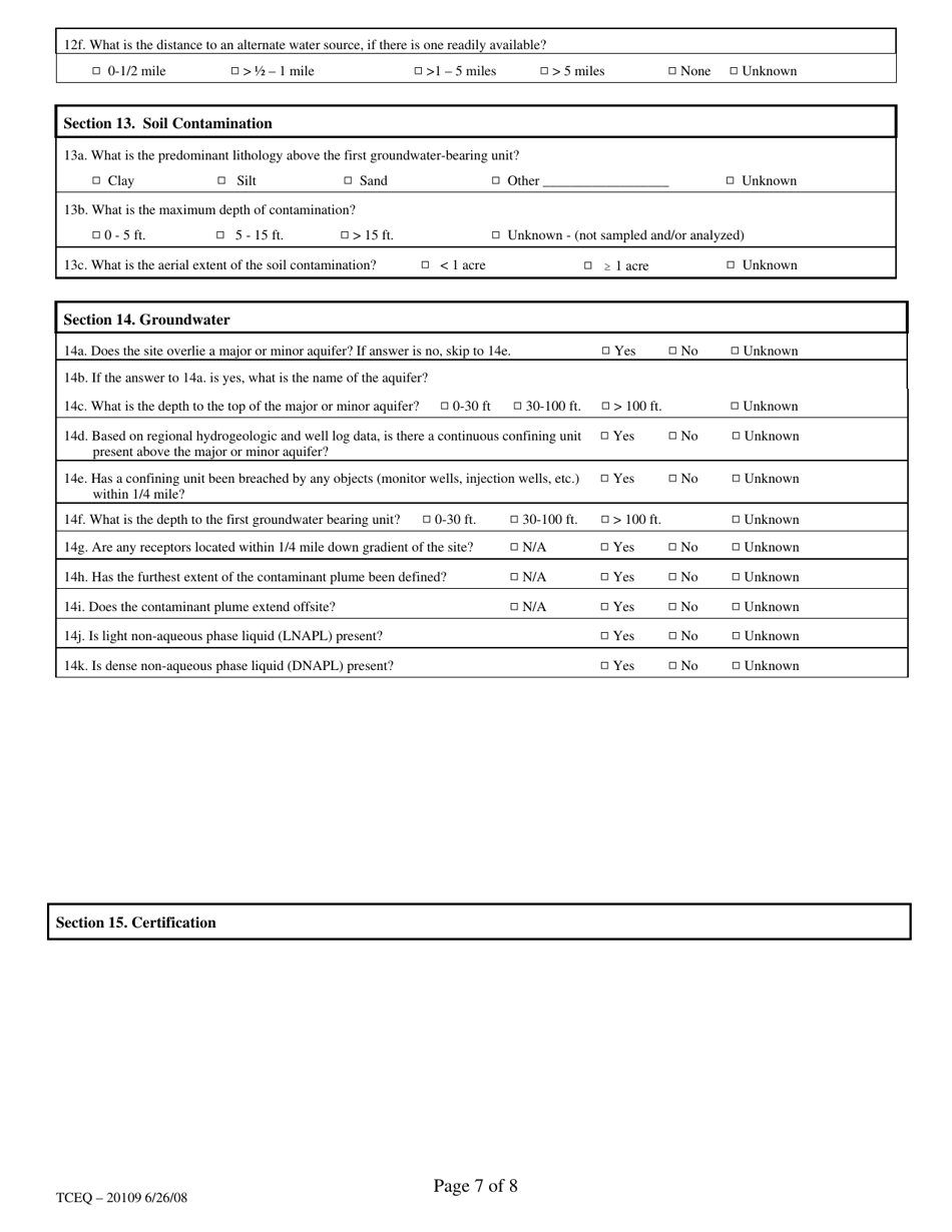
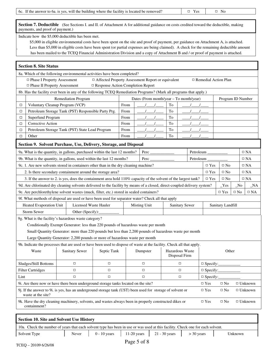
A: Form 20109 TCEQ is the application form for the Dry CleanerRemediation Program in Texas.

Q: What is the Dry Cleaner Remediation Program?
A: The Dry Cleaner Remediation Program is a program in Texas that provides financial assistance to eligible dry cleaning facility owners for environmental remediation.

Q: Who can apply for the Dry Cleaner Remediation Program?
A: Dry cleaning facility owners in Texas can apply for the program.

Q: What is the purpose of the application?
A: The application is used to rank and prioritize dry cleaner facilities for remediation funding.

Q: What information is required on the application?
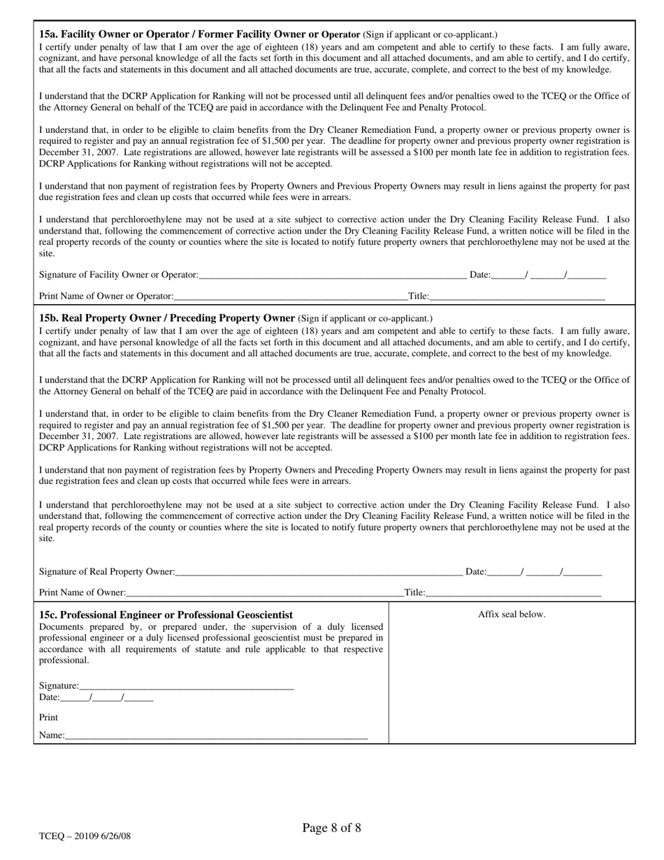
A: The application requires information about the facility owner, facility location, site conditions, and previous remediation efforts.

Q: Can I apply for the program if my dry cleaning facility is not in Texas?
A: No, the Dry Cleaner Remediation Program is specific to dry cleaning facilities in Texas only.

Q: What are the benefits of participating in the program?
A: Participating in the program allows dry cleaning facility owners to receive financial assistance for environmental remediation, reducing the burden of remediation costs.

Q: How long does it take to process the application?
A: The processing time for the application varies. You can contact the TCEQ for more information on the timeline.

ADVERTISEMENT

Form Details:

  • Released on June 26, 2008;
  • The latest edition provided by the Texas Commission on Environmental Quality;
  • Easy to use and ready to print;
  • Quick to customize;
  • Compatible with most PDF-viewing applications;
  • Fill out the form in our online filing application.

Download a printable version of Form 20109 by clicking the link below or browse more documents and templates provided by the Texas Commission on Environmental Quality.

Download Form 20109 Tceq Dry Cleaner Remediation Program Application for Ranking - Texas

4.8 of 5 (88 votes)
  • Form 20109 Tceq Dry Cleaner Remediation Program Application for Ranking - Texas

    1

  • Form 20109 Tceq Dry Cleaner Remediation Program Application for Ranking - Texas, Page 2

    2

  • Form 20109 Tceq Dry Cleaner Remediation Program Application for Ranking - Texas, Page 3

    3

  • Form 20109 Tceq Dry Cleaner Remediation Program Application for Ranking - Texas, Page 4

    4

  • Form 20109 Tceq Dry Cleaner Remediation Program Application for Ranking - Texas, Page 5

    5

  • Form 20109 Tceq Dry Cleaner Remediation Program Application for Ranking - Texas, Page 6

    6

  • Form 20109 Tceq Dry Cleaner Remediation Program Application for Ranking - Texas, Page 7

    7

  • Form 20109 Tceq Dry Cleaner Remediation Program Application for Ranking - Texas, Page 8

    8

  • Form 20109 Tceq Dry Cleaner Remediation Program Application for Ranking - Texas, Page 1
  • Form 20109 Tceq Dry Cleaner Remediation Program Application for Ranking - Texas, Page 2
  • Form 20109 Tceq Dry Cleaner Remediation Program Application for Ranking - Texas, Page 3
  • Form 20109 Tceq Dry Cleaner Remediation Program Application for Ranking - Texas, Page 4
  • Form 20109 Tceq Dry Cleaner Remediation Program Application for Ranking - Texas, Page 5
  • Form 20109 Tceq Dry Cleaner Remediation Program Application for Ranking - Texas, Page 6
  • Form 20109 Tceq Dry Cleaner Remediation Program Application for Ranking - Texas, Page 7
  • Form 20109 Tceq Dry Cleaner Remediation Program Application for Ranking - Texas, Page 8
Prev 1 2 3 4 5 ... 8 Next
ADVERTISEMENT

Related Documents