Form MO780-1949 Notification - Installation of New Underground Storage Tank System - Missouri

Notification Icon This version of the form is not currently in use and is provided for reference only. Download this version of Form MO780-1949 for the current year.

Form MO780-1949 Notification - Installation of New Underground Storage Tank System - Missouri

What Is Form MO780-1949?

This is a legal form that was released by the Missouri Department of Natural Resources - a government authority operating within Missouri. As of today, no separate filing guidelines for the form are provided by the issuing department.

FAQ

Q: What is Form MO780-1949?
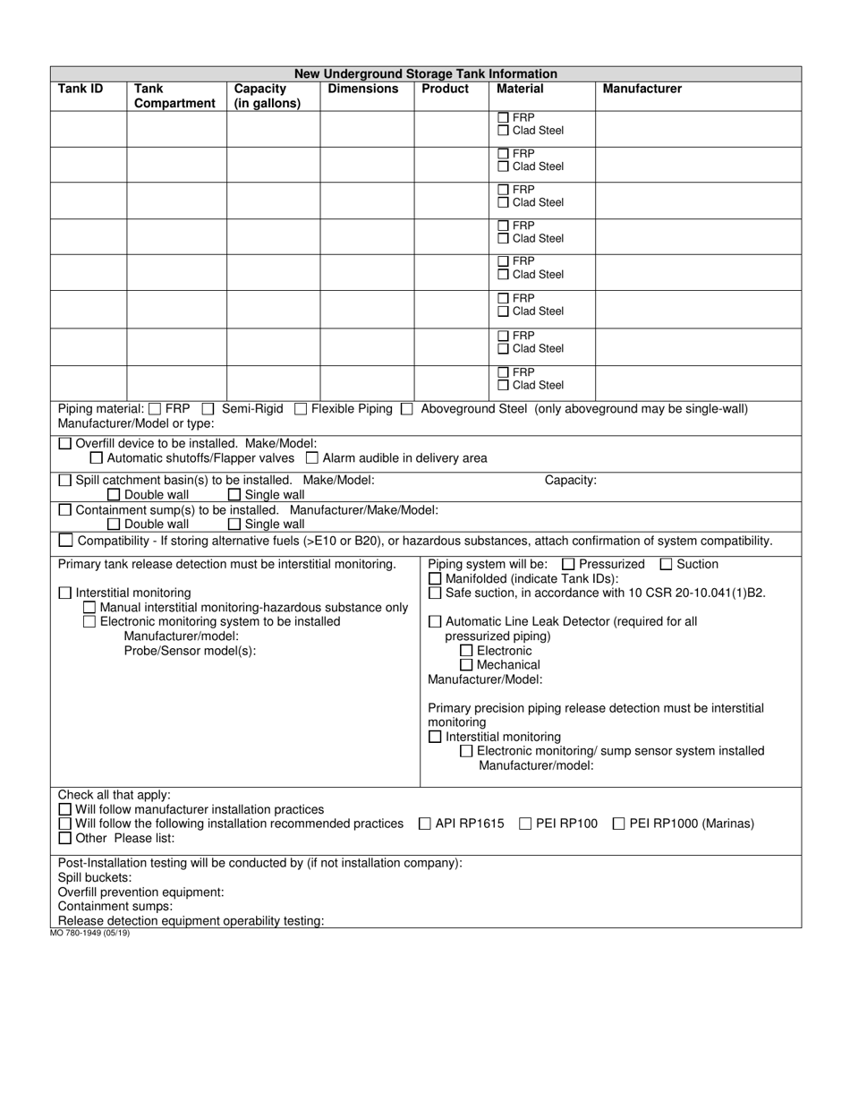
A: Form MO780-1949 is a notification form for the installation of a new underground storage tank system in Missouri.

Q: Who needs to fill out Form MO780-1949?
A: Any individual or business installing a new underground storagetank system in Missouri needs to fill out Form MO780-1949.

Q: What information is required on Form MO780-1949?
A: Form MO780-1949 requires information about the location of the tank system, the tank owner, the installer, and the contractor involved in the installation process.

ADVERTISEMENT

Form Details:

  • Released on May 1, 2019;
  • The latest edition provided by the Missouri Department of Natural Resources;
  • Easy to use and ready to print;
  • Quick to customize;
  • Compatible with most PDF-viewing applications;
  • Fill out the form in our online filing application.

Download a fillable version of Form MO780-1949 by clicking the link below or browse more documents and templates provided by the Missouri Department of Natural Resources.

Download Form MO780-1949 Notification - Installation of New Underground Storage Tank System - Missouri

4.3 of 5 (12 votes)
  • Form MO780-1949 Notification - Installation of New Underground Storage Tank System - Missouri

    1

  • Form MO780-1949 Notification - Installation of New Underground Storage Tank System - Missouri, Page 2

    2

  • Form MO780-1949 Notification - Installation of New Underground Storage Tank System - Missouri, Page 1
  • Form MO780-1949 Notification - Installation of New Underground Storage Tank System - Missouri, Page 2
Prev 1 2 Next
ADVERTISEMENT