Form L (MO780-1801) Application for Co-permittee Phase 2 Small Ms4 General Permit - Missouri

Notification Icon This version of the form is not currently in use and is provided for reference only. Download this version of Form L (MO780-1801) for the current year.

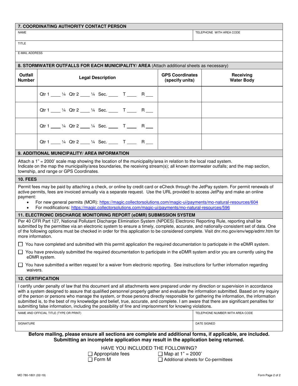
Form L (MO780-1801) Application for Co-permittee Phase 2 Small Ms4 General Permit - Missouri

What Is Form L (MO780-1801)?

This is a legal form that was released by the Missouri Department of Natural Resources - a government authority operating within Missouri. As of today, no separate filing guidelines for the form are provided by the issuing department.

FAQ

Q: What is Form L (MO780-1801)?
A: Form L (MO780-1801) is the application form for the Co-permittee Phase 2 Small Ms4 General Permit in Missouri.

Q: What does the Co-permittee Phase 2 Small Ms4 General Permit entail?
A: The Co-permittee Phase 2 Small Ms4 General Permit is a permit required for certain municipalities in Missouri to discharge stormwater into the state's waters.

Q: Who needs to complete Form L (MO780-1801)?
A: Municipalities in Missouri seeking to obtain the Co-permittee Phase 2 Small Ms4 General Permit need to complete Form L (MO780-1801).

ADVERTISEMENT

Form Details:

  • Released on February 1, 2019;
  • The latest edition provided by the Missouri Department of Natural Resources;
  • Easy to use and ready to print;
  • Quick to customize;
  • Compatible with most PDF-viewing applications;
  • Fill out the form in our online filing application.

Download a fillable version of Form L (MO780-1801) by clicking the link below or browse more documents and templates provided by the Missouri Department of Natural Resources.

Download Form L (MO780-1801) Application for Co-permittee Phase 2 Small Ms4 General Permit - Missouri

4.5 of 5 (22 votes)
  • Form L (MO780-1801) Application for Co-permittee Phase 2 Small Ms4 General Permit - Missouri

    1

  • Form L (MO780-1801) Application for Co-permittee Phase 2 Small Ms4 General Permit - Missouri, Page 2

    2

  • Form L (MO780-1801) Application for Co-permittee Phase 2 Small Ms4 General Permit - Missouri, Page 3

    3

  • Form L (MO780-1801) Application for Co-permittee Phase 2 Small Ms4 General Permit - Missouri, Page 4

    4

  • Form L (MO780-1801) Application for Co-permittee Phase 2 Small Ms4 General Permit - Missouri, Page 1
  • Form L (MO780-1801) Application for Co-permittee Phase 2 Small Ms4 General Permit - Missouri, Page 2
  • Form L (MO780-1801) Application for Co-permittee Phase 2 Small Ms4 General Permit - Missouri, Page 3
  • Form L (MO780-1801) Application for Co-permittee Phase 2 Small Ms4 General Permit - Missouri, Page 4
Prev 1 2 3 4 Next
ADVERTISEMENT

Related Documents