Form S (MO780-2900) Section 4 Sludge Hauling - Missouri

Form S (MO780-2900) Section 4 Sludge Hauling - Missouri

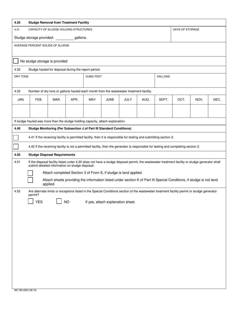
What Is Form S (MO780-2900) Section 4?

This is a legal form that was released by the Missouri Department of Natural Resources - a government authority operating within Missouri.The document is a supplement to Form S, Section 4 - Sludge Hauling. As of today, no separate filing guidelines for the form are provided by the issuing department.

FAQ

Q: What is Form S (MO780-2900)?
A: Form S (MO780-2900) is a document used in Missouri for reporting sludge hauling activities.

Q: What is Section 4 of Form S?
A: Section 4 of Form S is specifically about sludge hauling.

Q: What does sludge hauling refer to?
A: Sludge hauling refers to the transportation of sludge, which is a semi-solid waste material, typically from wastewater treatment plants.

Q: Why is sludge hauling important?
A: Sludge hauling is important to ensure the proper disposal or treatment of sludge in an environmentally responsible manner.

Q: Who is required to fill out Form S?
A: Entities involved in sludge hauling activities in Missouri are required to fill out Form S (MO780-2900).

ADVERTISEMENT

Form Details:

  • Released on August 1, 2019;
  • The latest edition provided by the Missouri Department of Natural Resources;
  • Easy to use and ready to print;
  • Quick to customize;
  • Compatible with most PDF-viewing applications;
  • Fill out the form in our online filing application.

Download a fillable version of Form S (MO780-2900) Section 4 by clicking the link below or browse more documents and templates provided by the Missouri Department of Natural Resources.

Download Form S (MO780-2900) Section 4 Sludge Hauling - Missouri

4.3 of 5 (23 votes)
  • Form S (MO780-2900) Section 4 Sludge Hauling - Missouri

    1

  • Form S (MO780-2900) Section 4 Sludge Hauling - Missouri, Page 2

    2

  • Form S (MO780-2900) Section 4 Sludge Hauling - Missouri, Page 1
  • Form S (MO780-2900) Section 4 Sludge Hauling - Missouri, Page 2
Prev 1 2 Next
ADVERTISEMENT