Form LW401JK Unpermitted Onsite Liquid Waste System Evaluation Report - New Mexico

Notification Icon This version of the form is not currently in use and is provided for reference only. Download this version of Form LW401JK for the current year.

Form LW401JK Unpermitted Onsite Liquid Waste System Evaluation Report - New Mexico

What Is Form LW401JK?

This is a legal form that was released by the New Mexico Environment Department - a government authority operating within New Mexico. As of today, no separate filing guidelines for the form are provided by the issuing department.

FAQ

Q: What is Form LW401JK?
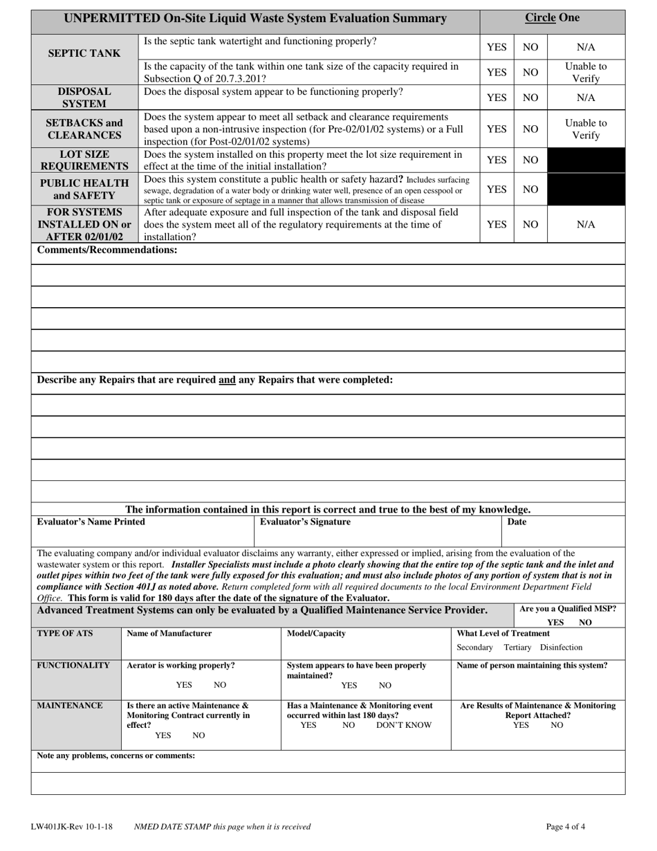
A: Form LW401JK is an Unpermitted Onsite Liquid Waste System Evaluation Report.

Q: What is the purpose of Form LW401JK?
A: The purpose of Form LW401JK is to evaluate unpermitted onsite liquid waste systems.

Q: What does the evaluation report assess?
A: The evaluation report assesses unpermitted onsite liquid waste systems.

Q: What is the aim of the evaluation?
A: The aim of the evaluation is to determine the condition and compliance of the liquid waste systems.

ADVERTISEMENT

Form Details:

  • Released on October 1, 2018;
  • The latest edition provided by the New Mexico Environment Department;
  • Easy to use and ready to print;
  • Quick to customize;
  • Compatible with most PDF-viewing applications;
  • Fill out the form in our online filing application.

Download a printable version of Form LW401JK by clicking the link below or browse more documents and templates provided by the New Mexico Environment Department.

Download Form LW401JK Unpermitted Onsite Liquid Waste System Evaluation Report - New Mexico

4.3 of 5 (21 votes)
  • Form LW401JK Unpermitted Onsite Liquid Waste System Evaluation Report - New Mexico

    1

  • Form LW401JK Unpermitted Onsite Liquid Waste System Evaluation Report - New Mexico, Page 2

    2

  • Form LW401JK Unpermitted Onsite Liquid Waste System Evaluation Report - New Mexico, Page 3

    3

  • Form LW401JK Unpermitted Onsite Liquid Waste System Evaluation Report - New Mexico, Page 4

    4

  • Form LW401JK Unpermitted Onsite Liquid Waste System Evaluation Report - New Mexico, Page 1
  • Form LW401JK Unpermitted Onsite Liquid Waste System Evaluation Report - New Mexico, Page 2
  • Form LW401JK Unpermitted Onsite Liquid Waste System Evaluation Report - New Mexico, Page 3
  • Form LW401JK Unpermitted Onsite Liquid Waste System Evaluation Report - New Mexico, Page 4
Prev 1 2 3 4 Next
ADVERTISEMENT