Form UST-22B Annual Leak Detection Equipment Operability Check (Interstitial Sensors) - North Carolina

Notification Icon This version of the form is not currently in use and is provided for reference only. Download this version of Form UST-22B for the current year.

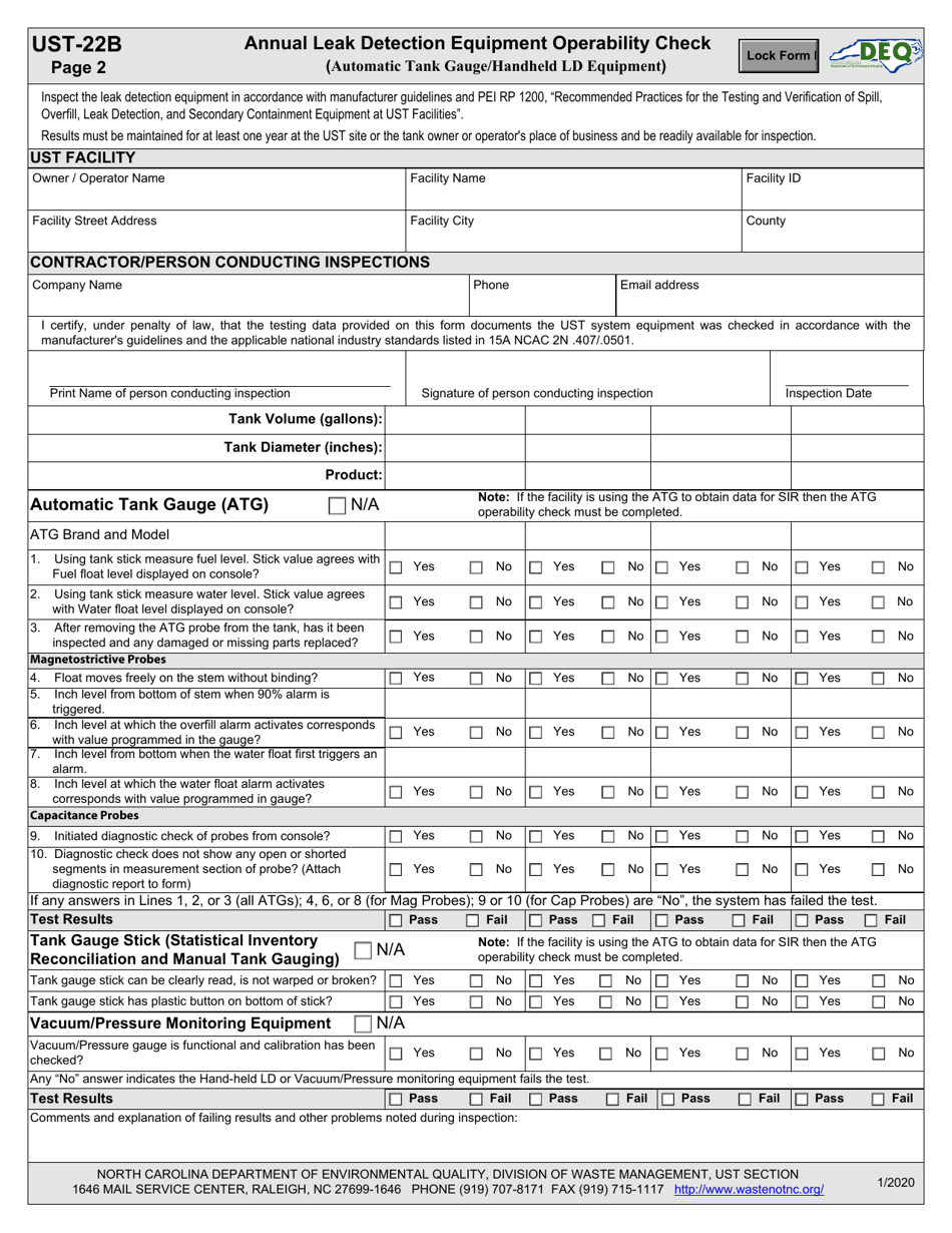
Form UST-22B Annual Leak Detection Equipment Operability Check (Interstitial Sensors) - North Carolina

What Is Form UST-22B?

This is a legal form that was released by the North Carolina Department of Environmental Quality - a government authority operating within North Carolina. As of today, no separate filing guidelines for the form are provided by the issuing department.

FAQ

Q: What is Form UST-22B?
A: Form UST-22B is an annual leak detection equipment operability check for interstitial sensors.

Q: What does the form apply to?
A: The form applies to underground storage tanks (USTs) in North Carolina.

Q: What is the purpose of the form?
A: The purpose of the form is to ensure the operability of interstitial sensors used for leak detection in USTs.

Q: Who is required to fill out this form?
A: Owners and operators of USTs in North Carolina are required to fill out this form.

Q: When should the form be submitted?
A: The form should be submitted annually, by the specified deadline.

Q: What information is required on the form?
A: The form requires information about the UST system, the interstitial sensor operability check, and the facility owner or operator.

ADVERTISEMENT

Form Details:

  • Released on January 1, 2020;
  • The latest edition provided by the North Carolina Department of Environmental Quality;
  • Easy to use and ready to print;
  • Quick to customize;
  • Compatible with most PDF-viewing applications;
  • Fill out the form in our online filing application.

Download a fillable version of Form UST-22B by clicking the link below or browse more documents and templates provided by the North Carolina Department of Environmental Quality.

Download Form UST-22B Annual Leak Detection Equipment Operability Check (Interstitial Sensors) - North Carolina

4.8 of 5 (20 votes)
  • Form UST-22B Annual Leak Detection Equipment Operability Check (Interstitial Sensors) - North Carolina

    1

  • Form UST-22B Annual Leak Detection Equipment Operability Check (Interstitial Sensors) - North Carolina, Page 2

    2

  • Form UST-22B Annual Leak Detection Equipment Operability Check (Interstitial Sensors) - North Carolina, Page 3

    3

  • Form UST-22B Annual Leak Detection Equipment Operability Check (Interstitial Sensors) - North Carolina, Page 4

    4

  • Form UST-22B Annual Leak Detection Equipment Operability Check (Interstitial Sensors) - North Carolina, Page 1
  • Form UST-22B Annual Leak Detection Equipment Operability Check (Interstitial Sensors) - North Carolina, Page 2
  • Form UST-22B Annual Leak Detection Equipment Operability Check (Interstitial Sensors) - North Carolina, Page 3
  • Form UST-22B Annual Leak Detection Equipment Operability Check (Interstitial Sensors) - North Carolina, Page 4
Prev 1 2 3 4 Next
ADVERTISEMENT