Form COM3620 (REPL-19-0041; 25) Qualification of Foreign Real Estate - Ohio

Form COM3620 (REPL-19-0041; 25) Qualification of Foreign Real Estate - Ohio

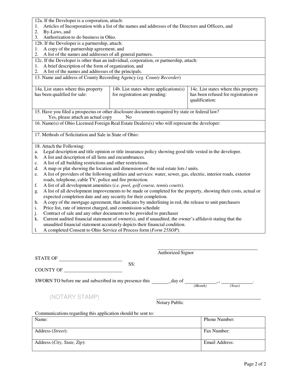
What Is Form COM3620 (REPL-19-0041; 25)?

This is a legal form that was released by the Ohio Department of Commerce - a government authority operating within Ohio. As of today, no separate filing guidelines for the form are provided by the issuing department.

FAQ

Q: What is Form COM3620?
A: Form COM3620 is a document used for the qualification of foreign real estate in Ohio.

Q: What is the purpose of Form COM3620?
A: The purpose of Form COM3620 is to qualify foreign real estate in the state of Ohio.

Q: What is REPL-19-0041; 25?
A: REPL-19-0041; 25 is the reference number or identification code associated with the form.

Q: Who needs to fill out Form COM3620?
A: Anyone who owns or intends to own foreign real estate and wants to qualify it in Ohio needs to fill out Form COM3620.

Q: Can Form COM3620 be used for qualification of real estate in other states?
A: No, Form COM3620 is specific to the qualification of foreign real estate in Ohio and cannot be used for other states.

ADVERTISEMENT

Form Details:

  • Released on October 1, 2019;
  • The latest edition provided by the Ohio Department of Commerce;
  • Easy to use and ready to print;
  • Quick to customize;
  • Compatible with most PDF-viewing applications;
  • Fill out the form in our online filing application.

Download a fillable version of Form COM3620 (REPL-19-0041; 25) by clicking the link below or browse more documents and templates provided by the Ohio Department of Commerce.

Download Form COM3620 (REPL-19-0041; 25) Qualification of Foreign Real Estate - Ohio

4.5 of 5 (13 votes)
  • Form COM3620 (REPL-19-0041; 25) Qualification of Foreign Real Estate - Ohio

    1

  • Form COM3620 (REPL-19-0041; 25) Qualification of Foreign Real Estate - Ohio, Page 2

    2

  • Form COM3620 (REPL-19-0041; 25) Qualification of Foreign Real Estate - Ohio, Page 1
  • Form COM3620 (REPL-19-0041; 25) Qualification of Foreign Real Estate - Ohio, Page 2
Prev 1 2 Next
ADVERTISEMENT

Related Documents