ADEM Form 8700-12 Notification of Regulated Waste Activity - Alabama

Notification Icon This version of the form is not currently in use and is provided for reference only. Download this version of ADEM Form 8700-12 for the current year.

ADEM Form 8700-12 Notification of Regulated Waste Activity - Alabama

What Is ADEM Form 8700-12?

This is a legal form that was released by the Alabama Department of Environmental Management - a government authority operating within Alabama. As of today, no separate filing guidelines for the form are provided by the issuing department.

FAQ

Q: What is ADEM Form 8700-12?
A: ADEM Form 8700-12 is the Notification of Regulated Waste Activity form.

Q: Who needs to file ADEM Form 8700-12?
A: Anyone in Alabama who generates, transports, treats, stores, or disposes of regulated waste needs to file this form.

Q: What is regulated waste?
A: Regulated waste refers to hazardous waste, medical waste, universal waste, or other types of waste that must be managed according to environmental regulations.

Q: Why is it important to file ADEM Form 8700-12?
A: Filing this form is important to comply with state and federal regulations, ensure proper waste management, and protect human health and the environment.

Q: Are there any fees associated with filing ADEM Form 8700-12?
A: Yes, there may be fees associated with filing this form. The fee amount depends on the type and quantity of regulated waste being managed.

Q: When should I submit ADEM Form 8700-12?
A: You should submit this form at least 30 days prior to commencing any regulated waste activity.

Q: What are the consequences of not filing ADEM Form 8700-12?
A: Failure to file this form can result in penalties, fines, or legal actions by the regulatory authorities.

Q: Can I submit ADEM Form 8700-12 electronically?
A: Yes, you can submit this form electronically through the ADEM e-Permitting system.

Q: Who should I contact for more information about ADEM Form 8700-12?
A: You can contact the Alabama Department of Environmental Management (ADEM) directly for more information about this form.

ADVERTISEMENT

Form Details:

  • Released on August 1, 2019;
  • The latest edition provided by the Alabama Department of Environmental Management;
  • Easy to use and ready to print;
  • Quick to customize;
  • Compatible with most PDF-viewing applications;
  • Fill out the form in our online filing application.

Download a fillable version of ADEM Form 8700-12 by clicking the link below or browse more documents and templates provided by the Alabama Department of Environmental Management.

Download ADEM Form 8700-12 Notification of Regulated Waste Activity - Alabama

4.8 of 5 (21 votes)
  • ADEM Form 8700-12 Notification of Regulated Waste Activity - Alabama

    1

  • ADEM Form 8700-12 Notification of Regulated Waste Activity - Alabama, Page 2

    2

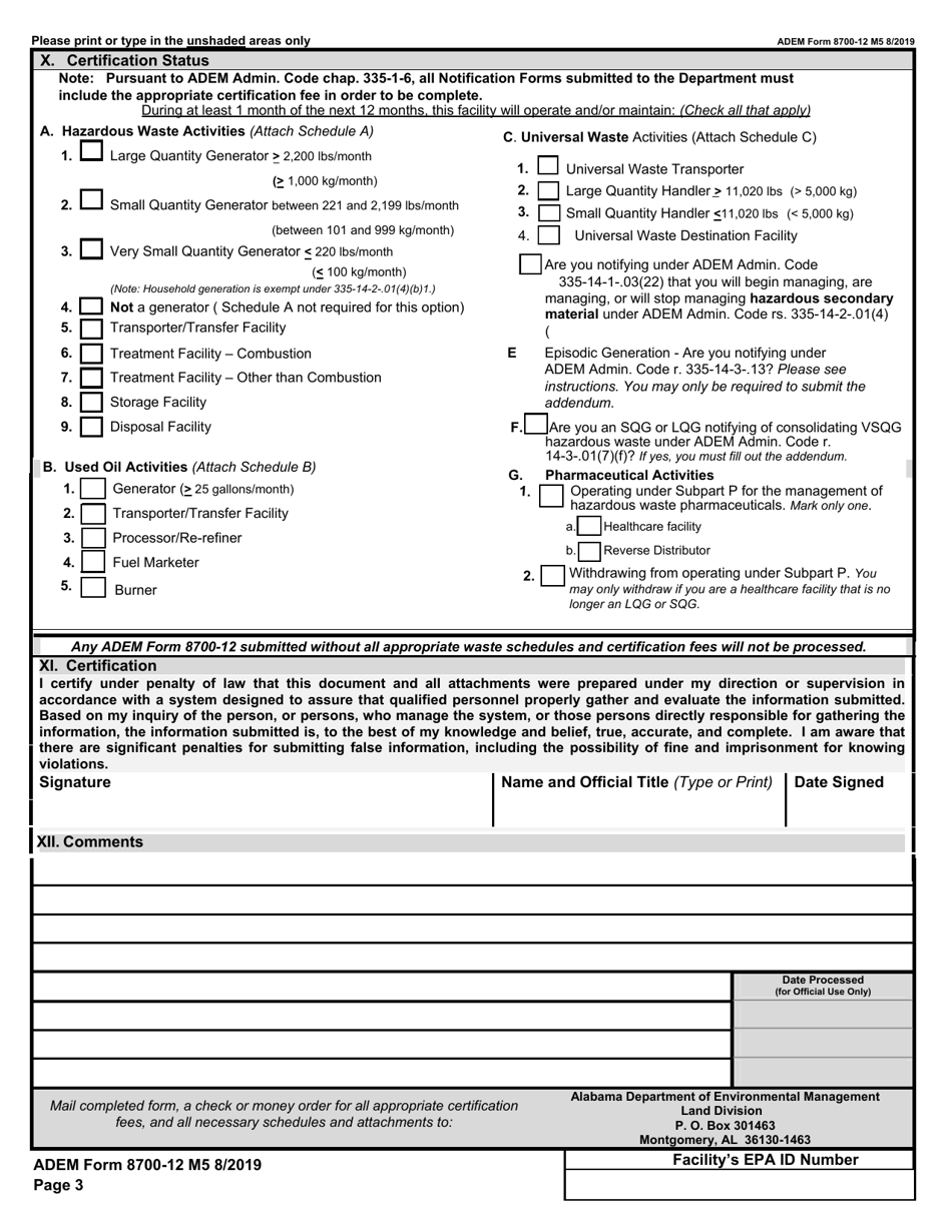
  • ADEM Form 8700-12 Notification of Regulated Waste Activity - Alabama, Page 3

    3

  • ADEM Form 8700-12 Notification of Regulated Waste Activity - Alabama, Page 4

    4

  • ADEM Form 8700-12 Notification of Regulated Waste Activity - Alabama, Page 5

    5

  • ADEM Form 8700-12 Notification of Regulated Waste Activity - Alabama, Page 6

    6

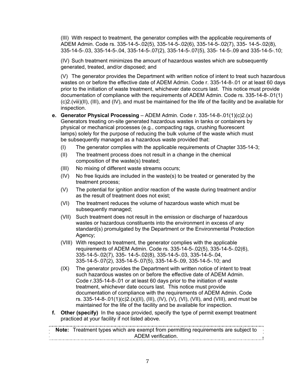
  • ADEM Form 8700-12 Notification of Regulated Waste Activity - Alabama, Page 7

    7

  • ADEM Form 8700-12 Notification of Regulated Waste Activity - Alabama, Page 8

    8

  • ADEM Form 8700-12 Notification of Regulated Waste Activity - Alabama, Page 9

    9

  • ADEM Form 8700-12 Notification of Regulated Waste Activity - Alabama, Page 10

    10

  • ADEM Form 8700-12 Notification of Regulated Waste Activity - Alabama, Page 11

    11

  • ADEM Form 8700-12 Notification of Regulated Waste Activity - Alabama, Page 12

    12

  • ADEM Form 8700-12 Notification of Regulated Waste Activity - Alabama, Page 13

    13

  • ADEM Form 8700-12 Notification of Regulated Waste Activity - Alabama, Page 14

    14

  • ADEM Form 8700-12 Notification of Regulated Waste Activity - Alabama, Page 15

    15

  • ADEM Form 8700-12 Notification of Regulated Waste Activity - Alabama, Page 16

    16

  • ADEM Form 8700-12 Notification of Regulated Waste Activity - Alabama, Page 17

    17

  • ADEM Form 8700-12 Notification of Regulated Waste Activity - Alabama, Page 18

    18

  • ADEM Form 8700-12 Notification of Regulated Waste Activity - Alabama, Page 19

    19

  • ADEM Form 8700-12 Notification of Regulated Waste Activity - Alabama, Page 20

    20

  • ADEM Form 8700-12 Notification of Regulated Waste Activity - Alabama, Page 21

    21

  • ADEM Form 8700-12 Notification of Regulated Waste Activity - Alabama, Page 22

    22

  • ADEM Form 8700-12 Notification of Regulated Waste Activity - Alabama, Page 23

    23

  • ADEM Form 8700-12 Notification of Regulated Waste Activity - Alabama, Page 24

    24

  • ADEM Form 8700-12 Notification of Regulated Waste Activity - Alabama, Page 25

    25

  • ADEM Form 8700-12 Notification of Regulated Waste Activity - Alabama, Page 26

    26

  • ADEM Form 8700-12 Notification of Regulated Waste Activity - Alabama, Page 27

    27

  • ADEM Form 8700-12 Notification of Regulated Waste Activity - Alabama, Page 28

    28

  • ADEM Form 8700-12 Notification of Regulated Waste Activity - Alabama, Page 29

    29

  • ADEM Form 8700-12 Notification of Regulated Waste Activity - Alabama, Page 30

    30

  • ADEM Form 8700-12 Notification of Regulated Waste Activity - Alabama, Page 1
  • ADEM Form 8700-12 Notification of Regulated Waste Activity - Alabama, Page 2
  • ADEM Form 8700-12 Notification of Regulated Waste Activity - Alabama, Page 3
  • ADEM Form 8700-12 Notification of Regulated Waste Activity - Alabama, Page 4
  • ADEM Form 8700-12 Notification of Regulated Waste Activity - Alabama, Page 5
  • ADEM Form 8700-12 Notification of Regulated Waste Activity - Alabama, Page 6
  • ADEM Form 8700-12 Notification of Regulated Waste Activity - Alabama, Page 7
  • ADEM Form 8700-12 Notification of Regulated Waste Activity - Alabama, Page 8
  • ADEM Form 8700-12 Notification of Regulated Waste Activity - Alabama, Page 9
  • ADEM Form 8700-12 Notification of Regulated Waste Activity - Alabama, Page 10
  • ADEM Form 8700-12 Notification of Regulated Waste Activity - Alabama, Page 11
  • ADEM Form 8700-12 Notification of Regulated Waste Activity - Alabama, Page 12
  • ADEM Form 8700-12 Notification of Regulated Waste Activity - Alabama, Page 13
  • ADEM Form 8700-12 Notification of Regulated Waste Activity - Alabama, Page 14
  • ADEM Form 8700-12 Notification of Regulated Waste Activity - Alabama, Page 15
  • ADEM Form 8700-12 Notification of Regulated Waste Activity - Alabama, Page 16
  • ADEM Form 8700-12 Notification of Regulated Waste Activity - Alabama, Page 17
  • ADEM Form 8700-12 Notification of Regulated Waste Activity - Alabama, Page 18
  • ADEM Form 8700-12 Notification of Regulated Waste Activity - Alabama, Page 19
  • ADEM Form 8700-12 Notification of Regulated Waste Activity - Alabama, Page 20
  • ADEM Form 8700-12 Notification of Regulated Waste Activity - Alabama, Page 21
  • ADEM Form 8700-12 Notification of Regulated Waste Activity - Alabama, Page 22
  • ADEM Form 8700-12 Notification of Regulated Waste Activity - Alabama, Page 23
  • ADEM Form 8700-12 Notification of Regulated Waste Activity - Alabama, Page 24
  • ADEM Form 8700-12 Notification of Regulated Waste Activity - Alabama, Page 25
  • ADEM Form 8700-12 Notification of Regulated Waste Activity - Alabama, Page 26
  • ADEM Form 8700-12 Notification of Regulated Waste Activity - Alabama, Page 27
  • ADEM Form 8700-12 Notification of Regulated Waste Activity - Alabama, Page 28
  • ADEM Form 8700-12 Notification of Regulated Waste Activity - Alabama, Page 29
  • ADEM Form 8700-12 Notification of Regulated Waste Activity - Alabama, Page 30
Prev 1 2 3 4 5 ... 30 Next
ADVERTISEMENT

Related Documents