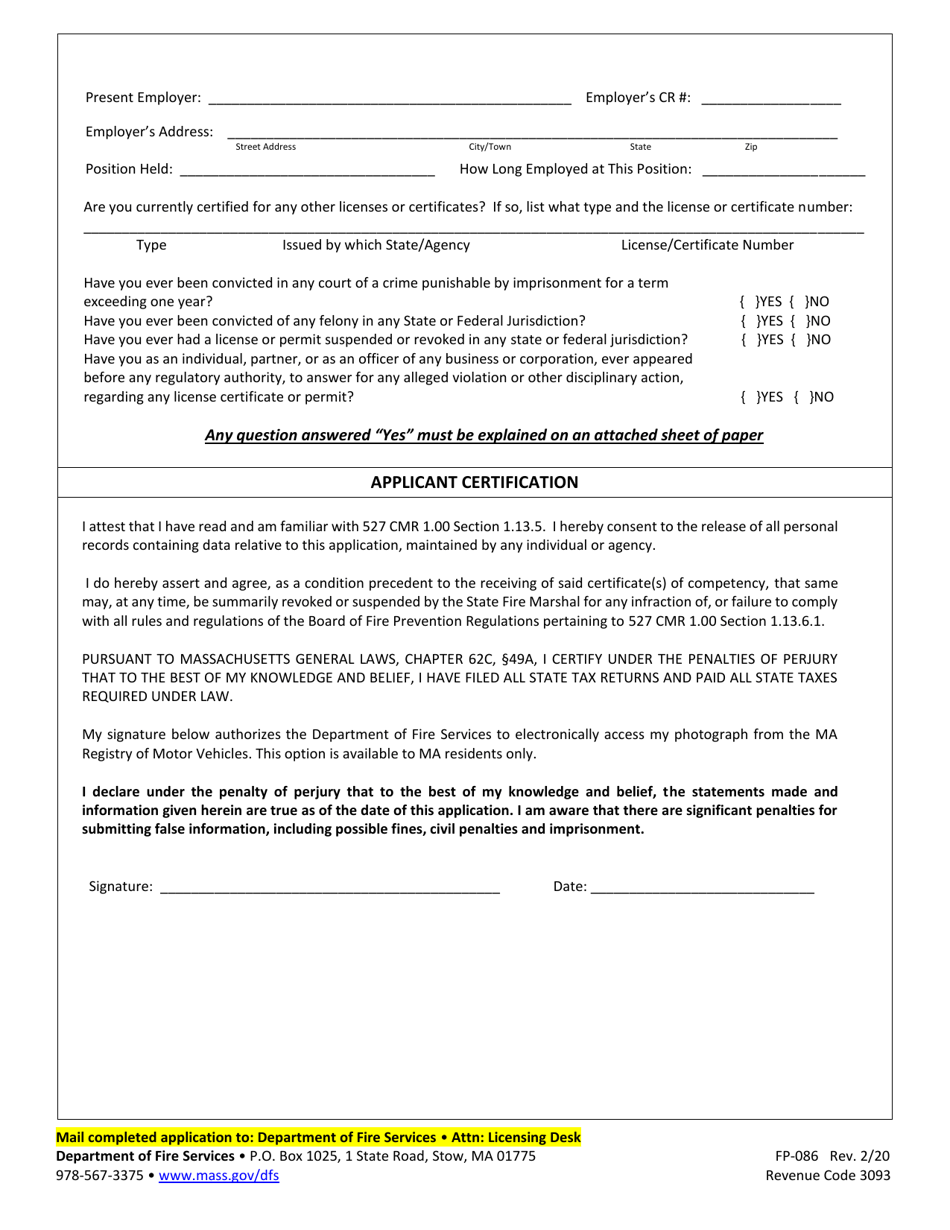
Form FP-086 Application for New Certificate of Competency for Servicing Portable Fire Extinguishers and / or Fixed Fire Extinguishing Systems - Massachusetts

Notification Icon This version of the form is not currently in use and is provided for reference only. Download this version of Form FP-086 for the current year.

Form FP-086 Application for New Certificate of Competency for Servicing Portable Fire Extinguishers and / or Fixed Fire Extinguishing Systems - Massachusetts

What Is Form FP-086?

This is a legal form that was released by the Massachusetts Department of Fire Services - a government authority operating within Massachusetts. As of today, no separate filing guidelines for the form are provided by the issuing department.

FAQ

Q: What is Form FP-086?
A: Form FP-086 is the Application for New Certificate of Competency for Servicing Portable Fire Extinguishers and/or Fixed Fire Extinguishing Systems in Massachusetts.

Q: Who needs to submit Form FP-086?
A: Anyone who wants to obtain a certificate of competency for servicing portable fire extinguishers and/or fixed fire extinguishing systems in Massachusetts needs to submit Form FP-086.

Q: What is the purpose of Form FP-086?
A: The purpose of Form FP-086 is to apply for a certificate of competency to service fire extinguishers and/or fire extinguishing systems in Massachusetts.

Q: Are there any prerequisites for submitting Form FP-086?
A: Yes, there are prerequisites for submitting Form FP-086. These prerequisites include completing a recognized training program and passing the required exams.

Q: How long does it take to process Form FP-086?
A: The processing time for Form FP-086 varies. It is recommended to submit the application well in advance to allow for processing time.

Q: Can I apply for a certificate of competency for both portable fire extinguishers and fixed fire extinguishing systems with Form FP-086?
A: Yes, you can apply for a certificate of competency for both portable fire extinguishers and fixed fire extinguishing systems with Form FP-086. Just indicate your preference on the form.

Q: Can I renew my certificate of competency with Form FP-086?
A: No, Form FP-086 is specifically for new applications. For certificate renewal, you need to use a different form.

Q: Who should I contact for more information about Form FP-086?
A: For more information about Form FP-086, you should contact the Massachusetts Department of Fire Services.

ADVERTISEMENT

Form Details:

  • Released on February 1, 2020;
  • The latest edition provided by the Massachusetts Department of Fire Services;
  • Easy to use and ready to print;
  • Quick to customize;
  • Compatible with most PDF-viewing applications;
  • Fill out the form in our online filing application.

Download a printable version of Form FP-086 by clicking the link below or browse more documents and templates provided by the Massachusetts Department of Fire Services.

Download Form FP-086 Application for New Certificate of Competency for Servicing Portable Fire Extinguishers and / or Fixed Fire Extinguishing Systems - Massachusetts

4.7 of 5 (12 votes)
  • Form FP-086 Application for New Certificate of Competency for Servicing Portable Fire Extinguishers and/or Fixed Fire Extinguishing Systems - Massachusetts

    1

  • Form FP-086 Application for New Certificate of Competency for Servicing Portable Fire Extinguishers and/or Fixed Fire Extinguishing Systems - Massachusetts, Page 2

    2

  • Form FP-086 Application for New Certificate of Competency for Servicing Portable Fire Extinguishers and / or Fixed Fire Extinguishing Systems - Massachusetts, Page 1
  • Form FP-086 Application for New Certificate of Competency for Servicing Portable Fire Extinguishers and / or Fixed Fire Extinguishing Systems - Massachusetts, Page 2
Prev 1 2 Next
ADVERTISEMENT