Form HCD OL12 Part A Application for Mh-Unit / Commercial Modular Manufacturers, Distributors and Dealers - California

Notification Icon This version of the form is not currently in use and is provided for reference only. Download this version of Form HCD OL12 Part A for the current year.

Form HCD OL12 Part A Application for Mh-Unit / Commercial Modular Manufacturers, Distributors and Dealers - California

What Is Form HCD OL12 Part A?

This is a legal form that was released by the California Department of Housing & Community Development - a government authority operating within California.The document is a supplement to Form HCD OL12, Application for Mh-Unit/Commercial Modular Manufacturers, Distributors and Dealers (Part a). As of today, no separate filing guidelines for the form are provided by the issuing department.

FAQ

Q: What is Form HCD OL12?
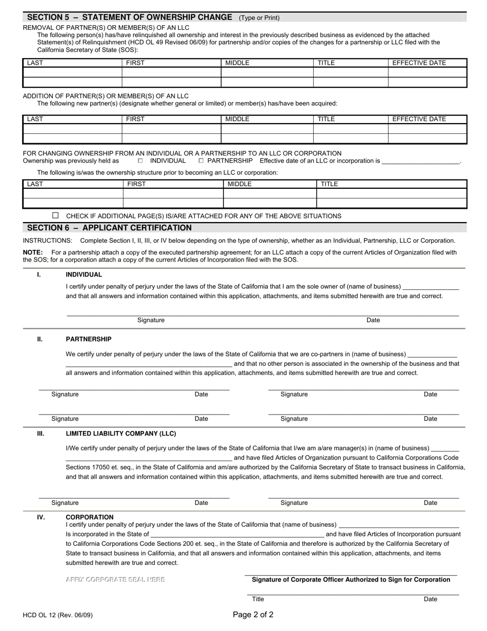
A: Form HCD OL12 is an application for MH-Unit/Commercial Modular Manufacturers, Distributors, and Dealers in California.

Q: Who can use Form HCD OL12?
A: MH-Unit/Commercial Modular Manufacturers, Distributors, and Dealers in California can use Form HCD OL12.

Q: What is the purpose of Form HCD OL12?
A: The purpose of Form HCD OL12 is to apply for registration as a MH-Unit/Commercial Modular Manufacturer, Distributor, or Dealer in California.

ADVERTISEMENT

Form Details:

  • Released on June 1, 2009;
  • The latest edition provided by the California Department of Housing & Community Development;
  • Easy to use and ready to print;
  • Quick to customize;
  • Compatible with most PDF-viewing applications;
  • Fill out the form in our online filing application.

Download a fillable version of Form HCD OL12 Part A by clicking the link below or browse more documents and templates provided by the California Department of Housing & Community Development.

Download Form HCD OL12 Part A Application for Mh-Unit / Commercial Modular Manufacturers, Distributors and Dealers - California

4.3 of 5 (13 votes)
  • Form HCD OL12 Part A Application for Mh-Unit/Commercial Modular Manufacturers, Distributors and Dealers - California

    1

  • Form HCD OL12 Part A Application for Mh-Unit/Commercial Modular Manufacturers, Distributors and Dealers - California, Page 2

    2

  • Form HCD OL12 Part A Application for Mh-Unit / Commercial Modular Manufacturers, Distributors and Dealers - California, Page 1
  • Form HCD OL12 Part A Application for Mh-Unit / Commercial Modular Manufacturers, Distributors and Dealers - California, Page 2
Prev 1 2 Next
ADVERTISEMENT

Related Documents