Form DBPR BCAIB1 Application for Initial Certification by Examination or Endorsement - Inspectors and Plans Examiners - Florida

Notification Icon This version of the form is not currently in use and is provided for reference only. Download this version of Form DBPR BCAIB1 for the current year.

Form DBPR BCAIB1 Application for Initial Certification by Examination or Endorsement - Inspectors and Plans Examiners - Florida

What Is Form DBPR BCAIB1?

This is a legal form that was released by the Florida Department of Business & Professional Regulation - a government authority operating within Florida. As of today, no separate filing guidelines for the form are provided by the issuing department.

FAQ

Q: What is the purpose of the DBPR BCAIB1 Application?
A: To apply for initial certification as an inspector or plans examiner in Florida.

Q: Who can use the DBPR BCAIB1 Application?
A: Individuals who are seeking certification as inspectors or plans examiners in Florida.

Q: What are the different ways to apply for certification?
A: You can apply for certification by examination or endorsement.

Q: What is certification by examination?
A: Certification by examination is for individuals who have completed the required training and passed the necessary exams.

Q: What is certification by endorsement?
A: Certification by endorsement is for individuals who are already certified in another state and want to be certified in Florida.

Q: What documents are required for the application?
A: You will need to provide documentation of your education, training, and experience.

Q: How much does the application cost?
A: The application fee is $100.

Q: How long does it take to process the application?
A: Processing times vary, but you will be notified of the decision within 30 days.

Q: Is there an exam requirement for certification?
A: Yes, you must pass the required exams for the certification you are applying for.

Q: Can I apply for certification if I have a criminal record?
A: Yes, but your application may be subject to additional review.

Q: Can I appeal if my application is denied?
A: Yes, you have the right to appeal the decision.

ADVERTISEMENT

Form Details:

  • Released on July 1, 2020;
  • The latest edition provided by the Florida Department of Business & Professional Regulation;
  • Easy to use and ready to print;
  • Quick to customize;
  • Compatible with most PDF-viewing applications;
  • Fill out the form in our online filing application.

Download a printable version of Form DBPR BCAIB1 by clicking the link below or browse more documents and templates provided by the Florida Department of Business & Professional Regulation.

Download Form DBPR BCAIB1 Application for Initial Certification by Examination or Endorsement - Inspectors and Plans Examiners - Florida

4.7 of 5 (12 votes)
  • Form DBPR BCAIB1 Application for Initial Certification by Examination or Endorsement - Inspectors and Plans Examiners - Florida

    1

  • Form DBPR BCAIB1 Application for Initial Certification by Examination or Endorsement - Inspectors and Plans Examiners - Florida, Page 2

    2

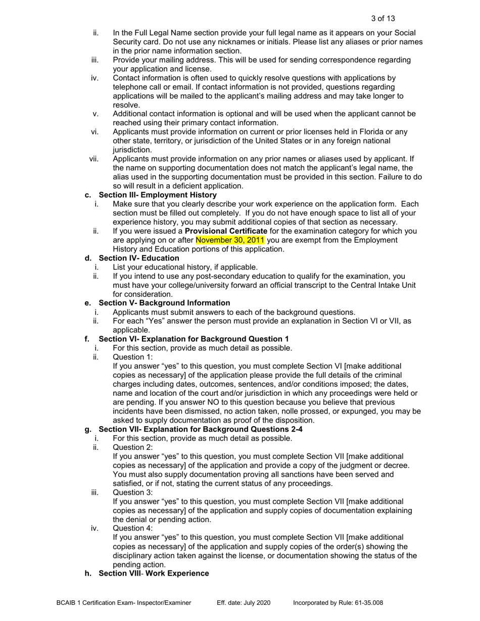
  • Form DBPR BCAIB1 Application for Initial Certification by Examination or Endorsement - Inspectors and Plans Examiners - Florida, Page 3

    3

  • Form DBPR BCAIB1 Application for Initial Certification by Examination or Endorsement - Inspectors and Plans Examiners - Florida, Page 4

    4

  • Form DBPR BCAIB1 Application for Initial Certification by Examination or Endorsement - Inspectors and Plans Examiners - Florida, Page 5

    5

  • Form DBPR BCAIB1 Application for Initial Certification by Examination or Endorsement - Inspectors and Plans Examiners - Florida, Page 6

    6

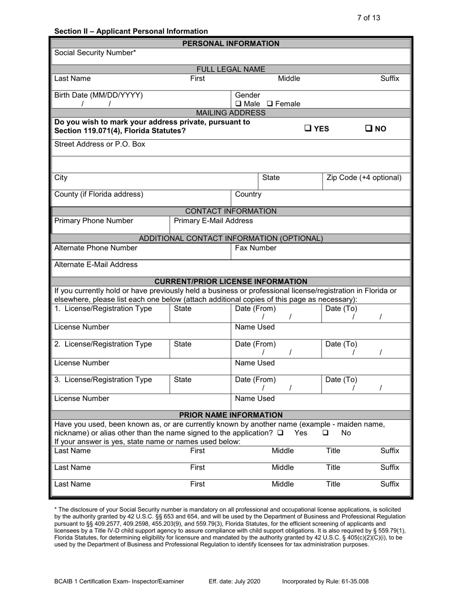
  • Form DBPR BCAIB1 Application for Initial Certification by Examination or Endorsement - Inspectors and Plans Examiners - Florida, Page 7

    7

  • Form DBPR BCAIB1 Application for Initial Certification by Examination or Endorsement - Inspectors and Plans Examiners - Florida, Page 8

    8

  • Form DBPR BCAIB1 Application for Initial Certification by Examination or Endorsement - Inspectors and Plans Examiners - Florida, Page 9

    9

  • Form DBPR BCAIB1 Application for Initial Certification by Examination or Endorsement - Inspectors and Plans Examiners - Florida, Page 10

    10

  • Form DBPR BCAIB1 Application for Initial Certification by Examination or Endorsement - Inspectors and Plans Examiners - Florida, Page 11

    11

  • Form DBPR BCAIB1 Application for Initial Certification by Examination or Endorsement - Inspectors and Plans Examiners - Florida, Page 12

    12

  • Form DBPR BCAIB1 Application for Initial Certification by Examination or Endorsement - Inspectors and Plans Examiners - Florida, Page 13

    13

  • Form DBPR BCAIB1 Application for Initial Certification by Examination or Endorsement - Inspectors and Plans Examiners - Florida, Page 1
  • Form DBPR BCAIB1 Application for Initial Certification by Examination or Endorsement - Inspectors and Plans Examiners - Florida, Page 2
  • Form DBPR BCAIB1 Application for Initial Certification by Examination or Endorsement - Inspectors and Plans Examiners - Florida, Page 3
  • Form DBPR BCAIB1 Application for Initial Certification by Examination or Endorsement - Inspectors and Plans Examiners - Florida, Page 4
  • Form DBPR BCAIB1 Application for Initial Certification by Examination or Endorsement - Inspectors and Plans Examiners - Florida, Page 5
  • Form DBPR BCAIB1 Application for Initial Certification by Examination or Endorsement - Inspectors and Plans Examiners - Florida, Page 6
  • Form DBPR BCAIB1 Application for Initial Certification by Examination or Endorsement - Inspectors and Plans Examiners - Florida, Page 7
  • Form DBPR BCAIB1 Application for Initial Certification by Examination or Endorsement - Inspectors and Plans Examiners - Florida, Page 8
  • Form DBPR BCAIB1 Application for Initial Certification by Examination or Endorsement - Inspectors and Plans Examiners - Florida, Page 9
  • Form DBPR BCAIB1 Application for Initial Certification by Examination or Endorsement - Inspectors and Plans Examiners - Florida, Page 10
  • Form DBPR BCAIB1 Application for Initial Certification by Examination or Endorsement - Inspectors and Plans Examiners - Florida, Page 11
  • Form DBPR BCAIB1 Application for Initial Certification by Examination or Endorsement - Inspectors and Plans Examiners - Florida, Page 12
  • Form DBPR BCAIB1 Application for Initial Certification by Examination or Endorsement - Inspectors and Plans Examiners - Florida, Page 13
Prev 1 2 3 4 5 ... 13 Next
ADVERTISEMENT