Form DBPR LA8 Application for Qualification of a Business Entity - Florida

Notification Icon This version of the form is not currently in use and is provided for reference only. Download this version of Form DBPR LA8 for the current year.

Form DBPR LA8 Application for Qualification of a Business Entity - Florida

What Is Form DBPR LA8?

This is a legal form that was released by the Florida Department of Business & Professional Regulation - a government authority operating within Florida. As of today, no separate filing guidelines for the form are provided by the issuing department.

FAQ

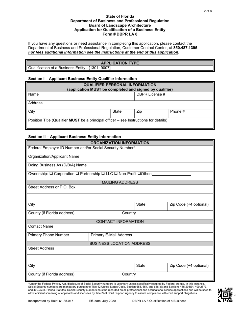
Q: What is the DBPR LA8 Application?
A: The DBPR LA8 Application is the application form used to apply for qualification of a business entity in the state of Florida.

Q: What is the purpose of the DBPR LA8 Application?
A: The purpose of the DBPR LA8 Application is to establish and qualify a business entity to operate legally in the state of Florida.

Q: Who needs to fill out the DBPR LA8 Application?
A: Any business entity that wishes to operate in the state of Florida needs to fill out the DBPR LA8 Application.

Q: What information is required in the DBPR LA8 Application?
A: The DBPR LA8 Application requires information such as the name of the business entity, contact information, ownership details, and other necessary information for qualification.

Q: Are there any fees associated with the DBPR LA8 Application?
A: Yes, there are fees associated with the DBPR LA8 Application. The fee amounts can vary depending on the type of business entity.

Q: How long does it take to process the DBPR LA8 Application?
A: The processing time for the DBPR LA8 Application can vary, but it is generally recommended to allow several weeks for processing.

Q: Are there any specific requirements for the DBPR LA8 Application?
A: Yes, there are specific requirements for the DBPR LA8 Application, such as providing accurate and complete information, complying with all applicable laws and regulations, and meeting any additional requirements specified by the DBPR.

Q: What should I do if I have questions about the DBPR LA8 Application?
A: If you have any questions about the DBPR LA8 Application, you can contact the Florida Department of Business and Professional Regulation for assistance.

ADVERTISEMENT

Form Details:

  • Released on July 1, 2020;
  • The latest edition provided by the Florida Department of Business & Professional Regulation;
  • Easy to use and ready to print;
  • Quick to customize;
  • Compatible with most PDF-viewing applications;
  • Fill out the form in our online filing application.

Download a printable version of Form DBPR LA8 by clicking the link below or browse more documents and templates provided by the Florida Department of Business & Professional Regulation.

Download Form DBPR LA8 Application for Qualification of a Business Entity - Florida

4.6 of 5 (20 votes)
  • Form DBPR LA8 Application for Qualification of a Business Entity - Florida

    1

  • Form DBPR LA8 Application for Qualification of a Business Entity - Florida, Page 2

    2

  • Form DBPR LA8 Application for Qualification of a Business Entity - Florida, Page 3

    3

  • Form DBPR LA8 Application for Qualification of a Business Entity - Florida, Page 4

    4

  • Form DBPR LA8 Application for Qualification of a Business Entity - Florida, Page 5

    5

  • Form DBPR LA8 Application for Qualification of a Business Entity - Florida, Page 6

    6

  • Form DBPR LA8 Application for Qualification of a Business Entity - Florida, Page 1
  • Form DBPR LA8 Application for Qualification of a Business Entity - Florida, Page 2
  • Form DBPR LA8 Application for Qualification of a Business Entity - Florida, Page 3
  • Form DBPR LA8 Application for Qualification of a Business Entity - Florida, Page 4
  • Form DBPR LA8 Application for Qualification of a Business Entity - Florida, Page 5
  • Form DBPR LA8 Application for Qualification of a Business Entity - Florida, Page 6
Prev 1 2 3 4 5 6 Next
ADVERTISEMENT

Related Documents