Form OSR-OR-1 Oilfield Site Restoration Program Contractor Application - Louisiana

Form OSR-OR-1 Oilfield Site Restoration Program Contractor Application - Louisiana

What Is Form OSR-OR-1?

This is a legal form that was released by the Louisiana Department of Natural Resources - a government authority operating within Louisiana. As of today, no separate filing guidelines for the form are provided by the issuing department.

FAQ

Q: What is the OSR-OR-1 Oilfield Site Restoration Program Contractor Application?
A: The OSR-OR-1 Oilfield Site Restoration Program Contractor Application is a form used in Louisiana for contractors to apply for the Oilfield Site Restoration Program.

Q: What is the purpose of the Oilfield Site Restoration Program?
A: The Oilfield Site Restoration Program aims to restore and remediate abandoned oilfield sites in Louisiana.

Q: Who can apply for the OSR-OR-1 Oilfield Site Restoration Program Contractor Application?
A: Contractors involved in oilfield site restoration in Louisiana can apply for the OSR-OR-1 form.

Q: What information should be provided in the OSR-OR-1 form?
A: The OSR-OR-1 form requires information such as contractor details, project information, site details, and cost estimates for restoration activities.

ADVERTISEMENT

Form Details:

  • The latest edition provided by the Louisiana Department of Natural Resources;
  • Easy to use and ready to print;
  • Quick to customize;
  • Compatible with most PDF-viewing applications;
  • Fill out the form in our online filing application.

Download a printable version of Form OSR-OR-1 by clicking the link below or browse more documents and templates provided by the Louisiana Department of Natural Resources.

Download Form OSR-OR-1 Oilfield Site Restoration Program Contractor Application - Louisiana

4.7 of 5 (18 votes)
  • Form OSR-OR-1 Oilfield Site Restoration Program Contractor Application - Louisiana

    1

  • Form OSR-OR-1 Oilfield Site Restoration Program Contractor Application - Louisiana, Page 2

    2

  • Form OSR-OR-1 Oilfield Site Restoration Program Contractor Application - Louisiana, Page 3

    3

  • Form OSR-OR-1 Oilfield Site Restoration Program Contractor Application - Louisiana, Page 4

    4

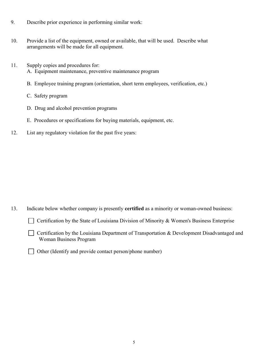
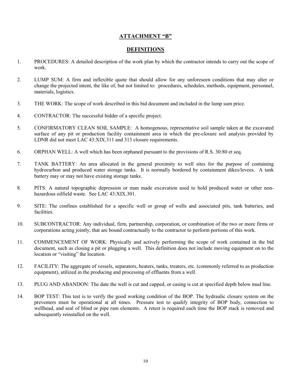
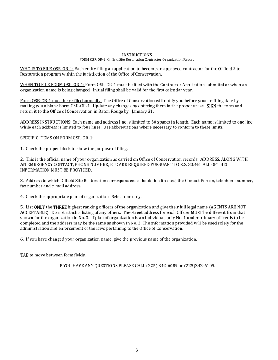
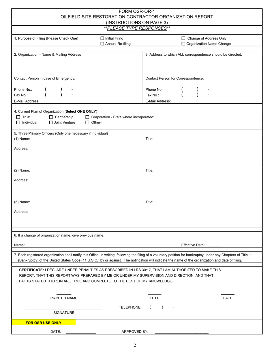
  • Form OSR-OR-1 Oilfield Site Restoration Program Contractor Application - Louisiana, Page 5

    5

  • Form OSR-OR-1 Oilfield Site Restoration Program Contractor Application - Louisiana, Page 6

    6

  • Form OSR-OR-1 Oilfield Site Restoration Program Contractor Application - Louisiana, Page 7

    7

  • Form OSR-OR-1 Oilfield Site Restoration Program Contractor Application - Louisiana, Page 8

    8

  • Form OSR-OR-1 Oilfield Site Restoration Program Contractor Application - Louisiana, Page 9

    9

  • Form OSR-OR-1 Oilfield Site Restoration Program Contractor Application - Louisiana, Page 10

    10

  • Form OSR-OR-1 Oilfield Site Restoration Program Contractor Application - Louisiana, Page 1
  • Form OSR-OR-1 Oilfield Site Restoration Program Contractor Application - Louisiana, Page 2
  • Form OSR-OR-1 Oilfield Site Restoration Program Contractor Application - Louisiana, Page 3
  • Form OSR-OR-1 Oilfield Site Restoration Program Contractor Application - Louisiana, Page 4
  • Form OSR-OR-1 Oilfield Site Restoration Program Contractor Application - Louisiana, Page 5
  • Form OSR-OR-1 Oilfield Site Restoration Program Contractor Application - Louisiana, Page 6
  • Form OSR-OR-1 Oilfield Site Restoration Program Contractor Application - Louisiana, Page 7
  • Form OSR-OR-1 Oilfield Site Restoration Program Contractor Application - Louisiana, Page 8
  • Form OSR-OR-1 Oilfield Site Restoration Program Contractor Application - Louisiana, Page 9
  • Form OSR-OR-1 Oilfield Site Restoration Program Contractor Application - Louisiana, Page 10
Prev 1 2 3 4 5 ... 10 Next
ADVERTISEMENT