Form UST-6 Application to Install or Replace Underground Storage Tank Systems (Pre / Post-installation) - North Carolina

Notification Icon This version of the form is not currently in use and is provided for reference only. Download this version of Form UST-6 for the current year.

Form UST-6 Application to Install or Replace Underground Storage Tank Systems (Pre / Post-installation) - North Carolina

What Is Form UST-6?

This is a legal form that was released by the North Carolina Department of Environmental Quality - a government authority operating within North Carolina. Check the official instructions before completing and submitting the form.

FAQ

Q: What is Form UST-6?
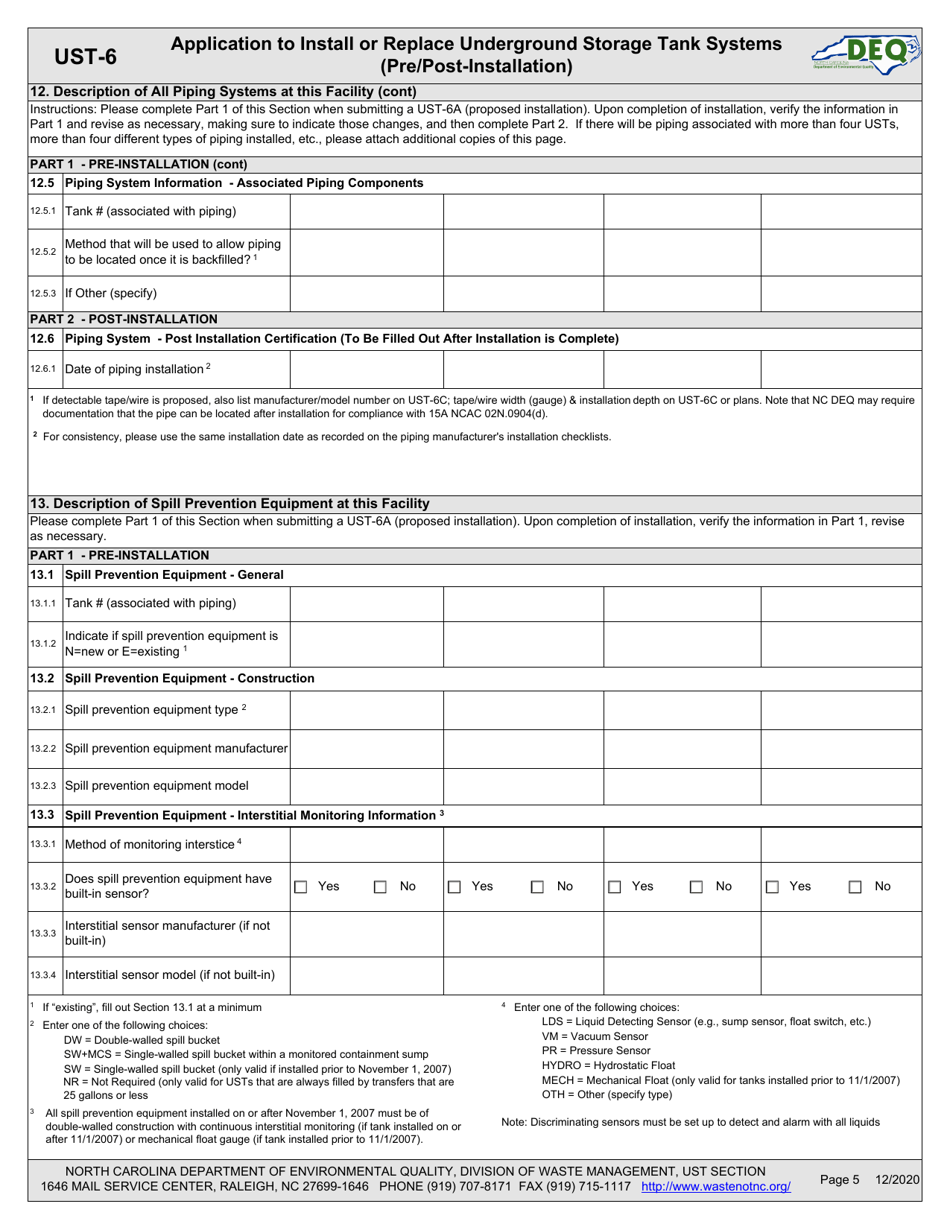
A: Form UST-6 is an application used in North Carolina to request permission to install or replace underground storage tank systems.

Q: Who needs to fill out Form UST-6?
A: Anyone who wants to install or replace underground storagetank systems in North Carolina needs to fill out Form UST-6.

Q: What information is required in Form UST-6?
A: Form UST-6 requires information such as the name and address of the tank owner, the location of the site, and specifications of the tank system being installed or replaced.

Q: Is there a fee for submitting Form UST-6?
A: Yes, there is a fee associated with submitting Form UST-6. The fee is determined by the capacity of the tank system being installed or replaced.

Q: What is the deadline for submitting Form UST-6?
A: The deadline for submitting Form UST-6 depends on the specific project. It is recommended to check with the North Carolina Department of Environmental Quality for specific deadlines.

ADVERTISEMENT

Form Details:

  • Released on December 1, 2020;
  • The latest edition provided by the North Carolina Department of Environmental Quality;
  • Easy to use and ready to print;
  • Quick to customize;
  • Compatible with most PDF-viewing applications;
  • Fill out the form in our online filing application.

Download a fillable version of Form UST-6 by clicking the link below or browse more documents and templates provided by the North Carolina Department of Environmental Quality.

Download Form UST-6 Application to Install or Replace Underground Storage Tank Systems (Pre / Post-installation) - North Carolina

4.7 of 5 (25 votes)
  • Form UST-6 Application to Install or Replace Underground Storage Tank Systems (Pre/Post-installation) - North Carolina

    1

  • Form UST-6 Application to Install or Replace Underground Storage Tank Systems (Pre/Post-installation) - North Carolina, Page 2

    2

  • Form UST-6 Application to Install or Replace Underground Storage Tank Systems (Pre/Post-installation) - North Carolina, Page 3

    3

  • Form UST-6 Application to Install or Replace Underground Storage Tank Systems (Pre/Post-installation) - North Carolina, Page 4

    4

  • Form UST-6 Application to Install or Replace Underground Storage Tank Systems (Pre/Post-installation) - North Carolina, Page 5

    5

  • Form UST-6 Application to Install or Replace Underground Storage Tank Systems (Pre/Post-installation) - North Carolina, Page 6

    6

  • Form UST-6 Application to Install or Replace Underground Storage Tank Systems (Pre/Post-installation) - North Carolina, Page 7

    7

  • Form UST-6 Application to Install or Replace Underground Storage Tank Systems (Pre/Post-installation) - North Carolina, Page 8

    8

  • Form UST-6 Application to Install or Replace Underground Storage Tank Systems (Pre/Post-installation) - North Carolina, Page 9

    9

  • Form UST-6 Application to Install or Replace Underground Storage Tank Systems (Pre / Post-installation) - North Carolina, Page 1
  • Form UST-6 Application to Install or Replace Underground Storage Tank Systems (Pre / Post-installation) - North Carolina, Page 2
  • Form UST-6 Application to Install or Replace Underground Storage Tank Systems (Pre / Post-installation) - North Carolina, Page 3
  • Form UST-6 Application to Install or Replace Underground Storage Tank Systems (Pre / Post-installation) - North Carolina, Page 4
  • Form UST-6 Application to Install or Replace Underground Storage Tank Systems (Pre / Post-installation) - North Carolina, Page 5
  • Form UST-6 Application to Install or Replace Underground Storage Tank Systems (Pre / Post-installation) - North Carolina, Page 6
  • Form UST-6 Application to Install or Replace Underground Storage Tank Systems (Pre / Post-installation) - North Carolina, Page 7
  • Form UST-6 Application to Install or Replace Underground Storage Tank Systems (Pre / Post-installation) - North Carolina, Page 8
  • Form UST-6 Application to Install or Replace Underground Storage Tank Systems (Pre / Post-installation) - North Carolina, Page 9
Prev 1 2 3 4 5 ... 9 Next
ADVERTISEMENT

Related Documents