Form BOE-517-TC Property Statement - Telecommunications Carriers - California

Notification Icon This version of the form is not currently in use and is provided for reference only. Download this version of Form BOE-517-TC for the current year.

Form BOE-517-TC Property Statement - Telecommunications Carriers - California

What Is Form BOE-517-TC?

This is a legal form that was released by the California State Board of Equalization - a government authority operating within California. As of today, no separate filing guidelines for the form are provided by the issuing department.

FAQ

Q: What is form BOE-517-TC?
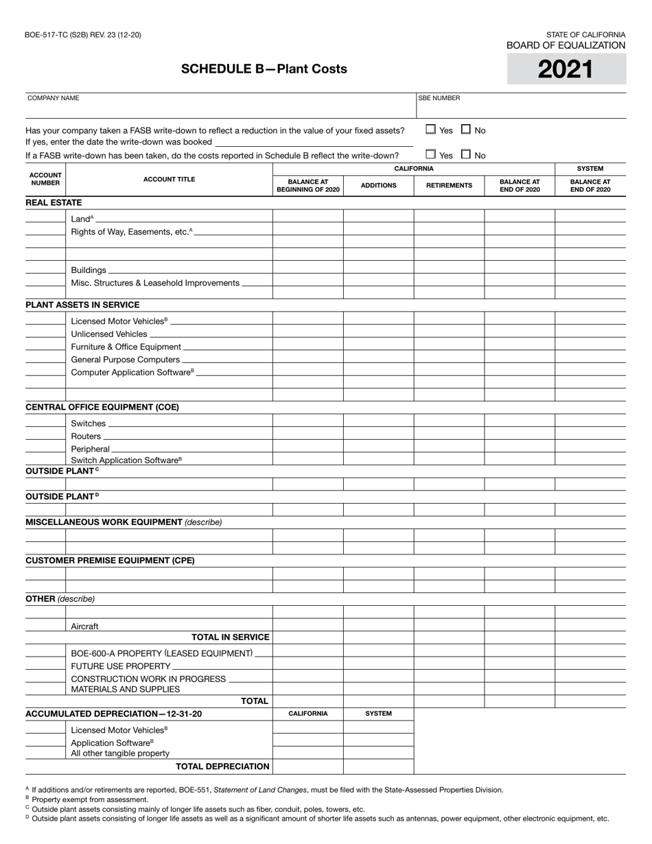
A: Form BOE-517-TC is a property statement for telecommunications carriers in California.

Q: Who needs to file form BOE-517-TC?
A: Telecommunications carriers in California need to file form BOE-517-TC.

Q: What is the purpose of form BOE-517-TC?
A: The purpose of form BOE-517-TC is to report the value of property owned or controlled by telecommunications carriers.

Q: When is form BOE-517-TC due?
A: Form BOE-517-TC is due on or before April 1st each year.

Q: Are there any penalties for late filing of form BOE-517-TC?
A: Yes, there are penalties for late filing of form BOE-517-TC.

ADVERTISEMENT

Form Details:

  • Released on December 1, 2020;
  • The latest edition provided by the California State Board of Equalization;
  • Easy to use and ready to print;
  • Quick to customize;
  • Compatible with most PDF-viewing applications;
  • Fill out the form in our online filing application.

Download a fillable version of Form BOE-517-TC by clicking the link below or browse more documents and templates provided by the California State Board of Equalization.

Download Form BOE-517-TC Property Statement - Telecommunications Carriers - California

4.4 of 5 (25 votes)
  • Form BOE-517-TC Property Statement - Telecommunications Carriers - California

    1

  • Form BOE-517-TC Property Statement - Telecommunications Carriers - California, Page 2

    2

  • Form BOE-517-TC Property Statement - Telecommunications Carriers - California, Page 3

    3

  • Form BOE-517-TC Property Statement - Telecommunications Carriers - California, Page 4

    4

  • Form BOE-517-TC Property Statement - Telecommunications Carriers - California, Page 5

    5

  • Form BOE-517-TC Property Statement - Telecommunications Carriers - California, Page 6

    6

  • Form BOE-517-TC Property Statement - Telecommunications Carriers - California, Page 7

    7

  • Form BOE-517-TC Property Statement - Telecommunications Carriers - California, Page 8

    8

  • Form BOE-517-TC Property Statement - Telecommunications Carriers - California, Page 9

    9

  • Form BOE-517-TC Property Statement - Telecommunications Carriers - California, Page 1
  • Form BOE-517-TC Property Statement - Telecommunications Carriers - California, Page 2
  • Form BOE-517-TC Property Statement - Telecommunications Carriers - California, Page 3
  • Form BOE-517-TC Property Statement - Telecommunications Carriers - California, Page 4
  • Form BOE-517-TC Property Statement - Telecommunications Carriers - California, Page 5
  • Form BOE-517-TC Property Statement - Telecommunications Carriers - California, Page 6
  • Form BOE-517-TC Property Statement - Telecommunications Carriers - California, Page 7
  • Form BOE-517-TC Property Statement - Telecommunications Carriers - California, Page 8
  • Form BOE-517-TC Property Statement - Telecommunications Carriers - California, Page 9
Prev 1 2 3 4 5 ... 9 Next
ADVERTISEMENT