KREC Form 402 Seller's Disclosure of Property Condition - Kentucky

Notification Icon This version of the form is not currently in use and is provided for reference only. Download this version of KREC Form 402 for the current year.

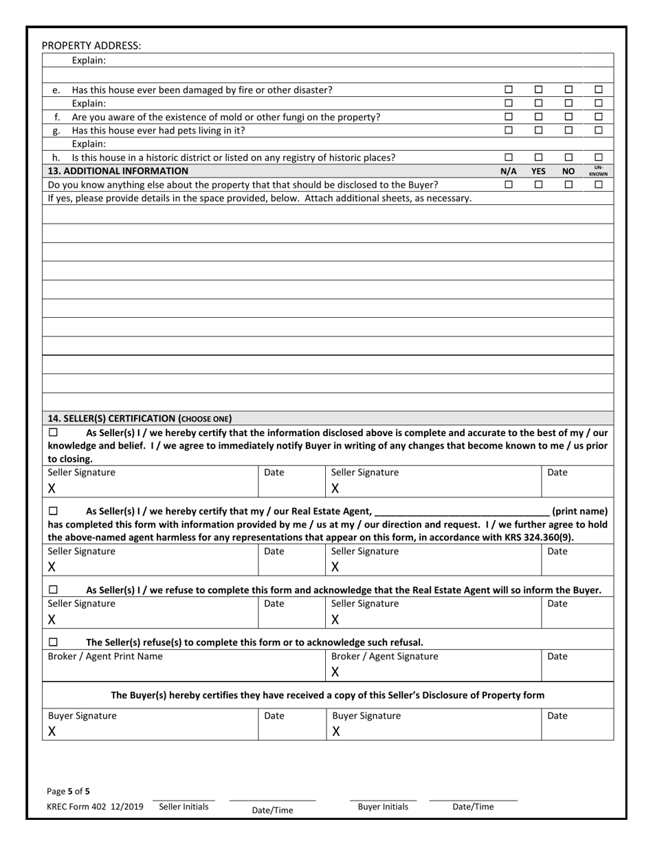
KREC Form 402 Seller's Disclosure of Property Condition - Kentucky

What Is KREC Form 402?

This is a legal form that was released by the Kentucky Real Estate Commission - a government authority operating within Kentucky. As of today, no separate filing guidelines for the form are provided by the issuing department.

FAQ

Q: What is KREC Form 402?
A: KREC Form 402 is the Seller's Disclosure of Property Condition form used in Kentucky.

Q: Who typically fills out the KREC Form 402?
A: The seller of the property typically fills out the KREC Form 402.

Q: What is the purpose of the KREC Form 402?
A: The purpose of the KREC Form 402 is for the seller to disclose any known defects or issues with the property.

Q: What information does the KREC Form 402 require?
A: The KREC Form 402 requires the seller to provide information about the property's systems, structures, and any known defects or repairs.

Q: Is the KREC Form 402 required in Kentucky?
A: Yes, the KREC Form 402 is a required form for sellers in Kentucky to disclose the condition of the property.

ADVERTISEMENT

Form Details:

  • Released on December 1, 2019;
  • The latest edition provided by the Kentucky Real Estate Commission;
  • Easy to use and ready to print;
  • Quick to customize;
  • Compatible with most PDF-viewing applications;
  • Fill out the form in our online filing application.

Download a printable version of KREC Form 402 by clicking the link below or browse more documents and templates provided by the Kentucky Real Estate Commission.

Download KREC Form 402 Seller's Disclosure of Property Condition - Kentucky

4.5 of 5 (18 votes)
  • KREC Form 402 Seller's Disclosure of Property Condition - Kentucky

    1

  • KREC Form 402 Seller's Disclosure of Property Condition - Kentucky, Page 2

    2

  • KREC Form 402 Seller's Disclosure of Property Condition - Kentucky, Page 3

    3

  • KREC Form 402 Seller's Disclosure of Property Condition - Kentucky, Page 4

    4

  • KREC Form 402 Seller's Disclosure of Property Condition - Kentucky, Page 5

    5

  • KREC Form 402 Sellers Disclosure of Property Condition - Kentucky, Page 1
  • KREC Form 402 Sellers Disclosure of Property Condition - Kentucky, Page 2
  • KREC Form 402 Sellers Disclosure of Property Condition - Kentucky, Page 3
  • KREC Form 402 Sellers Disclosure of Property Condition - Kentucky, Page 4
  • KREC Form 402 Sellers Disclosure of Property Condition - Kentucky, Page 5
Prev 1 2 3 4 5 Next
ADVERTISEMENT