Instructions for Real Property Income and Expense Form for Adult Care and Nursing Home Facilities - New York City

Instructions for Real Property Income and Expense Form for Adult Care and Nursing Home Facilities - New York City

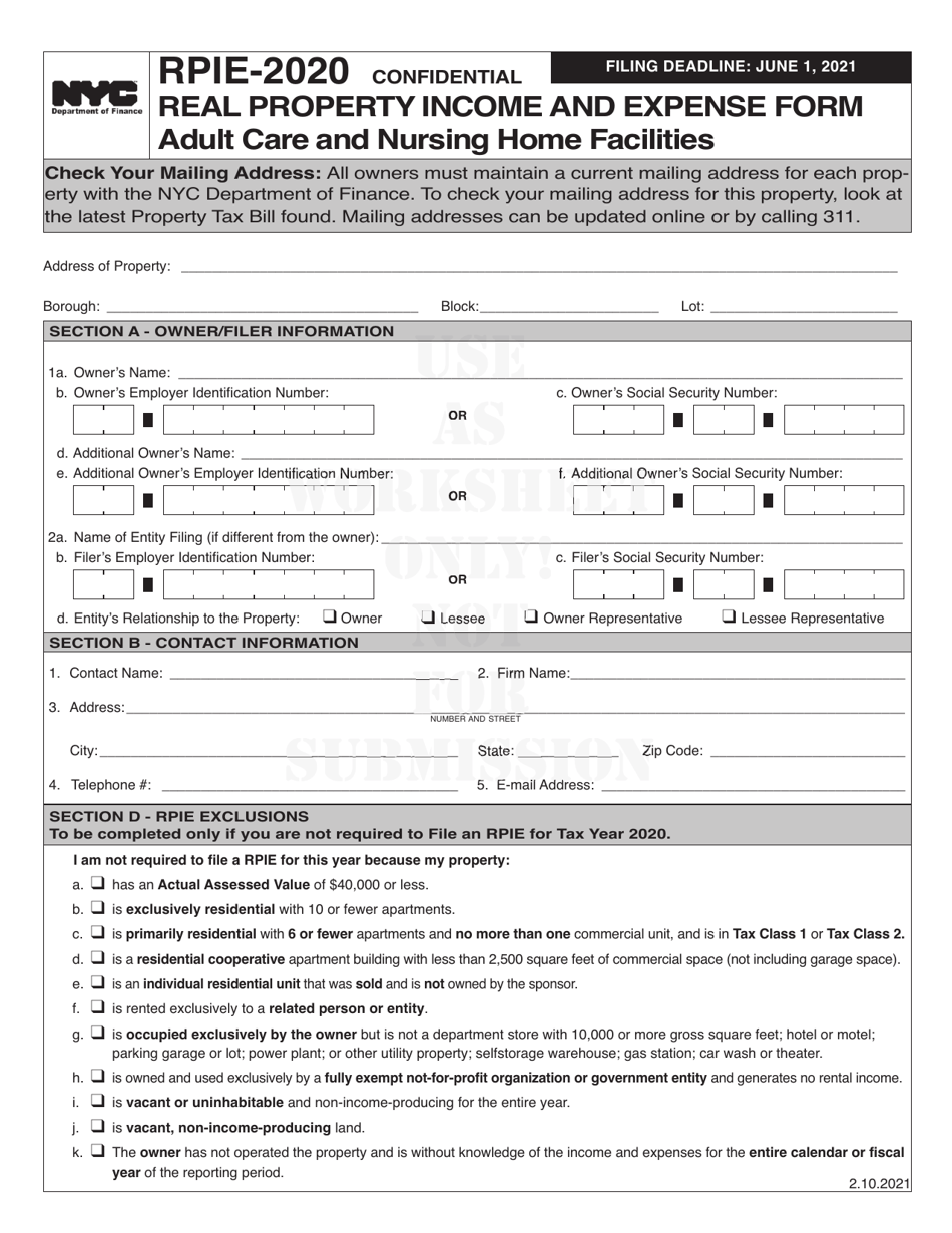
This document was released by New York City Department of Finance and contains the most recent official instructions for Real Nursing Home Facilities .

FAQ

Q: What is the Real Property Income and Expense Form?
A: The Real Property Income and Expense Form is a form used to report income and expenses for adult care and nursing home facilities in New York City.

Q: Who needs to fill out the Real Property Income and Expense Form?
A: Owners or operators of adult care and nursing home facilities in New York City need to fill out this form.

Q: What information do I need to provide on the form?
A: You will need to provide details about the income and expenses of your adult care or nursing home facility, including rent, utilities, maintenance costs, and payroll expenses.

Q: When is the deadline to submit the Real Property Income and Expense Form?
A: The deadline to submit the form is typically March 1st of each year, but you should check for any updates or changes.

Q: Are there any penalties for not submitting the form on time?
A: Yes, there may be penalties for late or non-submission of the form, so it is important to meet the deadline.

Q: Can I request an extension to submit the form?
A: Yes, you can request an extension by contacting the New York City Department of Finance.

Q: What should I do if I have questions or need assistance with the form?
A: You can reach out to the New York City Department of Finance for assistance or clarification on any questions you have regarding the form.

Q: Is the Real Property Income and Expense Form confidential?
A: The information you provide on the form is generally kept confidential, but it may be subject to disclosure in certain circumstances.

ADVERTISEMENT

Instruction Details:

  • This 16-page document is available for download in PDF;
  • Might not be applicable for the current year. Choose a more recent version;
  • Complete, printable, and free.

Download your copy of the instructions by clicking the link below or browse hundreds of other forms in our library legal documents released by the New York City Department of Finance.

Download Instructions for Real Property Income and Expense Form for Adult Care and Nursing Home Facilities - New York City

4.4 of 5 (30 votes)
  • Instructions for Real Property Income and Expense Form for Adult Care and Nursing Home Facilities - New York City

    1

  • Instructions for Real Property Income and Expense Form for Adult Care and Nursing Home Facilities - New York City, Page 2

    2

  • Instructions for Real Property Income and Expense Form for Adult Care and Nursing Home Facilities - New York City, Page 3

    3

  • Instructions for Real Property Income and Expense Form for Adult Care and Nursing Home Facilities - New York City, Page 4

    4

  • Instructions for Real Property Income and Expense Form for Adult Care and Nursing Home Facilities - New York City, Page 5

    5

  • Instructions for Real Property Income and Expense Form for Adult Care and Nursing Home Facilities - New York City, Page 6

    6

  • Instructions for Real Property Income and Expense Form for Adult Care and Nursing Home Facilities - New York City, Page 7

    7

  • Instructions for Real Property Income and Expense Form for Adult Care and Nursing Home Facilities - New York City, Page 8

    8

  • Instructions for Real Property Income and Expense Form for Adult Care and Nursing Home Facilities - New York City, Page 9

    9

  • Instructions for Real Property Income and Expense Form for Adult Care and Nursing Home Facilities - New York City, Page 10

    10

  • Instructions for Real Property Income and Expense Form for Adult Care and Nursing Home Facilities - New York City, Page 11

    11

  • Instructions for Real Property Income and Expense Form for Adult Care and Nursing Home Facilities - New York City, Page 12

    12

  • Instructions for Real Property Income and Expense Form for Adult Care and Nursing Home Facilities - New York City, Page 13

    13

  • Instructions for Real Property Income and Expense Form for Adult Care and Nursing Home Facilities - New York City, Page 14

    14

  • Instructions for Real Property Income and Expense Form for Adult Care and Nursing Home Facilities - New York City, Page 15

    15

  • Instructions for Real Property Income and Expense Form for Adult Care and Nursing Home Facilities - New York City, Page 16

    16

  • Instructions for Real Property Income and Expense Form for Adult Care and Nursing Home Facilities - New York City, Page 1
  • Instructions for Real Property Income and Expense Form for Adult Care and Nursing Home Facilities - New York City, Page 2
  • Instructions for Real Property Income and Expense Form for Adult Care and Nursing Home Facilities - New York City, Page 3
  • Instructions for Real Property Income and Expense Form for Adult Care and Nursing Home Facilities - New York City, Page 4
  • Instructions for Real Property Income and Expense Form for Adult Care and Nursing Home Facilities - New York City, Page 5
  • Instructions for Real Property Income and Expense Form for Adult Care and Nursing Home Facilities - New York City, Page 6
  • Instructions for Real Property Income and Expense Form for Adult Care and Nursing Home Facilities - New York City, Page 7
  • Instructions for Real Property Income and Expense Form for Adult Care and Nursing Home Facilities - New York City, Page 8
  • Instructions for Real Property Income and Expense Form for Adult Care and Nursing Home Facilities - New York City, Page 9
  • Instructions for Real Property Income and Expense Form for Adult Care and Nursing Home Facilities - New York City, Page 10
  • Instructions for Real Property Income and Expense Form for Adult Care and Nursing Home Facilities - New York City, Page 11
  • Instructions for Real Property Income and Expense Form for Adult Care and Nursing Home Facilities - New York City, Page 12
  • Instructions for Real Property Income and Expense Form for Adult Care and Nursing Home Facilities - New York City, Page 13
  • Instructions for Real Property Income and Expense Form for Adult Care and Nursing Home Facilities - New York City, Page 14
  • Instructions for Real Property Income and Expense Form for Adult Care and Nursing Home Facilities - New York City, Page 15
  • Instructions for Real Property Income and Expense Form for Adult Care and Nursing Home Facilities - New York City, Page 16
Prev 1 2 3 4 5 ... 16 Next
ADVERTISEMENT

Related Documents