Form DBPR BCAIB1 Application for Initial Certification by Examination or Endorsement - Inspectors and Plans Examiners - Florida

Notification Icon This version of the form is not currently in use and is provided for reference only. Download this version of Form DBPR BCAIB1 for the current year.

Form DBPR BCAIB1 Application for Initial Certification by Examination or Endorsement - Inspectors and Plans Examiners - Florida

What Is Form DBPR BCAIB1?

This is a legal form that was released by the Florida Department of Business & Professional Regulation - a government authority operating within Florida. As of today, no separate filing guidelines for the form are provided by the issuing department.

FAQ

Q: What is the DBPR BCAIB1 application?
A: The DBPR BCAIB1 application is used for initial certification by examination or endorsement for inspectors and plans examiners in Florida.

Q: Who can use the DBPR BCAIB1 application?
A: Inspectors and plans examiners in Florida can use the DBPR BCAIB1 application for initial certification by examination or endorsement.

Q: What is the purpose of the DBPR BCAIB1 application?
A: The purpose of the DBPR BCAIB1 application is to apply for certification as an inspector or plans examiner.

Q: What qualifications are required to use the DBPR BCAIB1 application?
A: To use the DBPR BCAIB1 application, you need to meet the qualifications for certification as an inspector or plans examiner in Florida.

Q: What information is required on the DBPR BCAIB1 application?
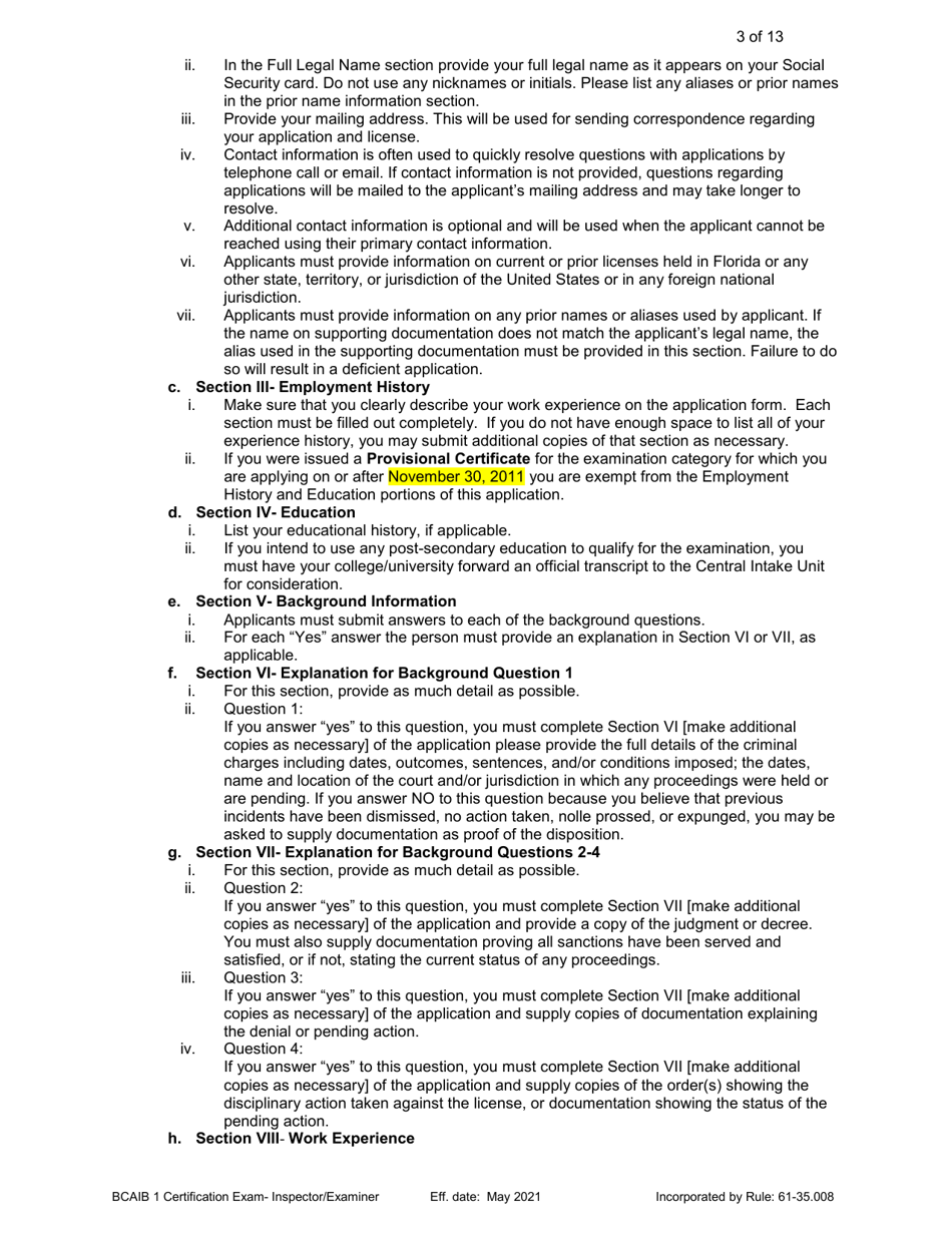
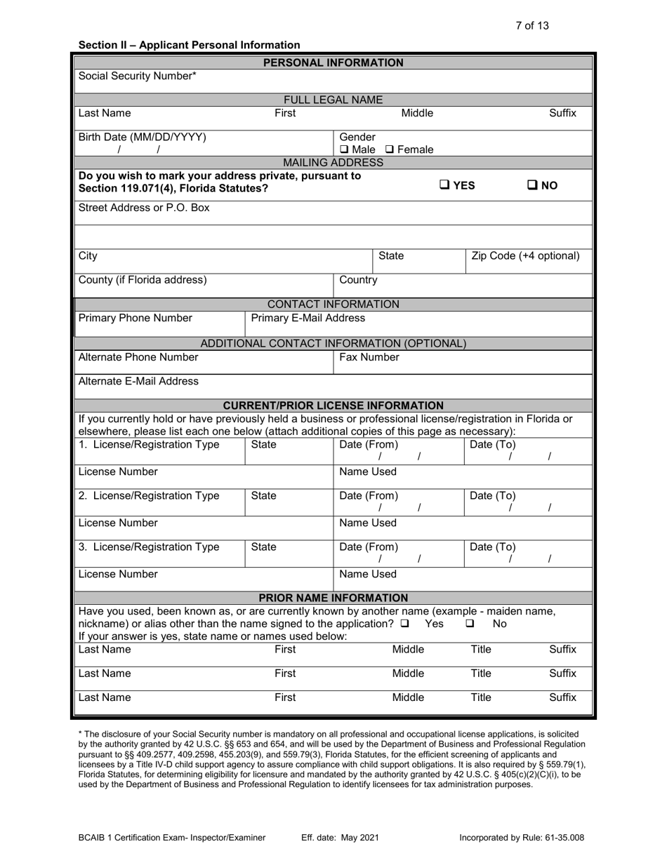
A: The DBPR BCAIB1 application requires personal and contact information, education and training details, experience information, and supporting documentation.

Q: Are there any fees associated with the DBPR BCAIB1 application?
A: Yes, there are fees associated with the DBPR BCAIB1 application. The fees vary depending on the type of certification being sought.

Q: How long does it take to process the DBPR BCAIB1 application?
A: The processing time for the DBPR BCAIB1 application can vary. It is recommended to allow several weeks for processing.

ADVERTISEMENT

Form Details:

  • Released on May 1, 2021;
  • The latest edition provided by the Florida Department of Business & Professional Regulation;
  • Easy to use and ready to print;
  • Quick to customize;
  • Compatible with most PDF-viewing applications;
  • Fill out the form in our online filing application.

Download a printable version of Form DBPR BCAIB1 by clicking the link below or browse more documents and templates provided by the Florida Department of Business & Professional Regulation.

Download Form DBPR BCAIB1 Application for Initial Certification by Examination or Endorsement - Inspectors and Plans Examiners - Florida

4.4 of 5 (11 votes)
  • Form DBPR BCAIB1 Application for Initial Certification by Examination or Endorsement - Inspectors and Plans Examiners - Florida

    1

  • Form DBPR BCAIB1 Application for Initial Certification by Examination or Endorsement - Inspectors and Plans Examiners - Florida, Page 2

    2

  • Form DBPR BCAIB1 Application for Initial Certification by Examination or Endorsement - Inspectors and Plans Examiners - Florida, Page 3

    3

  • Form DBPR BCAIB1 Application for Initial Certification by Examination or Endorsement - Inspectors and Plans Examiners - Florida, Page 4

    4

  • Form DBPR BCAIB1 Application for Initial Certification by Examination or Endorsement - Inspectors and Plans Examiners - Florida, Page 5

    5

  • Form DBPR BCAIB1 Application for Initial Certification by Examination or Endorsement - Inspectors and Plans Examiners - Florida, Page 6

    6

  • Form DBPR BCAIB1 Application for Initial Certification by Examination or Endorsement - Inspectors and Plans Examiners - Florida, Page 7

    7

  • Form DBPR BCAIB1 Application for Initial Certification by Examination or Endorsement - Inspectors and Plans Examiners - Florida, Page 8

    8

  • Form DBPR BCAIB1 Application for Initial Certification by Examination or Endorsement - Inspectors and Plans Examiners - Florida, Page 9

    9

  • Form DBPR BCAIB1 Application for Initial Certification by Examination or Endorsement - Inspectors and Plans Examiners - Florida, Page 10

    10

  • Form DBPR BCAIB1 Application for Initial Certification by Examination or Endorsement - Inspectors and Plans Examiners - Florida, Page 11

    11

  • Form DBPR BCAIB1 Application for Initial Certification by Examination or Endorsement - Inspectors and Plans Examiners - Florida, Page 12

    12

  • Form DBPR BCAIB1 Application for Initial Certification by Examination or Endorsement - Inspectors and Plans Examiners - Florida, Page 13

    13

  • Form DBPR BCAIB1 Application for Initial Certification by Examination or Endorsement - Inspectors and Plans Examiners - Florida, Page 1
  • Form DBPR BCAIB1 Application for Initial Certification by Examination or Endorsement - Inspectors and Plans Examiners - Florida, Page 2
  • Form DBPR BCAIB1 Application for Initial Certification by Examination or Endorsement - Inspectors and Plans Examiners - Florida, Page 3
  • Form DBPR BCAIB1 Application for Initial Certification by Examination or Endorsement - Inspectors and Plans Examiners - Florida, Page 4
  • Form DBPR BCAIB1 Application for Initial Certification by Examination or Endorsement - Inspectors and Plans Examiners - Florida, Page 5
  • Form DBPR BCAIB1 Application for Initial Certification by Examination or Endorsement - Inspectors and Plans Examiners - Florida, Page 6
  • Form DBPR BCAIB1 Application for Initial Certification by Examination or Endorsement - Inspectors and Plans Examiners - Florida, Page 7
  • Form DBPR BCAIB1 Application for Initial Certification by Examination or Endorsement - Inspectors and Plans Examiners - Florida, Page 8
  • Form DBPR BCAIB1 Application for Initial Certification by Examination or Endorsement - Inspectors and Plans Examiners - Florida, Page 9
  • Form DBPR BCAIB1 Application for Initial Certification by Examination or Endorsement - Inspectors and Plans Examiners - Florida, Page 10
  • Form DBPR BCAIB1 Application for Initial Certification by Examination or Endorsement - Inspectors and Plans Examiners - Florida, Page 11
  • Form DBPR BCAIB1 Application for Initial Certification by Examination or Endorsement - Inspectors and Plans Examiners - Florida, Page 12
  • Form DBPR BCAIB1 Application for Initial Certification by Examination or Endorsement - Inspectors and Plans Examiners - Florida, Page 13
Prev 1 2 3 4 5 ... 13 Next
ADVERTISEMENT