Form CIS-H Housing / Real Estate Transaction Complainant Information Sheet - Illinois

Notification Icon This version of the form is not currently in use and is provided for reference only. Download this version of Form CIS-H for the current year.

Form CIS-H Housing / Real Estate Transaction Complainant Information Sheet - Illinois

What Is Form CIS-H?

This is a legal form that was released by the Illinois Department of Human Rights - a government authority operating within Illinois. As of today, no separate filing guidelines for the form are provided by the issuing department.

FAQ

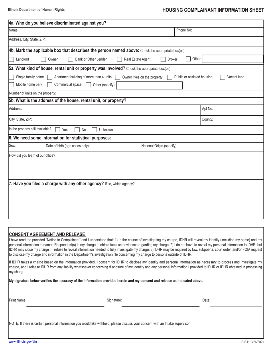
Q: What is the purpose of the CIS-H Housing/Real Estate Transaction Complainant Information Sheet?
A: The CIS-H Housing/Real Estate Transaction Complainant Information Sheet is used to gather information about complainants in housing or real estate transactions in Illinois.

Q: Who uses the CIS-H Housing/Real Estate Transaction Complainant Information Sheet?
A: The CIS-H Housing/Real Estate Transaction Complainant Information Sheet is used by individuals filing complaints related to housing or real estate transactions in Illinois.

Q: What information is required on the CIS-H Housing/Real Estate Transaction Complainant Information Sheet?
A: The CIS-H Housing/Real Estate Transaction Complainant Information Sheet requires the complainant's contact information, details about the transaction, and a description of the alleged violation.

ADVERTISEMENT

Form Details:

  • Released on March 26, 2021;
  • The latest edition provided by the Illinois Department of Human Rights;
  • Easy to use and ready to print;
  • Available in Spanish;
  • Quick to customize;
  • Compatible with most PDF-viewing applications;
  • Fill out the form in our online filing application.

Download a fillable version of Form CIS-H by clicking the link below or browse more documents and templates provided by the Illinois Department of Human Rights.

Download Form CIS-H Housing / Real Estate Transaction Complainant Information Sheet - Illinois

4.6 of 5 (20 votes)
  • Form CIS-H Housing/Real Estate Transaction Complainant Information Sheet - Illinois

    1

  • Form CIS-H Housing/Real Estate Transaction Complainant Information Sheet - Illinois, Page 2

    2

  • Form CIS-H Housing/Real Estate Transaction Complainant Information Sheet - Illinois, Page 3

    3

  • Form CIS-H Housing / Real Estate Transaction Complainant Information Sheet - Illinois, Page 1
  • Form CIS-H Housing / Real Estate Transaction Complainant Information Sheet - Illinois, Page 2
  • Form CIS-H Housing / Real Estate Transaction Complainant Information Sheet - Illinois, Page 3
Prev 1 2 3 Next
ADVERTISEMENT