Qualified Person Assessment or Self-assessment - Checklist: Groundwater (Gw) - Manitoba, Canada

Qualified Person Assessment or Self-assessment - Checklist: Groundwater (Gw) - Manitoba, Canada

Qualified Person Assessment or Self-assessment - Checklist: Groundwater (Gw) in Manitoba, Canada is used to assess the condition of groundwater resources in the region. It helps identify potential risks and ensures that groundwater resources are managed and protected effectively.

The Qualified Person Assessment or Self-assessment - Checklist: Groundwater (Gw) in Manitoba, Canada is typically filed by the property owner or a qualified professional hired by the property owner.

FAQ

Q: What is the purpose of the Qualified Person Assessment or Self-assessment checklist for Groundwater in Manitoba, Canada?
A: The purpose is to assess and evaluate the state of groundwater resources in Manitoba.

Q: Who is responsible for conducting the Qualified Person Assessment or Self-assessment?
A: Qualified persons or property owners are responsible for conducting the assessment.

Q: What does the self-assessment checklist for groundwater in Manitoba cover?
A: The checklist covers various aspects related to groundwater quality and quantity.

Q: Why is it important to conduct a Qualified Person Assessment or Self-assessment for groundwater?
A: It helps to ensure the protection and sustainable management of groundwater resources.

Q: Is the Qualified Person Assessment or Self-assessment mandatory in Manitoba?
A: Yes, it is mandatory for certain activities related to groundwater in Manitoba.

ADVERTISEMENT

Download Qualified Person Assessment or Self-assessment - Checklist: Groundwater (Gw) - Manitoba, Canada

4.9 of 5 (7 votes)
  • Qualified Person Assessment or Self-assessment - Checklist: Groundwater (Gw) - Manitoba, Canada

    1

  • Qualified Person Assessment or Self-assessment - Checklist: Groundwater (Gw) - Manitoba, Canada, Page 2

    2

  • Qualified Person Assessment or Self-assessment - Checklist: Groundwater (Gw) - Manitoba, Canada, Page 3

    3

  • Qualified Person Assessment or Self-assessment - Checklist: Groundwater (Gw) - Manitoba, Canada, Page 4

    4

  • Qualified Person Assessment or Self-assessment - Checklist: Groundwater (Gw) - Manitoba, Canada, Page 5

    5

  • Qualified Person Assessment or Self-assessment - Checklist: Groundwater (Gw) - Manitoba, Canada, Page 6

    6

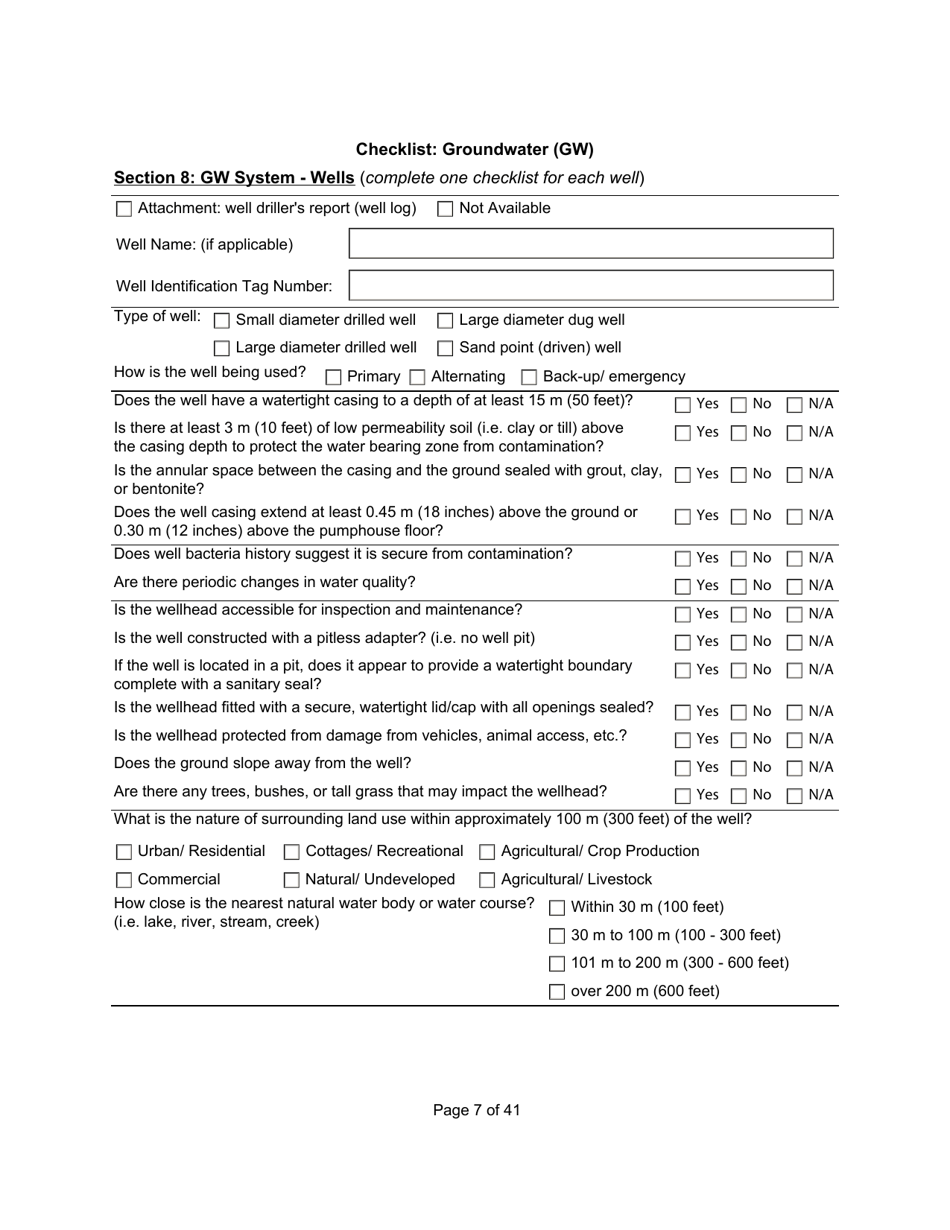
  • Qualified Person Assessment or Self-assessment - Checklist: Groundwater (Gw) - Manitoba, Canada, Page 7

    7

  • Qualified Person Assessment or Self-assessment - Checklist: Groundwater (Gw) - Manitoba, Canada, Page 8

    8

  • Qualified Person Assessment or Self-assessment - Checklist: Groundwater (Gw) - Manitoba, Canada, Page 9

    9

  • Qualified Person Assessment or Self-assessment - Checklist: Groundwater (Gw) - Manitoba, Canada, Page 10

    10

  • Qualified Person Assessment or Self-assessment - Checklist: Groundwater (Gw) - Manitoba, Canada, Page 11

    11

  • Qualified Person Assessment or Self-assessment - Checklist: Groundwater (Gw) - Manitoba, Canada, Page 12

    12

  • Qualified Person Assessment or Self-assessment - Checklist: Groundwater (Gw) - Manitoba, Canada, Page 13

    13

  • Qualified Person Assessment or Self-assessment - Checklist: Groundwater (Gw) - Manitoba, Canada, Page 14

    14

  • Qualified Person Assessment or Self-assessment - Checklist: Groundwater (Gw) - Manitoba, Canada, Page 15

    15

  • Qualified Person Assessment or Self-assessment - Checklist: Groundwater (Gw) - Manitoba, Canada, Page 16

    16

  • Qualified Person Assessment or Self-assessment - Checklist: Groundwater (Gw) - Manitoba, Canada, Page 17

    17

  • Qualified Person Assessment or Self-assessment - Checklist: Groundwater (Gw) - Manitoba, Canada, Page 18

    18

  • Qualified Person Assessment or Self-assessment - Checklist: Groundwater (Gw) - Manitoba, Canada, Page 19

    19

  • Qualified Person Assessment or Self-assessment - Checklist: Groundwater (Gw) - Manitoba, Canada, Page 20

    20

  • Qualified Person Assessment or Self-assessment - Checklist: Groundwater (Gw) - Manitoba, Canada, Page 21

    21

  • Qualified Person Assessment or Self-assessment - Checklist: Groundwater (Gw) - Manitoba, Canada, Page 22

    22

  • Qualified Person Assessment or Self-assessment - Checklist: Groundwater (Gw) - Manitoba, Canada, Page 23

    23

  • Qualified Person Assessment or Self-assessment - Checklist: Groundwater (Gw) - Manitoba, Canada, Page 24

    24

  • Qualified Person Assessment or Self-assessment - Checklist: Groundwater (Gw) - Manitoba, Canada, Page 25

    25

  • Qualified Person Assessment or Self-assessment - Checklist: Groundwater (Gw) - Manitoba, Canada, Page 26

    26

  • Qualified Person Assessment or Self-assessment - Checklist: Groundwater (Gw) - Manitoba, Canada, Page 27

    27

  • Qualified Person Assessment or Self-assessment - Checklist: Groundwater (Gw) - Manitoba, Canada, Page 28

    28

  • Qualified Person Assessment or Self-assessment - Checklist: Groundwater (Gw) - Manitoba, Canada, Page 29

    29

  • Qualified Person Assessment or Self-assessment - Checklist: Groundwater (Gw) - Manitoba, Canada, Page 30

    30

  • Qualified Person Assessment or Self-assessment - Checklist: Groundwater (Gw) - Manitoba, Canada, Page 31

    31

  • Qualified Person Assessment or Self-assessment - Checklist: Groundwater (Gw) - Manitoba, Canada, Page 32

    32

  • Qualified Person Assessment or Self-assessment - Checklist: Groundwater (Gw) - Manitoba, Canada, Page 33

    33

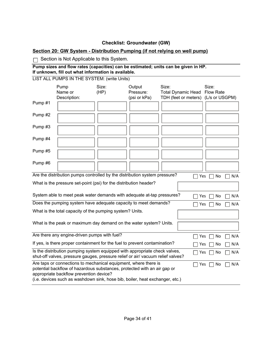
  • Qualified Person Assessment or Self-assessment - Checklist: Groundwater (Gw) - Manitoba, Canada, Page 34

    34

  • Qualified Person Assessment or Self-assessment - Checklist: Groundwater (Gw) - Manitoba, Canada, Page 35

    35

  • Qualified Person Assessment or Self-assessment - Checklist: Groundwater (Gw) - Manitoba, Canada, Page 36

    36

  • Qualified Person Assessment or Self-assessment - Checklist: Groundwater (Gw) - Manitoba, Canada, Page 37

    37

  • Qualified Person Assessment or Self-assessment - Checklist: Groundwater (Gw) - Manitoba, Canada, Page 38

    38

  • Qualified Person Assessment or Self-assessment - Checklist: Groundwater (Gw) - Manitoba, Canada, Page 39

    39

  • Qualified Person Assessment or Self-assessment - Checklist: Groundwater (Gw) - Manitoba, Canada, Page 40

    40

  • Qualified Person Assessment or Self-assessment - Checklist: Groundwater (Gw) - Manitoba, Canada, Page 41

    41

  • Qualified Person Assessment or Self-assessment - Checklist: Groundwater (Gw) - Manitoba, Canada, Page 1
  • Qualified Person Assessment or Self-assessment - Checklist: Groundwater (Gw) - Manitoba, Canada, Page 2
  • Qualified Person Assessment or Self-assessment - Checklist: Groundwater (Gw) - Manitoba, Canada, Page 3
  • Qualified Person Assessment or Self-assessment - Checklist: Groundwater (Gw) - Manitoba, Canada, Page 4
  • Qualified Person Assessment or Self-assessment - Checklist: Groundwater (Gw) - Manitoba, Canada, Page 5
  • Qualified Person Assessment or Self-assessment - Checklist: Groundwater (Gw) - Manitoba, Canada, Page 6
  • Qualified Person Assessment or Self-assessment - Checklist: Groundwater (Gw) - Manitoba, Canada, Page 7
  • Qualified Person Assessment or Self-assessment - Checklist: Groundwater (Gw) - Manitoba, Canada, Page 8
  • Qualified Person Assessment or Self-assessment - Checklist: Groundwater (Gw) - Manitoba, Canada, Page 9
  • Qualified Person Assessment or Self-assessment - Checklist: Groundwater (Gw) - Manitoba, Canada, Page 10
  • Qualified Person Assessment or Self-assessment - Checklist: Groundwater (Gw) - Manitoba, Canada, Page 11
  • Qualified Person Assessment or Self-assessment - Checklist: Groundwater (Gw) - Manitoba, Canada, Page 12
  • Qualified Person Assessment or Self-assessment - Checklist: Groundwater (Gw) - Manitoba, Canada, Page 13
  • Qualified Person Assessment or Self-assessment - Checklist: Groundwater (Gw) - Manitoba, Canada, Page 14
  • Qualified Person Assessment or Self-assessment - Checklist: Groundwater (Gw) - Manitoba, Canada, Page 15
  • Qualified Person Assessment or Self-assessment - Checklist: Groundwater (Gw) - Manitoba, Canada, Page 16
  • Qualified Person Assessment or Self-assessment - Checklist: Groundwater (Gw) - Manitoba, Canada, Page 17
  • Qualified Person Assessment or Self-assessment - Checklist: Groundwater (Gw) - Manitoba, Canada, Page 18
  • Qualified Person Assessment or Self-assessment - Checklist: Groundwater (Gw) - Manitoba, Canada, Page 19
  • Qualified Person Assessment or Self-assessment - Checklist: Groundwater (Gw) - Manitoba, Canada, Page 20
  • Qualified Person Assessment or Self-assessment - Checklist: Groundwater (Gw) - Manitoba, Canada, Page 21
  • Qualified Person Assessment or Self-assessment - Checklist: Groundwater (Gw) - Manitoba, Canada, Page 22
  • Qualified Person Assessment or Self-assessment - Checklist: Groundwater (Gw) - Manitoba, Canada, Page 23
  • Qualified Person Assessment or Self-assessment - Checklist: Groundwater (Gw) - Manitoba, Canada, Page 24
  • Qualified Person Assessment or Self-assessment - Checklist: Groundwater (Gw) - Manitoba, Canada, Page 25
  • Qualified Person Assessment or Self-assessment - Checklist: Groundwater (Gw) - Manitoba, Canada, Page 26
  • Qualified Person Assessment or Self-assessment - Checklist: Groundwater (Gw) - Manitoba, Canada, Page 27
  • Qualified Person Assessment or Self-assessment - Checklist: Groundwater (Gw) - Manitoba, Canada, Page 28
  • Qualified Person Assessment or Self-assessment - Checklist: Groundwater (Gw) - Manitoba, Canada, Page 29
  • Qualified Person Assessment or Self-assessment - Checklist: Groundwater (Gw) - Manitoba, Canada, Page 30
  • Qualified Person Assessment or Self-assessment - Checklist: Groundwater (Gw) - Manitoba, Canada, Page 31
  • Qualified Person Assessment or Self-assessment - Checklist: Groundwater (Gw) - Manitoba, Canada, Page 32
  • Qualified Person Assessment or Self-assessment - Checklist: Groundwater (Gw) - Manitoba, Canada, Page 33
  • Qualified Person Assessment or Self-assessment - Checklist: Groundwater (Gw) - Manitoba, Canada, Page 34
  • Qualified Person Assessment or Self-assessment - Checklist: Groundwater (Gw) - Manitoba, Canada, Page 35
  • Qualified Person Assessment or Self-assessment - Checklist: Groundwater (Gw) - Manitoba, Canada, Page 36
  • Qualified Person Assessment or Self-assessment - Checklist: Groundwater (Gw) - Manitoba, Canada, Page 37
  • Qualified Person Assessment or Self-assessment - Checklist: Groundwater (Gw) - Manitoba, Canada, Page 38
  • Qualified Person Assessment or Self-assessment - Checklist: Groundwater (Gw) - Manitoba, Canada, Page 39
  • Qualified Person Assessment or Self-assessment - Checklist: Groundwater (Gw) - Manitoba, Canada, Page 40
  • Qualified Person Assessment or Self-assessment - Checklist: Groundwater (Gw) - Manitoba, Canada, Page 41
Prev 1 2 3 4 5 ... 41 Next
ADVERTISEMENT