Qualified Person Assessment or Self-assessment - Checklist: Groundwater Exceedance (Gwx) - Manitoba, Canada

Qualified Person Assessment or Self-assessment - Checklist: Groundwater Exceedance (Gwx) - Manitoba, Canada

The Qualified Person Assessment or Self-assessment - Checklist: Groundwater Exceedance (Gwx) in Manitoba, Canada is used to assess and determine if there are potential groundwater exceedances in a particular area. It helps qualified individuals or organizations to evaluate and analyze the groundwater quality and determine if it surpasses the relevant guidelines or standards.

The Qualified Person Assessment or Self-assessment - Checklist: Groundwater Exceedance (Gwx) in Manitoba, Canada is typically filed by the property owner or the responsible party.

FAQ

Q: What is the Qualified Person Assessment?
A: Qualified Person Assessment is a process to assess groundwater exceedance in Manitoba, Canada.

Q: What is a self-assessment checklist?
A: A self-assessment checklist is a tool used to assess groundwater exceedance in Manitoba, Canada.

Q: What does 'Groundwater Exceedance (Gwx)' refer to?
A: 'Groundwater Exceedance (Gwx)' refers to any instance where the groundwater exceeds the allowable limits in Manitoba, Canada.

Q: Who can conduct the Qualified Person Assessment?
A: The Qualified Person Assessment can be conducted by a qualified professional in Manitoba, Canada.

Q: Can individuals assess groundwater exceedance themselves?
A: Yes, individuals can conduct a self-assessment using this checklist.

Q: What is the purpose of this checklist?
A: The purpose of this checklist is to help assess groundwater exceedance and track necessary actions in Manitoba, Canada.

Q: Is this checklist mandatory?
A: The use of this checklist is not mandatory but is recommended to effectively manage groundwater exceedance in Manitoba, Canada.

ADVERTISEMENT

Download Qualified Person Assessment or Self-assessment - Checklist: Groundwater Exceedance (Gwx) - Manitoba, Canada

4.4 of 5 (7 votes)
  • Qualified Person Assessment or Self-assessment - Checklist: Groundwater Exceedance (Gwx) - Manitoba, Canada

    1

  • Qualified Person Assessment or Self-assessment - Checklist: Groundwater Exceedance (Gwx) - Manitoba, Canada, Page 2

    2

  • Qualified Person Assessment or Self-assessment - Checklist: Groundwater Exceedance (Gwx) - Manitoba, Canada, Page 3

    3

  • Qualified Person Assessment or Self-assessment - Checklist: Groundwater Exceedance (Gwx) - Manitoba, Canada, Page 4

    4

  • Qualified Person Assessment or Self-assessment - Checklist: Groundwater Exceedance (Gwx) - Manitoba, Canada, Page 5

    5

  • Qualified Person Assessment or Self-assessment - Checklist: Groundwater Exceedance (Gwx) - Manitoba, Canada, Page 6

    6

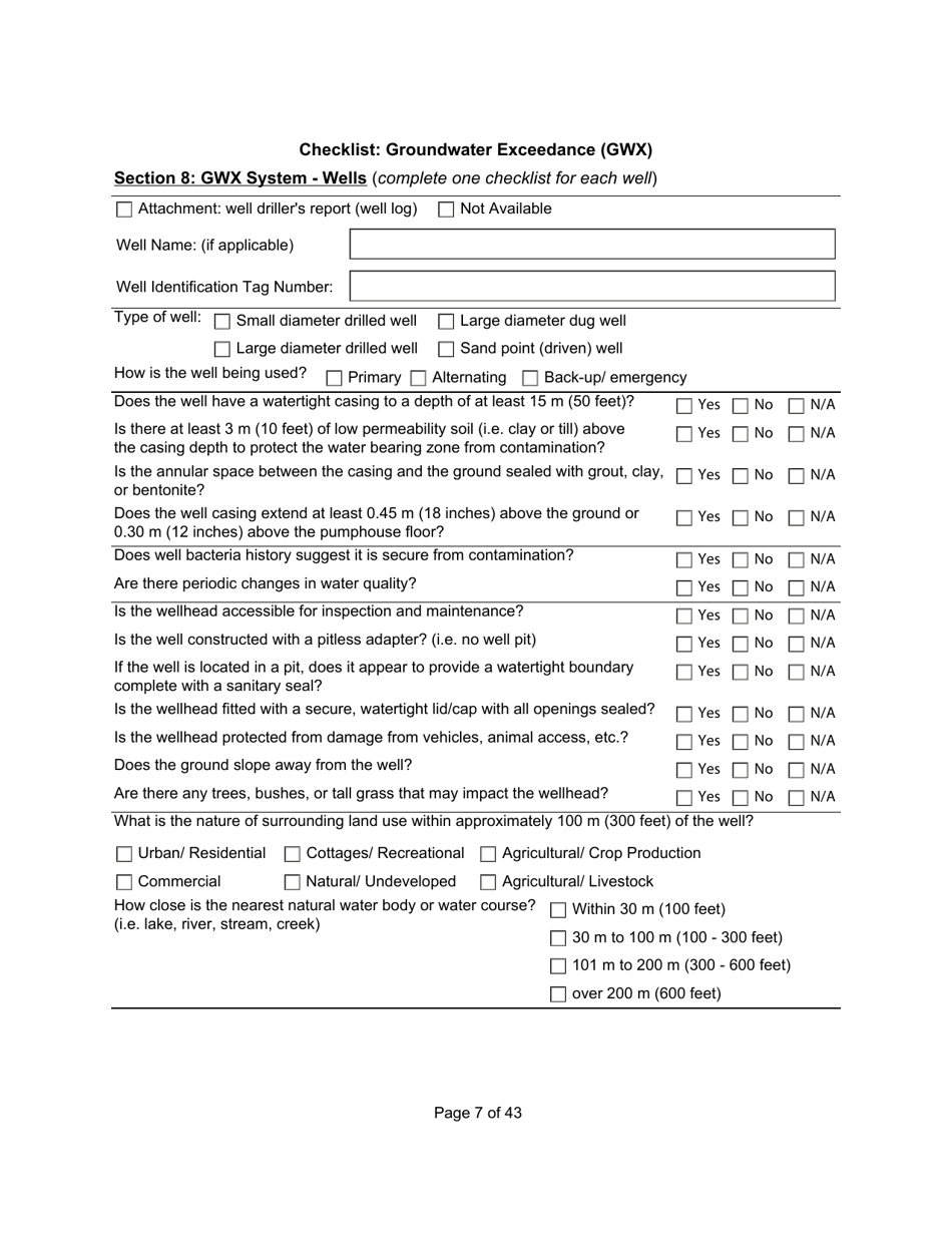
  • Qualified Person Assessment or Self-assessment - Checklist: Groundwater Exceedance (Gwx) - Manitoba, Canada, Page 7

    7

  • Qualified Person Assessment or Self-assessment - Checklist: Groundwater Exceedance (Gwx) - Manitoba, Canada, Page 8

    8

  • Qualified Person Assessment or Self-assessment - Checklist: Groundwater Exceedance (Gwx) - Manitoba, Canada, Page 9

    9

  • Qualified Person Assessment or Self-assessment - Checklist: Groundwater Exceedance (Gwx) - Manitoba, Canada, Page 10

    10

  • Qualified Person Assessment or Self-assessment - Checklist: Groundwater Exceedance (Gwx) - Manitoba, Canada, Page 11

    11

  • Qualified Person Assessment or Self-assessment - Checklist: Groundwater Exceedance (Gwx) - Manitoba, Canada, Page 12

    12

  • Qualified Person Assessment or Self-assessment - Checklist: Groundwater Exceedance (Gwx) - Manitoba, Canada, Page 13

    13

  • Qualified Person Assessment or Self-assessment - Checklist: Groundwater Exceedance (Gwx) - Manitoba, Canada, Page 14

    14

  • Qualified Person Assessment or Self-assessment - Checklist: Groundwater Exceedance (Gwx) - Manitoba, Canada, Page 15

    15

  • Qualified Person Assessment or Self-assessment - Checklist: Groundwater Exceedance (Gwx) - Manitoba, Canada, Page 16

    16

  • Qualified Person Assessment or Self-assessment - Checklist: Groundwater Exceedance (Gwx) - Manitoba, Canada, Page 17

    17

  • Qualified Person Assessment or Self-assessment - Checklist: Groundwater Exceedance (Gwx) - Manitoba, Canada, Page 18

    18

  • Qualified Person Assessment or Self-assessment - Checklist: Groundwater Exceedance (Gwx) - Manitoba, Canada, Page 19

    19

  • Qualified Person Assessment or Self-assessment - Checklist: Groundwater Exceedance (Gwx) - Manitoba, Canada, Page 20

    20

  • Qualified Person Assessment or Self-assessment - Checklist: Groundwater Exceedance (Gwx) - Manitoba, Canada, Page 21

    21

  • Qualified Person Assessment or Self-assessment - Checklist: Groundwater Exceedance (Gwx) - Manitoba, Canada, Page 22

    22

  • Qualified Person Assessment or Self-assessment - Checklist: Groundwater Exceedance (Gwx) - Manitoba, Canada, Page 23

    23

  • Qualified Person Assessment or Self-assessment - Checklist: Groundwater Exceedance (Gwx) - Manitoba, Canada, Page 24

    24

  • Qualified Person Assessment or Self-assessment - Checklist: Groundwater Exceedance (Gwx) - Manitoba, Canada, Page 25

    25

  • Qualified Person Assessment or Self-assessment - Checklist: Groundwater Exceedance (Gwx) - Manitoba, Canada, Page 26

    26

  • Qualified Person Assessment or Self-assessment - Checklist: Groundwater Exceedance (Gwx) - Manitoba, Canada, Page 27

    27

  • Qualified Person Assessment or Self-assessment - Checklist: Groundwater Exceedance (Gwx) - Manitoba, Canada, Page 28

    28

  • Qualified Person Assessment or Self-assessment - Checklist: Groundwater Exceedance (Gwx) - Manitoba, Canada, Page 29

    29

  • Qualified Person Assessment or Self-assessment - Checklist: Groundwater Exceedance (Gwx) - Manitoba, Canada, Page 30

    30

  • Qualified Person Assessment or Self-assessment - Checklist: Groundwater Exceedance (Gwx) - Manitoba, Canada, Page 31

    31

  • Qualified Person Assessment or Self-assessment - Checklist: Groundwater Exceedance (Gwx) - Manitoba, Canada, Page 32

    32

  • Qualified Person Assessment or Self-assessment - Checklist: Groundwater Exceedance (Gwx) - Manitoba, Canada, Page 33

    33

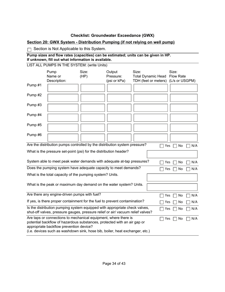
  • Qualified Person Assessment or Self-assessment - Checklist: Groundwater Exceedance (Gwx) - Manitoba, Canada, Page 34

    34

  • Qualified Person Assessment or Self-assessment - Checklist: Groundwater Exceedance (Gwx) - Manitoba, Canada, Page 35

    35

  • Qualified Person Assessment or Self-assessment - Checklist: Groundwater Exceedance (Gwx) - Manitoba, Canada, Page 36

    36

  • Qualified Person Assessment or Self-assessment - Checklist: Groundwater Exceedance (Gwx) - Manitoba, Canada, Page 37

    37

  • Qualified Person Assessment or Self-assessment - Checklist: Groundwater Exceedance (Gwx) - Manitoba, Canada, Page 38

    38

  • Qualified Person Assessment or Self-assessment - Checklist: Groundwater Exceedance (Gwx) - Manitoba, Canada, Page 39

    39

  • Qualified Person Assessment or Self-assessment - Checklist: Groundwater Exceedance (Gwx) - Manitoba, Canada, Page 40

    40

  • Qualified Person Assessment or Self-assessment - Checklist: Groundwater Exceedance (Gwx) - Manitoba, Canada, Page 41

    41

  • Qualified Person Assessment or Self-assessment - Checklist: Groundwater Exceedance (Gwx) - Manitoba, Canada, Page 42

    42

  • Qualified Person Assessment or Self-assessment - Checklist: Groundwater Exceedance (Gwx) - Manitoba, Canada, Page 43

    43

  • Qualified Person Assessment or Self-assessment - Checklist: Groundwater Exceedance (Gwx) - Manitoba, Canada, Page 1
  • Qualified Person Assessment or Self-assessment - Checklist: Groundwater Exceedance (Gwx) - Manitoba, Canada, Page 2
  • Qualified Person Assessment or Self-assessment - Checklist: Groundwater Exceedance (Gwx) - Manitoba, Canada, Page 3
  • Qualified Person Assessment or Self-assessment - Checklist: Groundwater Exceedance (Gwx) - Manitoba, Canada, Page 4
  • Qualified Person Assessment or Self-assessment - Checklist: Groundwater Exceedance (Gwx) - Manitoba, Canada, Page 5
  • Qualified Person Assessment or Self-assessment - Checklist: Groundwater Exceedance (Gwx) - Manitoba, Canada, Page 6
  • Qualified Person Assessment or Self-assessment - Checklist: Groundwater Exceedance (Gwx) - Manitoba, Canada, Page 7
  • Qualified Person Assessment or Self-assessment - Checklist: Groundwater Exceedance (Gwx) - Manitoba, Canada, Page 8
  • Qualified Person Assessment or Self-assessment - Checklist: Groundwater Exceedance (Gwx) - Manitoba, Canada, Page 9
  • Qualified Person Assessment or Self-assessment - Checklist: Groundwater Exceedance (Gwx) - Manitoba, Canada, Page 10
  • Qualified Person Assessment or Self-assessment - Checklist: Groundwater Exceedance (Gwx) - Manitoba, Canada, Page 11
  • Qualified Person Assessment or Self-assessment - Checklist: Groundwater Exceedance (Gwx) - Manitoba, Canada, Page 12
  • Qualified Person Assessment or Self-assessment - Checklist: Groundwater Exceedance (Gwx) - Manitoba, Canada, Page 13
  • Qualified Person Assessment or Self-assessment - Checklist: Groundwater Exceedance (Gwx) - Manitoba, Canada, Page 14
  • Qualified Person Assessment or Self-assessment - Checklist: Groundwater Exceedance (Gwx) - Manitoba, Canada, Page 15
  • Qualified Person Assessment or Self-assessment - Checklist: Groundwater Exceedance (Gwx) - Manitoba, Canada, Page 16
  • Qualified Person Assessment or Self-assessment - Checklist: Groundwater Exceedance (Gwx) - Manitoba, Canada, Page 17
  • Qualified Person Assessment or Self-assessment - Checklist: Groundwater Exceedance (Gwx) - Manitoba, Canada, Page 18
  • Qualified Person Assessment or Self-assessment - Checklist: Groundwater Exceedance (Gwx) - Manitoba, Canada, Page 19
  • Qualified Person Assessment or Self-assessment - Checklist: Groundwater Exceedance (Gwx) - Manitoba, Canada, Page 20
  • Qualified Person Assessment or Self-assessment - Checklist: Groundwater Exceedance (Gwx) - Manitoba, Canada, Page 21
  • Qualified Person Assessment or Self-assessment - Checklist: Groundwater Exceedance (Gwx) - Manitoba, Canada, Page 22
  • Qualified Person Assessment or Self-assessment - Checklist: Groundwater Exceedance (Gwx) - Manitoba, Canada, Page 23
  • Qualified Person Assessment or Self-assessment - Checklist: Groundwater Exceedance (Gwx) - Manitoba, Canada, Page 24
  • Qualified Person Assessment or Self-assessment - Checklist: Groundwater Exceedance (Gwx) - Manitoba, Canada, Page 25
  • Qualified Person Assessment or Self-assessment - Checklist: Groundwater Exceedance (Gwx) - Manitoba, Canada, Page 26
  • Qualified Person Assessment or Self-assessment - Checklist: Groundwater Exceedance (Gwx) - Manitoba, Canada, Page 27
  • Qualified Person Assessment or Self-assessment - Checklist: Groundwater Exceedance (Gwx) - Manitoba, Canada, Page 28
  • Qualified Person Assessment or Self-assessment - Checklist: Groundwater Exceedance (Gwx) - Manitoba, Canada, Page 29
  • Qualified Person Assessment or Self-assessment - Checklist: Groundwater Exceedance (Gwx) - Manitoba, Canada, Page 30
  • Qualified Person Assessment or Self-assessment - Checklist: Groundwater Exceedance (Gwx) - Manitoba, Canada, Page 31
  • Qualified Person Assessment or Self-assessment - Checklist: Groundwater Exceedance (Gwx) - Manitoba, Canada, Page 32
  • Qualified Person Assessment or Self-assessment - Checklist: Groundwater Exceedance (Gwx) - Manitoba, Canada, Page 33
  • Qualified Person Assessment or Self-assessment - Checklist: Groundwater Exceedance (Gwx) - Manitoba, Canada, Page 34
  • Qualified Person Assessment or Self-assessment - Checklist: Groundwater Exceedance (Gwx) - Manitoba, Canada, Page 35
  • Qualified Person Assessment or Self-assessment - Checklist: Groundwater Exceedance (Gwx) - Manitoba, Canada, Page 36
  • Qualified Person Assessment or Self-assessment - Checklist: Groundwater Exceedance (Gwx) - Manitoba, Canada, Page 37
  • Qualified Person Assessment or Self-assessment - Checklist: Groundwater Exceedance (Gwx) - Manitoba, Canada, Page 38
  • Qualified Person Assessment or Self-assessment - Checklist: Groundwater Exceedance (Gwx) - Manitoba, Canada, Page 39
  • Qualified Person Assessment or Self-assessment - Checklist: Groundwater Exceedance (Gwx) - Manitoba, Canada, Page 40
  • Qualified Person Assessment or Self-assessment - Checklist: Groundwater Exceedance (Gwx) - Manitoba, Canada, Page 41
  • Qualified Person Assessment or Self-assessment - Checklist: Groundwater Exceedance (Gwx) - Manitoba, Canada, Page 42
  • Qualified Person Assessment or Self-assessment - Checklist: Groundwater Exceedance (Gwx) - Manitoba, Canada, Page 43
Prev 1 2 3 4 5 ... 43 Next
ADVERTISEMENT