Form CD8-AD Technical Report: on-Site Crane Pre-operation Inspections - New York City

Form CD8-AD Technical Report: on-Site Crane Pre-operation Inspections - New York City

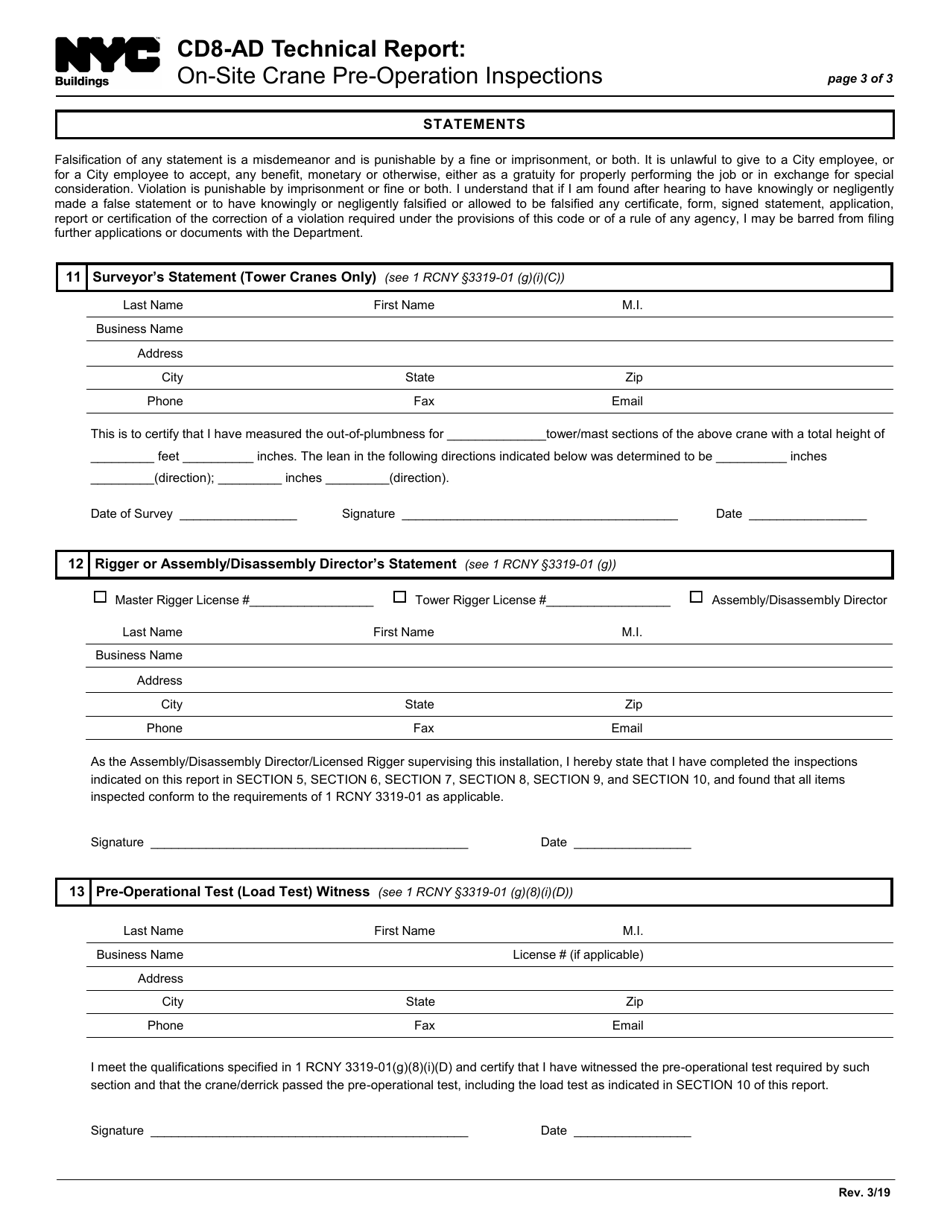
What Is Form CD8-AD?

This is a legal form that was released by the New York City Department of Buildings - a government authority operating within New York City. Check the official instructions before completing and submitting the form.

FAQ

Q: What is the purpose of Form CD8-AD?
A: The purpose of Form CD8-AD is to conduct on-site crane pre-operation inspections.

Q: What does CD8-AD stand for?
A: CD8-AD stands for Crane Division, Form AD.

Q: What is included in the on-site crane pre-operation inspections?
A: The on-site crane pre-operation inspections include various checks such as checking the brakes, controls, safety devices, and structural components of the crane.

Q: Who is responsible for conducting the pre-operation inspections?
A: The responsibility of conducting the pre-operation inspections lies with the crane operator or a qualified and designated employee.

Q: Why are on-site crane pre-operation inspections important?
A: On-site crane pre-operation inspections are important to ensure the safe and proper functioning of cranes, which helps prevent accidents and ensure the safety of workers and the public.

ADVERTISEMENT

Form Details:

  • Released on March 1, 2019;
  • The latest edition provided by the New York City Department of Buildings;
  • Easy to use and ready to print;
  • Quick to customize;
  • Compatible with most PDF-viewing applications;
  • Fill out the form in our online filing application.

Download a printable version of Form CD8-AD by clicking the link below or browse more documents and templates provided by the New York City Department of Buildings.

Download Form CD8-AD Technical Report: on-Site Crane Pre-operation Inspections - New York City

4.7 of 5 (12 votes)
  • Form CD8-AD Technical Report: on-Site Crane Pre-operation Inspections - New York City

    1

  • Form CD8-AD Technical Report: on-Site Crane Pre-operation Inspections - New York City, Page 2

    2

  • Form CD8-AD Technical Report: on-Site Crane Pre-operation Inspections - New York City, Page 3

    3

  • Form CD8-AD Technical Report: on-Site Crane Pre-operation Inspections - New York City, Page 1
  • Form CD8-AD Technical Report: on-Site Crane Pre-operation Inspections - New York City, Page 2
  • Form CD8-AD Technical Report: on-Site Crane Pre-operation Inspections - New York City, Page 3
Prev 1 2 3 Next
ADVERTISEMENT