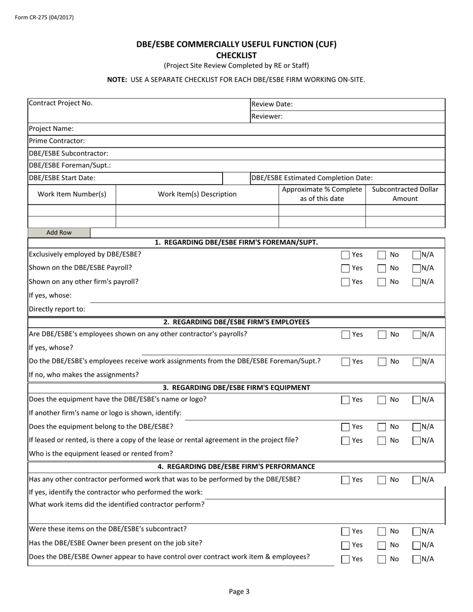
Form CR-275 Dbe / Esbe Commercially Useful Function (Cuf) Checklist - New Jersey

Form CR-275 Dbe / Esbe Commercially Useful Function (Cuf) Checklist - New Jersey

What Is Form CR-275?

This is a legal form that was released by the New Jersey Department of Transportation - a government authority operating within New Jersey. As of today, no separate filing guidelines for the form are provided by the issuing department.

FAQ

Q: What is Form CR-275?
A: Form CR-275 is a Dbe/Esbe Commercially Useful Function (Cuf) Checklist used in New Jersey.

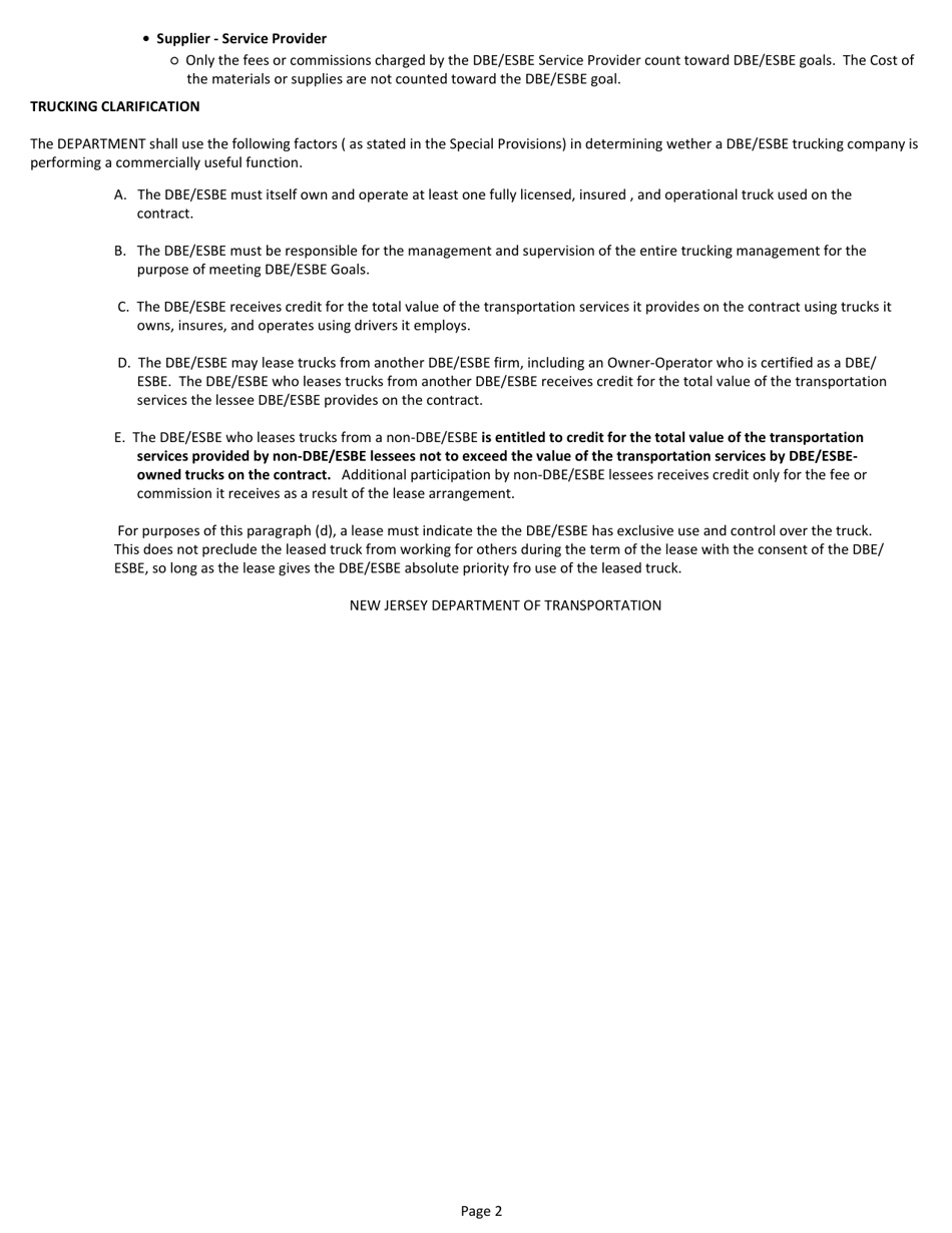
Q: What is Dbe/Esbe?
A: Dbe stands for Disadvantaged Business Enterprise and Esbe stands for Emerging Small Business Enterprise.

Q: What is the purpose of the Cuf Checklist?
A: The Cuf Checklist is used to determine if a business is performing a commercially useful function on a contract.

Q: Who uses the Cuf Checklist?
A: The Cuf Checklist is used by prime contractors and subcontractors on federally funded projects in New Jersey.

Q: What does a commercially useful function mean?
A: A commercially useful function means that the business is responsible for executing work that is necessary for the project and is adding value to it.

Q: What information is included in the Cuf Checklist?
A: The Cuf Checklist includes information about the business, the work performed on the contract, and the equipment and personnel used.

Q: Why is the Cuf Checklist important?
A: The Cuf Checklist is important for ensuring that federally funded contracts are awarded to businesses that meet the criteria of performing a commercially useful function.

ADVERTISEMENT

Form Details:

  • Released on April 1, 2017;
  • The latest edition provided by the New Jersey Department of Transportation;
  • Easy to use and ready to print;
  • Quick to customize;
  • Compatible with most PDF-viewing applications;
  • Fill out the form in our online filing application.

Download a fillable version of Form CR-275 by clicking the link below or browse more documents and templates provided by the New Jersey Department of Transportation.

Download Form CR-275 Dbe / Esbe Commercially Useful Function (Cuf) Checklist - New Jersey

4.6 of 5 (10 votes)
  • Form CR-275 Dbe/Esbe Commercially Useful Function (Cuf) Checklist - New Jersey

    1

  • Form CR-275 Dbe/Esbe Commercially Useful Function (Cuf) Checklist - New Jersey, Page 2

    2

  • Form CR-275 Dbe/Esbe Commercially Useful Function (Cuf) Checklist - New Jersey, Page 3

    3

  • Form CR-275 Dbe/Esbe Commercially Useful Function (Cuf) Checklist - New Jersey, Page 4

    4

  • Form CR-275 Dbe / Esbe Commercially Useful Function (Cuf) Checklist - New Jersey, Page 1
  • Form CR-275 Dbe / Esbe Commercially Useful Function (Cuf) Checklist - New Jersey, Page 2
  • Form CR-275 Dbe / Esbe Commercially Useful Function (Cuf) Checklist - New Jersey, Page 3
  • Form CR-275 Dbe / Esbe Commercially Useful Function (Cuf) Checklist - New Jersey, Page 4
Prev 1 2 3 4 Next
ADVERTISEMENT