Form REV84 0001A Real Estate Excise Tax Affidavit - Single Location - Washington

Notification Icon This version of the form is not currently in use and is provided for reference only. Download this version of Form REV84 0001A for the current year.

Form REV84 0001A Real Estate Excise Tax Affidavit - Single Location - Washington

What Is Form REV84 0001A?

This is a legal form that was released by the Washington State Department of Revenue - a government authority operating within Washington. As of today, no separate filing guidelines for the form are provided by the issuing department.

FAQ

Q: What is Form REV84 0001A?
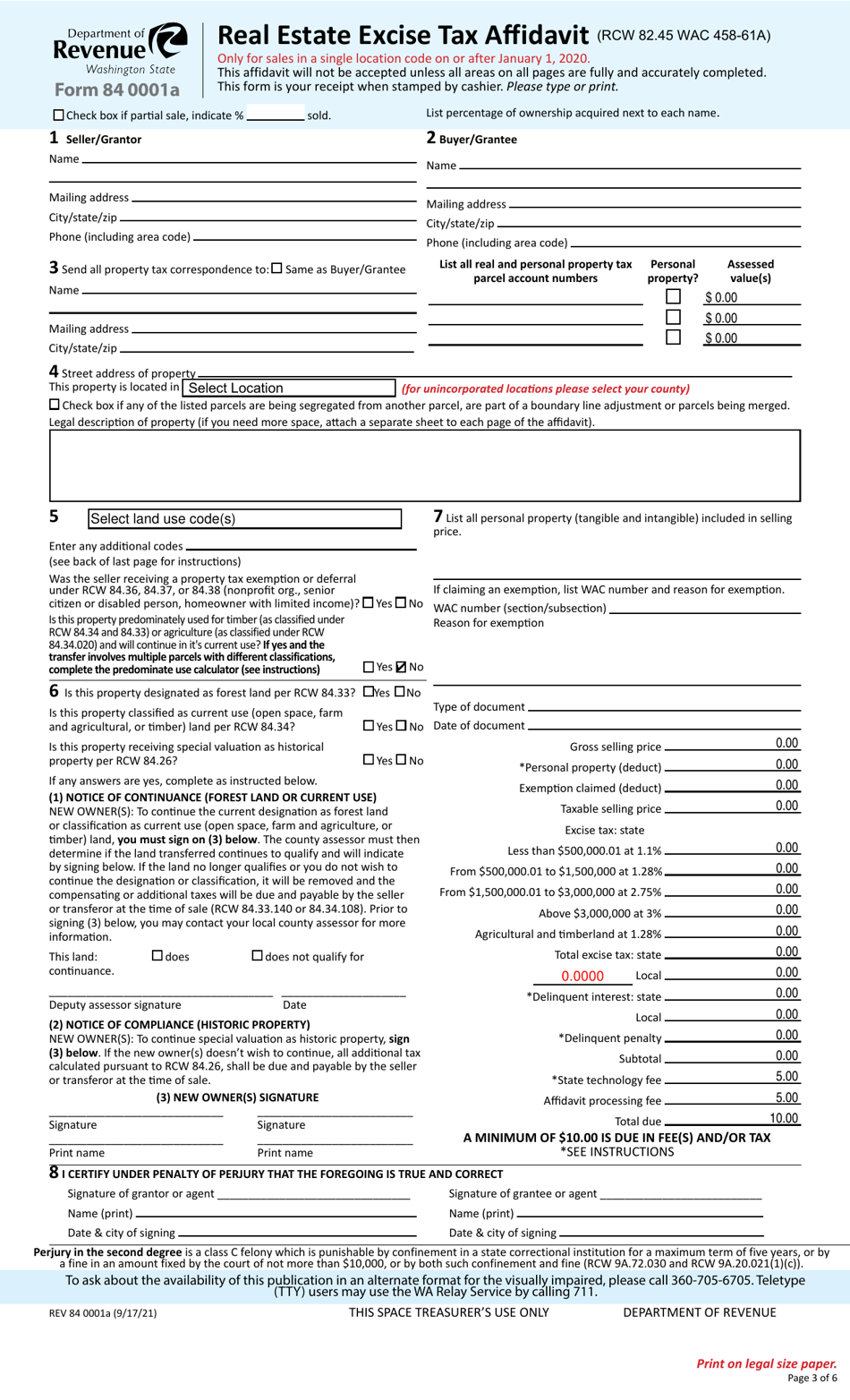
A: Form REV84 0001A is the Real Estate Excise Tax Affidavit for a single location in Washington.

Q: What is the purpose of Form REV84 0001A?
A: The purpose of Form REV84 0001A is to report and pay the excise tax on the transfer of real property at a single location in Washington.

Q: Who needs to file Form REV84 0001A?
A: Any individual or entity involved in the transfer of real property at a single location in Washington needs to file Form REV84 0001A.

Q: What information is required on Form REV84 0001A?
A: Form REV84 0001A requires information such as the seller's and buyer's names, property location, sale price, and transferor and transferee information.

Q: When is Form REV84 0001A due?
A: Form REV84 0001A is typically due within 30 days of the transfer of real property at a single location in Washington.

Q: What happens if I don't file Form REV84 0001A?
A: Failure to file Form REV84 0001A or pay the required excise tax may result in penalties and interest.

Q: Is Form REV84 0001A specific to Washington?
A: Yes, Form REV84 0001A is specific to the state of Washington and cannot be used for real property transfers in other states.

Q: Are there any exemptions to filing Form REV84 0001A?
A: Yes, there are certain exemptions to filing Form REV84 0001A, such as transfers between spouses or transfers involving government entities.

ADVERTISEMENT

Form Details:

  • Released on September 17, 2021;
  • The latest edition provided by the Washington State Department of Revenue;
  • Easy to use and ready to print;
  • Quick to customize;
  • Compatible with most PDF-viewing applications;
  • Fill out the form in our online filing application.

Download a fillable version of Form REV84 0001A by clicking the link below or browse more documents and templates provided by the Washington State Department of Revenue.

Download Form REV84 0001A Real Estate Excise Tax Affidavit - Single Location - Washington

4.4 of 5 (8 votes)
  • Form REV84 0001A Real Estate Excise Tax Affidavit - Single Location - Washington

    1

  • Form REV84 0001A Real Estate Excise Tax Affidavit - Single Location - Washington, Page 2

    2

  • Form REV84 0001A Real Estate Excise Tax Affidavit - Single Location - Washington, Page 3

    3

  • Form REV84 0001A Real Estate Excise Tax Affidavit - Single Location - Washington, Page 4

    4

  • Form REV84 0001A Real Estate Excise Tax Affidavit - Single Location - Washington, Page 5

    5

  • Form REV84 0001A Real Estate Excise Tax Affidavit - Single Location - Washington, Page 6

    6

  • Form REV84 0001A Real Estate Excise Tax Affidavit - Single Location - Washington, Page 1
  • Form REV84 0001A Real Estate Excise Tax Affidavit - Single Location - Washington, Page 2
  • Form REV84 0001A Real Estate Excise Tax Affidavit - Single Location - Washington, Page 3
  • Form REV84 0001A Real Estate Excise Tax Affidavit - Single Location - Washington, Page 4
  • Form REV84 0001A Real Estate Excise Tax Affidavit - Single Location - Washington, Page 5
  • Form REV84 0001A Real Estate Excise Tax Affidavit - Single Location - Washington, Page 6
Prev 1 2 3 4 5 6 Next
ADVERTISEMENT