Form HUD-92005 Description of Materials

Form HUD-92005 Description of Materials

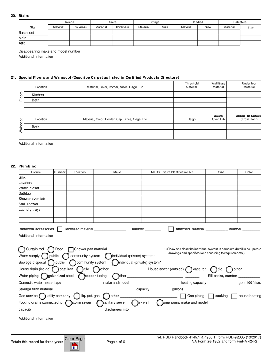
What Is Form HUD-92005?

This is a legal form that was released by the U.S. Department of Housing and Urban Development on October 1, 2017 and used country-wide. As of today, no separate filing guidelines for the form are provided by the issuing department.

FAQ

Q: What is Form HUD-92005?
A: Form HUD-92005 is a document used to provide a description of materials used in the construction or rehabilitation of a property.

Q: Who uses Form HUD-92005?
A: Form HUD-92005 is used by contractors, builders, and developers to provide detailed information about the materials used in a project.

Q: Why is Form HUD-92005 important?
A: Form HUD-92005 is important because it allows lenders, appraisers, and inspectors to evaluate the quality and durability of the materials used in a property.

Q: What information is included in Form HUD-92005?
A: Form HUD-92005 includes details about the types of materials used, their condition, and any certifications or warranties associated with them.

Q: How do I fill out Form HUD-92005?
A: To fill out Form HUD-92005, you will need to provide a detailed description of each material used in the project, including the brand, model number, and quantity.

Q: Is there a deadline for submitting Form HUD-92005?
A: There is no specific deadline for submitting Form HUD-92005, but it is typically required as part of the loan or appraisal process.

Q: Can I make changes to Form HUD-92005 after submitting it?
A: Once Form HUD-92005 is submitted, it may be difficult to make changes. It is important to review the form carefully before submission.

Q: What happens if I don't submit Form HUD-92005?
A: Failure to submit Form HUD-92005 may result in delays or complications in the loan or appraisal process.

Q: Are there any fees associated with Form HUD-92005?
A: There are typically no fees associated with Form HUD-92005. However, you may need to pay for the services of a professional to complete the form accurately.

ADVERTISEMENT

Form Details:

  • Released on October 1, 2017;
  • The latest available edition released by the U.S. Department of Housing and Urban Development;
  • Easy to use and ready to print;
  • Yours to fill out and keep for your records;
  • Compatible with most PDF-viewing applications;
  • Fill out the form in our online filing application.

Download a fillable version of Form HUD-92005 by clicking the link below or browse more documents and templates provided by the U.S. Department of Housing and Urban Development.

Download Form HUD-92005 Description of Materials

4.3 of 5 (16 votes)
  • Form HUD-92005 Description of Materials

    1

  • Form HUD-92005 Description of Materials, Page 2

    2

  • Form HUD-92005 Description of Materials, Page 3

    3

  • Form HUD-92005 Description of Materials, Page 4

    4

  • Form HUD-92005 Description of Materials, Page 5

    5

  • Form HUD-92005 Description of Materials, Page 6

    6

  • Form HUD-92005 Description of Materials, Page 1
  • Form HUD-92005 Description of Materials, Page 2
  • Form HUD-92005 Description of Materials, Page 3
  • Form HUD-92005 Description of Materials, Page 4
  • Form HUD-92005 Description of Materials, Page 5
  • Form HUD-92005 Description of Materials, Page 6
Prev 1 2 3 4 5 6 Next
ADVERTISEMENT