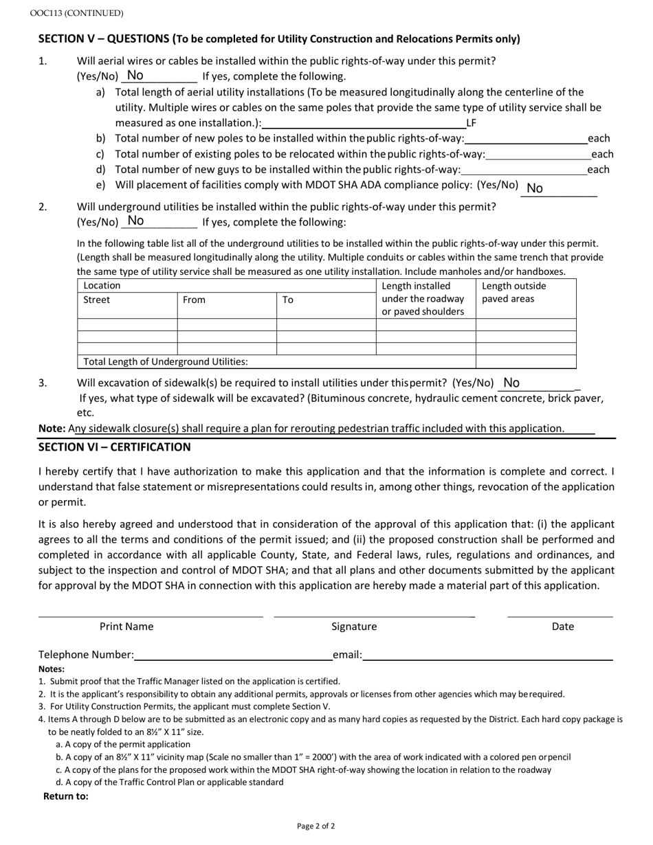
Form OOC113 Utility Permit Application - Maryland

Form OOC113 Utility Permit Application - Maryland

What Is Form OOC113?

This is a legal form that was released by the Maryland Department of Transportation - a government authority operating within Maryland. Check the official instructions before completing and submitting the form.

Form Details:

  • Released on November 3, 2021;
  • The latest edition provided by the Maryland Department of Transportation;
  • Easy to use and ready to print;
  • Quick to customize;
  • Compatible with most PDF-viewing applications;
  • Fill out the form in our online filing application.

Download a fillable version of Form OOC113 by clicking the link below or browse more documents and templates provided by the Maryland Department of Transportation.

ADVERTISEMENT

Download Form OOC113 Utility Permit Application - Maryland

4.5 of 5 (20 votes)
  • Form OOC113 Utility Permit Application - Maryland

    1

  • Form OOC113 Utility Permit Application - Maryland, Page 2

    2

  • Form OOC113 Utility Permit Application - Maryland, Page 1
  • Form OOC113 Utility Permit Application - Maryland, Page 2
Prev 1 2 Next
ADVERTISEMENT

Related Documents